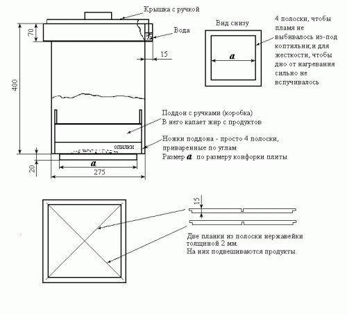
Нет, наверное, людей, которые не любили бы наслаждаться золотистой корочкой, приятным ароматом и незабываемым вкусом приготовленных собственными руками копчёностей. Есть, конечно, очень много вариантов готовки продуктов, но именно копчение даёт возможность получить вкусности без консервантов и ГМО. Людям, живущим в многоквартирных домах, достаточно сложно готовить в коптильне, ведь жилплощадь этого не позволяет, а выезд на природу влечёт за собой большие затраты времени, да и денежных средств. Но вот у людей, которые живут в частных домах, есть отличная возможность построить коптильню горячего копчения своими руками прямо на своём дворе. Процесс постройки не составит особого труда, но результат принесёт массу удовольствия и пользы. Для начала потребуется подготовить чертежи, согласно которым и будет проводиться постройка. Чертёж коптильни горячего копчения с размерами вы можете найти на соответствующих ресурсах глобальной сети во всемирной паутине. Итак, вам потребуется лист железа с толщиной примерно 3 мм. Разрезают железо согласно размерам: высота — 120 см, ширина — 60 см, глубина — 40 см. Для того чтобы качественно произвести разрез, вы можете использовать болгарку или же электролобзик. Далее, на передней части коптильного шкафа потребуется произвести разрез для ящика, в котором будут храниться опилки. Сначала сваривают задние части коптильного шкафа, а уже потом — передние. Внизу ящика привариваются специальные направляющие для ёмкости с опилками. Для них можно использовать трубу-квадрат размером 5 см на 2 см. После этого приваривают лицевую сторону коптильни с вырезом под ящик. Эта схема коптильни предусматривает ящик размером 38 см на 34 см. Передняя часть с ручкой должна иметь длину на 10 см больше длины ящика, чтобы плотно приставать к шкафу коптильни и не давать дыму рассеиваться в стороны. В нижней части ящика для опилок необходимо просверлить небольшие дырочки для того, чтобы улучшить тягу. После того как ящик вставлен в коптильный шкаф, можно приступить к привариванию ножек к коптильне. В конечном итоге по желанию можно окрасить огнеустойчивой краской, чтобы внешний вид был более привлекательным, но это уже на ваше усмотрение. Нелишним будет изготовить станину для развешивания продуктов копчения. Конечно, вы можете приварить рейки прямо в шкафу, но станиной пользоваться намного удобнее, да и процесс её изготовления не займёт у вас много времени. Размеры станины должны быть следующие: высота — 110 см, ширина — 56, а глубина — 34, то есть чуть меньше основных габаритов коптильного шкафа. Завершающим этапом в изготовлении является производство крышки. Металл толщиной 1 мм режут в размер коптильного шкафа, но на 10 см больше, чтобы по краям был отступ по 5 см. К металлу приваривают ограничители закрывания величиной 3 см. В качестве источника поступления огня можно применять горелку, которую монтируют под ящик с опилками. Газ к горелке нужно подводить по гибкому шлангу. Процесс копчения делят на три вида, среди них: Отличается готовка мяса этими способами своей температурой дыма, регулировать которую вы можете с помощью крышки. Суть горячего метода состоит в том, что продукты животного происхождения, такие как мясо и рыба, доходят до готовности путём обработки их горячим дымом, который выделяют тлеющие угольки дерева. В отличие от холодного, мясо или рыба, кроме того, что подкачиваются, ещё и припекаются в высокой температуре. Горячий метод намного быстрее, и через несколько часов вы можете употреблять готовый продукт, а метод холодного копчения подразумевает обработку продукта на протяжении суток. Для копчения применяют исключительно лиственные или плодовые породы деревьев, к примеру, такие как: Для придания мясу или рыбе особого привкуса могут в опилки добавляться несколько веток можжевельника вместе с ягодами. Ни в коем случае нельзя использовать хвойные деревья, такие как пихта, лиственница и ель. Они при подогреве будут выделять смолу, и продукты копчения получат кисловатый привкус и горечь. Также следует с особой внимательностью подходить к подбору дров. Они не должны быть сырыми и чрезмерно сухими. Сухие будут давать слишком большое пламя, регулировать которое довольно затруднительно, а сырые, наоборот, медленно будут гореть, и процесс копчения может затянуться. Коптильня горячего копчения своими руками должна выдерживать температуру 300 градусов. Именно при этих условиях будет проходить качественный пиролиз, то есть полное нагревание опилок с последующим выделением ароматного дыма нужной температуры. В горячем способе температура должна быть не менее 80 градусов, 60–80 — это полугорячее, а при температуре 40–50 осуществляется холодное копчение. Если температура внутри коптильни будет превышать отметку 100 градусов, то опилки будут обугливаться и выделять сажу, что впоследствии подарит мясу терпкий и неприятный привкус. Именно умение поддерживать нужную температуру в коптильне даёт положительный результат — вкусные продукты питания. Целесообразно отметить, что в крупногабаритных коптильнях достигнуть оптимальной температуры и поддерживать её на одном уровне гораздо проще, нежели в маленьких коптильных шкафах. В небольших коптильнях самый незначительный скачок температуры может испортить мясо или рыбу. Мало кто откажется попробовать золотистые и очень ароматные продукты копчения, но приобретать их в магазинах вовсе не хочется. В большинстве случаев на полках супермаркета хранятся копчёности отнюдь не натурального изготовления, а обработанные по технологии горячего дыма. Такая обработка может очень плохо сказаться на вашем самочувствии и нанести непоправимый ущерб вашему здоровью. Прочитав сегодняшнюю статью, вы уже знаете, как сделать коптильню у себя дома. Теперь вы, как говорится, теоретически подкованы, а хорошая подготовка — это половина успеха. Вам осталось запастись терпением, необходимыми инструментами и вычитать вкусный рецепт приготовления продуктов. Если вы будете следовать всем вышеуказанным рекомендациям, ваши продукты всегда будут получаться невероятно вкусными, и, возможно, вы откроете в себе скрытые таланты кулинара. domkopchenie.ru Правильно изготовленная коптильня горячего копчения позволит в любое время иметь у себя на столе вкусные блюда. Многие производители предлагают готовые варианты коптилен горячего копчения. Купить их можно как в интернете, так и в специализированных магазинах. Цены варьируются от 1800 до 37000 руб. Но гораздо интереснее и дешевле сделать такую коптильню самостоятельно. О том как сделать коптильню горячего копчения своими руками расскажем подробно в нашей статье. В зависимости от температуры и времени копчения различают холодное копчение и копчение горячим дымом: Температура копчения выбирается в зависимости от веса мяса или рыбы их вида и дальнейшего приготовления. Так, например, мясо, которое в дальнейшем подвергнется термической обработке, рекомендуется коптить при температуре от 45 до 65 градусов. Для продуктов, которые готовятся во время копчения, оптимальной температурой будет 70-100 градусов. Рекомендация! Для того чтобы блюдо получилось ароматным и хорошо приготовленным важно поддерживать температуру в необходимом диапазоне. Изготовить коптильню горячего копчения самостоятельно, в домашних условиях, несложно. Достаточно иметь герметичную емкость, выполненную желательно из прочного металлаВ качестве емкости можно использовать, например, бочку. Эту емкость оборудуют откидной крышкой. Также для оборудования коптильни понадобятся решетка и емкость для сбора жира. В верхней части коптильни, примерно в 10 сантиметрах от крышки, устанавливают решетку, на ней, в процессе копчения, располагают продукты. Важно, чтобы продукты на решетке не касались друг друга, для равномерного копчения со всех сторон. Под решетку ставится любая емкость, соответствующая размерам коптильни. Это может быть подходящая по диаметру миска или круглый поднос В эту посудину будет скапывать жир. На дно коптильни укладывается слой опилок или щепок, которые тлеют под воздействием высокой температуры. Для процесса копчения подходят практически любые дрова, главное чтобы они не содержали нежелательных для продуктов смол. Исходя из этого, хвойные деревья не подходят для копчения, потому что под их корой содержится смола. Для того, чтобы продукты обрели приятный аромат можно добавить щепу из можжевельника или ольхи. Ветки фруктовых деревьев, например, яблони, груши и вишни, также хорошо подойдут для копчения. Перед копчением с дров лучше снять кору, так как в ней содержится много смолы. После того как кора снята, древесину измельчают на кубики, размером приблизительно со стороной до 3 сантиметров. Измельченные дрова насыпают на дно коптильни и увлажняют для получения дыма. Под коптильню подойдет все, начиная от старого ведра и заканчивая специально построенными сооружениями. Но оптимальным вариантом станет коптильня изготовленная из металлических листов. Для ее изготовления необходимо иметь следующие инструменты и материалы: Следуя простым рекомендациям и выполняя пошаговую инструкцию легко и быстро можно изготовить коптильню горячего копчения самостоятельно: А тут Вы найдете много полезной информации по строительству летнего душа. Для горячего копчения подойдут практически любые продукты, начиная от сосисок и заканчивая мясным окороком или целой рыбой. Для того, чтобы результат поразил даже гурманов, продукты нужно правильно подготовить к копчению. Мясо или рыбу необходимо предварительно посолить, добавить специй по желанию и дать продукту просолиться. Курицу, для того, чтобы мясо было мягким, перед копчением желательно замариновать на несколько дней. Крупную рыбу перед копчением очищают и вынимают все внутренности, мелкую можно готовить без обработки. Коптильня полностью готова. Установить ее можно как во дворе собственного дома, так и на пригородном участке. Коптить в коптильнях горячего копчения можно практически все и при правильной подготовке и процессе копчения продукты получатся невероятно вкусными и ароматными. Совет! Так как во время копчения продукты готовятся недолго, то они внутри остаются сочными и влага из них практически не выходит, поэтому хранить их долго не рекомендуется. Подробную информацию по изготовлению коптильни горячего копчения, Вы сможете посмотреть в этом видео: Вконтакте Facebook Twitter Google+ Мой мир 6sotok-dom.com Приготовить вкусные, ароматные копчености в горячем дыму просто. Коптильня горячего копчения своими руками собирается за пару часов с нуля или изготавливается из подручных материалов. Если сравнивать с технологией окуривания холодным дымом, продукты горячего копчения готовятся довольно быстро – от 12 до 48 часов при температуре 45–50оС. Способ готовки при температуре, превышающей указанную, называется ускоренным горячим или запеканием в дыму. Таким образом, под горячим копчением понимается и запекание, и длительное окуривание дымом. Мясо и рыбу под горячее копчение обычно слегка отваривают до или после окуривания. Коптят их и свежими, слегка посолив. Не придется неделями отмачивать продукты в соленой воде, как при холодном способе копчения. Но эта особенность горячих копченостей сказывается на сроке хранения: продукты годятся к употреблению максимум в течение недели, но лучше съесть все в день готовки. Так что для запасливых гурманов эта технология не подойдет. Зато для посиделок с друзьями, когда нужно быстро накрыть стол и удивить деликатесами – самое то! Или для рыбаков-охотников – обработать улов, приготовить на костре и отнести домой. Давайте разбираться, как сделать удобный смокер для горячего копчения собственноручно. Классическое горячее копчение производится в специально построенной коптильне. Принцип ее устройства довольно прост: в емкости находятся продукты, которые окуривает дым от тлеющей щепы. Продукт не варится в собственном соку при высокой температуре, а висит и впитывает в себя горячий дымок. Конструкция горячей коптильни включает в себя следующие элементы: Важно! Внутри коптильни обязательно находится поднос для жира. Уж очень быстро тает жирок от высокой температуры – он окисляется и горит, попав на щепу. Согласитесь, проще вынуть поднос и слить топленый жир, чем отмывать бак и выкидывать пропитанные гарью продукты. Если нет возможности установить поднос для жира, насыпается песок. Итак, приведем одну из простейших инструкций по самостоятельной сборке коптильни из подручных материалов. Прямоугольная коптильня горячего копчения своими руками собирается всего за пару часов. Нам понадобятся: Этапы: Посмотрите, как собирается эта коптильня горячего копчения своими руками на видео. Из чего еще сооружают коптильни? Фантазия умельцев удивляет. Конструкцию, аналогичную описанной в статье, можно собрать из бочки, металлической трубы и кирпича. Такой вариант хуже, но вполне подойдет, если мало места для стационарной коптильни. Источник тления может быть любым – например, можно взять паяльную лампу. Нелишним на такой бочке будет кулинарный термометр. Знакомые многим прямоугольные бачки из нержавейки запекают мясо в дыму, а не коптят горячим способом. Температура там слишком высока для горячего копчения – от 50 до 100оС. В таких бачках опилки ровным слоем лежат на дне и тлеют под воздействием высокой температуры. Источник жара находится под дном емкости. Простое ведро с крышкой превращается в удобную походную коптильню для рыбалки. Из дополнительных приспособлений – лишь сетка и банка для жира. Опилки засыпаются прямо на дно ведра. Но не стоит брать оцинкованные ведра – при их нагревании выделяются вредные для здоровья вещества, и мясо будет испорчено. Схожая по идее коптильня – из большой кастрюли с решетками. Только размером поменьше. А вот коптильня из старой стиральной машинки уже поинтересней. Как ни странно, она очень удобна – есть слив для жира. На место моторчика устанавливаем компактную плитку. Высыпаем на нее горсть щепок – и процесс пошел! Даже из барабана современной стиралки можно соорудить коптильню. Убрав пластиковые детали, поставьте внутрь решетки, закиньте горсть опилок и медленно нагревайте. Через прозрачную дверцу виден весь процесс окуривания. Небольшой бак со щепой и решеткой, установленный на мангал, тоже может послужить коптилкой. Из газового баллона получается отличный смокер. Высокая коптильня горячего копчения своими руками по чертежам и фото получится без труда. Но помните: перед сборкой из баллона обязательно нужно выпустить газ! Это опасный процесс – необходимо не только выпустить остатки газа, но и скрутить вентиль, после чего наполнить баллон водой и только тогда начинать резать. Зато коптилочка будет – высший класс! Из газового баллона можно сделать даже мангал, после чего соединить вместе коптильную камеру, мангал и дымарь. Правда, нужно уже три баллона разного размера. Зато сало и овощи на дымке от шашлыков получаются – просто пальчики оближешь! Посмотрите, как собирается эта горячая коптильня своими руками. Фото и инструкция помогут вам смастерить такой агрегат у себя в гараже или на даче. Небольшие походные коптиленки получаются из медицинских бикс – бачков для стерилизации. Установите в биксе небольшую решетку, насыпьте внутрь опилки, положите емкость на тлеющие угли костра. Через полчаса вкусные копчености будут готовы. Бикса очень легкая, компактная, легко разбирается и переносится. Для вылазки на природу – идеальный вариант. Хорошо, когда дома есть удобная коптильня горячего копчения. Своими руками изготовить такую полезную вещь совсем не сложно. Копчение в горячем дыму идеально подходит для новичков-кулинаров и любителей загородных пикников. Несколько часов ожидания – и золотистый с запахом дымка деликатес на вашем столе. Присоединяйтесь к обсуждению! koffkindom.ru Существует несколько способов термической обработки продуктов. Коптильня горячего копчения – неплохой вариант, так как ее несложно изготовить самостоятельно из самых разных подсобных материалов без каких-либо дополнительных финансовых затрат. Если понимать принцип функционирования коптильни, то готовые чертежи и не понадобятся – все ее параметры рассчитать можно самому, исходя из личных потребностей и специфики применения (в доме, на дачном участке или при выезде на природу). Вот с этим и разберемся как можно подробнее. Если выбор пал именно на приспособление для горячего копчения, то рассказывать читателю обо всех преимуществах такой обработки продуктов не имеет смысла. А вот отдельные особенности конструирования уточнить стоит. Упрощенная схема простейшей самодельной коптильни для горячего копчения показана на рисунке: Что использовать – ящик, ведро, бочку или иное – без разницы. Главное – чтобы крышка (2) закрывалась максимально плотно. Такой же, как в обычной духовке. Его назначение – собирать капли жира, предотвращая их попадания в топку (на опилки, стружку, дрова). На ней размещаются продукты (при горизонтальной укладке). Если предполагается их подвешивание, то схема выглядит так: У подобной конструкции есть недостаток – она не сможет обеспечить достаточного количества дыма, а это отражается на качестве копчения. Поэтому целесообразно снабдить установку приспособлением для наддува. Тяга может быть как естественной, так и принудительной. В последнем случае можно использовать, например, простейший вентилятор для бытовой вытяжки. При его установке и выборе направления вращения лопастей нужно учесть, что дым он должен тянуть, а не проталкивать. Место размещения – на корпусе резервуара. Чтобы дым проходил равномерно по всему объему камеры, канал соединения с вентилятором желательно устанавливать как можно выше (ближе к крышке). Это основные правила сборки коптильни своими руками. Вот еще несколько конструктивных исполнений, хотя это и не единственно возможные варианты. Зная принцип работы, несложно собрать установку для термообработки собственной модели, даже из холодильника б/у. Придется лишь слегка переоборудовать его корпус, для чего понадобится лишь болгарка. Имея сварочный аппарат, можно собрать вот такую коптильню, как на видео: ismith.ru Копчение издавна было одним из самых излюбленных способов приготовления мясных и рыбных продуктов. Но так как существует несколько видов копчения, дилетанты часто встают перед выбором: какое копчение предпочесть – горячее или холодное? Специалисты, имеющие опыт в данной отрасли во многом отдают предпочтение горячему копчению, которому можно подвергать различные сорта мяса и рыбы, а в подтверждение своего выбора перечисляют большое количество преимуществ коптильни горячего копчения, которые мы, конечно же, рассмотрим в этом материале. Современное разнообразие товаров, представленных в соответствующей сфере, позволяет приобрести коптильню горячего копчения в специализированном магазине, а любители совершать покупки в непринужденной обстановке смогут сделать это в соответствующих интернет-магазинах. Да и эксплуатация заводских коптилен не представляет сложностей – достаточно поместить дрова в специальный отсек, поместить продукты внутрь, закрыть плотно дверцу, разжечь топливо и по истечении положенного времени наслаждаться ароматными, золотистыми копченостями. Но что делать в том случае, если вы лишь время от времени собираетесь баловаться копченостями? Зачем вам лишняя трата денег, если можно изготовить самодельную коптильню горячего копчения, которая ни в чем не будет уступать промышленным моделям. А ответ на вопрос: «Как сделать коптильню горячего копчения?» ищите в статье, подготовленной нашими специалистами. Копчение представляет собой один из наиболее распространенных видов тепловой обработки продуктов, оказывающий на них консервирующее воздействие. В процессе копчения продукты приобретают специфический аромат, а также пропитываются веществами коптильного дыма, выделяющимися в процессе горения, и подвергаются частичному обезвоживанию, что способствует продлению срока хранения продукции. Различают горячее, полугорячее и холодное копчение. Каждый из этих видов характеризуется своими достоинствами и недостатками. Горячим называется копчение, осуществляемое при температуре минимум 50-60 градусов для мелкой рыбы. Оно является приоритетным при копчении продуктов небольшой жирности. Процесс горячего копчения происходит достаточно быстро и представляет собой копчение, осуществляемое в горячем дыму. В нижнем отделе коптильни тлеют мелкие щепки, а над ними подвешены мясо, рыба, овощи или сыр, которые достаточно быстро доводятся до готовности при температуре дыма от 80 до 140 градусов в зависимости от вида продукта. Так как в процессе горячего копчения происходит вытапливание жира, для него подходят только нежирные продукты, которые после такой тепловой обработки могут храниться не более двух дней. Холодное копчение, в отличие от горячего, процесс более трудоемкий, который может длиться до нескольких суток и фактически представляет собой несколько ускоренное завяливание продуктов. Для того, чтобы добиться охлаждения дыма, от места, где тлеют дрова, протягивают трубу, длина которой достигает 1-2 метра, а для того, чтобы контролировать температуру дыма, в коптильной камере устанавливают термометр. Что касается мяса, то оно коптится при температуре 15-20 градусов, а рыба – от 20 до 40. Продукция, обработанная холодным дымом, может храниться достаточно длительное время. Полугорячее копчение является промежуточным вариантом между горячим и холодным копчением. Домашняя коптильня горячего копчения по своей сути представляет емкость, объем которой зависит только от ваших предпочтений и потребностей. Но независимо от того, какой объем продуктов вы хотите прокоптить за один раз, коптильня должна быть такого объема, чтобы в нее поместилась решетка для укладки продуктов, и поддон, необходимый для того, чтобы жир, капающий с коптящегося мяса ли рыбы, не попал на угли, что может снизить вкусовые характеристики готовой продукции. Решетку можно смастерить из металлических прутьев, соединенных с помощью сварки. Однако главным элементом коптильни, без которого она не сможет обойтись, является зона для размещения дров, которая располагается в самом низу емкости. В качестве древесного материала могут использоваться различные породы древесины, о выборе которых поговорим чуть позже. Для изготовления коптильни горячего копчения рекомендуется использовать нержавеющую сталь, которая сочетает в себе такие характеристики как устойчивость к нагреву, высокая прочность и отсутствие склонности к коррозионному поражению под воздействием агрессивных факторов внешней среды. Для того, чтобы облегчить закладывание и вынимание продуктов, конструкции коптильни должна предусматривать наличие крышки или дверцы. А чтобы конструкция коптильни была полностью завершенной, оборудуйте ее таким образом, чтобы емкость коптильни была на несколько приподнятом от земли расстоянии, чего можно добиться, сделав металлические ножки. Это необходимо для того, чтобы расположить источник огня. Так как для процесса важен не огонь, а температура нагрева, источник огня вы можете выбрать на ваше усмотрение. Суть процесса копчения: После того, как на металлическую решетку уложены продукты, а в нижней части древесина, например веточки можжевельника, плотно закройте коптильню и начните подогрев в нижней ее части. По мере того, огонь начинает разгораться, древесина тлеет и выделяет ароматный горячий дым, который поднимаясь вверх и проходя через продукты, уложенные на решетке, осуществляет копчение. Продолжительность копчения зависит от количества продуктов, размеров коптильни, температуры дыма и ваших предпочтений, однако уже через 40 минут рекомендуется провести пробу полученных результатов, так как в случае перегрева коптильни может нарушиться технология процесса. Преимущества коптильни горячего копчения: Рассмотрим один из вариантов монтажа коптильни горячего копчения своими руками с использованием металлических листов. Перед тем, как приступить к монтажу коптильни, изучите самые распространенные чертежи коптильни горячего копчения, которые представлены в нашем материале. Стоит отметить, что размеры коптильни для горячего копчения достаточно вариабельны и зависят только от ваших вкусовых предпочтений и количества материала, которым вы располагаете: Для работы вам понадобятся следующие материалы и инструменты: Пошаговая инструкция по изготовлению: Наиболее простым способом изготовления коптильни горячего копчения является монтаж коптильни из ведра или большой кастрюли. Для изготовления коптильни специалисты рекомендуют использовать ведра из нержавеющей стали, тогда как применение оцинкованных ведер находится под строгим запретом. Это обусловлено тем, что в процессе нагрева выделяется токсичный оксид цинка, проникающий в пищу и наносящий серьезный вред организму. Также запаситесь крышкой для кастрюли или ведра, в которых необходимо проделать отверстия для выхода дыма. Конструкция коптильни, изготовленной из ведра, подразумевает установку трех решеток. Нижняя располагается на одну треть от дна самодельной коптильни, тогда как верхняя, напротив, на одну треть от ее крышки. Что касается средней решетки, то ее расположение ориентировочно на 5 см ниже верхней решетки. Для того, чтобы изготовить решетки, используйте стальную проволоку. Обмотайте проволокой коптильню в тех местах, где планируйте размещение решеток, после чего отрежьте проволоку необходимой длины. Из готовых отрезков проволоки сделайте обручи и соедините их, сварив стыки. После того, как обручи готовы, переплетите их заранее подготовленной, более тонкой проволокой с учетом того, чтобы ширина ячеек не превышала 2 см. Для тех, кто не желает заморачиваться с изготовлением решеток, специалисты предлагают использовать форму от старой пельменницы. Далее займитесь подготовкой стружек, опилок и щепы для коптильни. Специалисты рекомендуют использовать дубовую, рябиновую, ольховую или можжевельниковую стружку. Также подойдет стружка плодовых деревьев. Что касается березовой стружки или щепы хвойных пород, то ее, напротив, использовать не рекомендуется, так как продукты, подвергающиеся копчению, приобретут горьковатый привкус. Подготовленную щепу засыпьте на дно самодельной коптильни слоем, толщина которого достигает 1,5-2 см, после чего установите нижнюю решетку, на которую поставьте поддон, необходимый для сбора жира. Размеры поддона имеют важное практическое значение, так как он не должен быть чрезмерно большим, чтобы не создавать препятствие для прохождения дыма. Установив поддон, ставьте вторую, а затем и третью решетки с уложенным продуктом, который собираетесь подвергнуть копчению. Выполнив все вышеперечисленные действия, плотно закройте коптильню, чтобы предотвратить попадание в нее воздуха и последующего воспламенения топлива, и подвесьте над костром. Важно знать, что пламя в процессе копчения не должно быть слишком большим, чтобы коптящийся продукт не сгорел. На протяжении процесса копчения не рекомендуется открывать крышку для того, чтобы проверить готовность продукта. Это вы легко сможете сделать, оценив цвет и структуру дыма. На начальном этапе копчения дым, как правило, густой, что свидетельствует о тлении щепы. Затем он постепенно начинает белеть и становится не таким обильным. На данном этапе важно следить за тем, чтобы дым не приобретал желтый цвет, что однозначно свидетельствует о возгорании древесины. Если вы соблюдаете наши рекомендации и коптите продукт на маленьком огне, он будет готов уже через 45-50 минут, когда дым станет сухим и приобретет приятный аромат. Чтобы определить температуру коптильни, плесните на крышку воды. Об оптимальной температуре свидетельствует бесшумное ее испарение, но никак не кипение. Вариант конструкции, представленный на рисунке, наиболее усовершенствованный. Наличие противня (он расположен слева от коптильни и немного напоминает ее крышку) позволяет коптить более жирные продукты, не боясь того, что жир, выделяющийся в процессе их копчения, попадет на щепу и тем самым создаст препятствие для ее тления. А использование одновременно двух сеток, предусмотренных конструкцией, позволяет приготовить большее количество продуктов. Все рассмотренные конструкции характеризуются мобильностью, что обуславливает их использование в любых условиях. Для домашнего использования мы предлагаем вам обратить внимание на массивную стационарную коптильню, представленную на рисунке, которую можно использовать только в домашних условиях. Это приспособление является более профессиональным и позволит вам приготовить продукцию высокого качества. Для изготовления коптильни, вариант которой представлен на следующем рисунке, не требуется специальных профессиональных навыков. Если в вашем распоряжении есть две бочки объемом 50 л и болгарка, после осуществления надрезов в соответствующих местах, вы сможете без труда установить эти бочки так, как показано на рисунке. Чтобы готовый продукт обладал отменными вкусовыми характеристиками, необходимо четко соблюдать правила выбора дров для коптильни, знакомые далеко не каждому. В связи с этим, наша цель заключается в том, чтобы поведать их вам. Чтобы готовый продукт порадовал приятным вкусом и ароматом, необходимо использовать сырое дерево, в отсутствие которого поленья дополнительно увлажняют. Совет! Если, несмотря на наши четкие рекомендации относительно выбора древесины, вы решили использовать березовые поленья, перед началом копчения снимите с них кору. В противном случае, продукты приобретут горьковатый привкус. Чтобы продукты приобрели специфический приятный аромат, в дрова добавьте ветки можжевельника или вишневые листья. Совет! Также в качестве дров для коптильни не рекомендуется использовать хвойные породы деревьев, в виду повышенного содержания в них смол. По мнению специалистов, на цвет и, соответственно, качество готового продукта, оказывает влияние степень сгорания дров. Неполное сгорание способствует возникновению светлого дыма, который существенно улучшает вкусовые характеристики копченостей. Важно знать, что в коптильне запрещено раздувать огонь, чтобы исключить риск случайного возгорания. В коптильню укладывают уже готовые, нарубленные поленья и сверху засыпают опилками или щепой, которые тлеют, но, несмотря на это, не горят. Что касается цветовых характеристик готового продукта, то они зависят от выбранных вами пород древесины. Для того, чтоб получить золотистый оттенок продуктов, используйте красное дерево, тогда как темно-желтый оттенок продукт приобретет за счет тления ольховых и дубовых опилок. Для функционирования коптильни используйте старые садовые деревья, отжившие свое, или ветки деревьев, полученные после обрезки; Не рекомендуется использовать только крупные дрова, так как они пригодны только для получения углей. Поэтому сначала закладывайте дрова в печь и поджигайте, а потом ставьте поддон со стружкой плодовых деревьев, которая будет тлеть и придавать дыму приятный аромат; Чтобы получить качественный ароматный дым, после получения углей, закройте отверстия в крышке, чтобы обеспечить эффективное тление опилок; Качество копчения зависит не только от выбранной породы древесины. Также немаловажна постоянная подача дыма до тех пор, пока продукция, подвергаемая копчению, не будет окончательно готова. С учетом этого, для поддержания постоянной температуры копчения опилки на поддон приходится постоянно досыпать. Также не рекомендуется перебарщивать с длительностью копчения и периодически оценивать готовность продукции с использованием способов названных нами выше. strport.ru Процесс копчения придает мясу и рыбе особый аромат и неповторимый вкус, а также увеличивает срок их хранения. При желании приспособление для выполнения такого типа термообработки продуктов в быту можно изготовить самостоятельно. 1 Копченые продукты – явные фавориты на повседневных и праздничных застольях. При правильном их приготовлении мы можем насладиться не только уникальным вкусом мяса или рыбы, но и обеспечить организм множеством полезных элементов. В процессе копчения продукты частично обезвоживаются и насыщаются особыми бактериостатическими соединениями из коптильного дыма. Неповторимый запах готовых кушаний при этом обуславливается воздействием на обрабатываемые продукты питания уксусной и муравьиной кислот, производных фенолов, фракций смолистых веществ и альдегидов. Копченые продукты - летняя отрада Интересующему нас виду термообработки подвергаются не только мясные и рыбные полуфабрикаты. Коптить можно также ягоды, различные фрукты, орехи, сало, овощи, сыры. Главное правильно подобрать тип их обработки, длительность процесса, вид дров, используемых для получения дыма, и температуру последнего. Существует три способа копчения: Горячая термообработка производится при температурах 50–120 °С. Длится она от 15 минут (копчение мелкой рыбы) до 3–4 часов (свиной окорок). Никаких специальных действий для подготовки продуктов к обработке выполнять не требуется. При обычной температуре мясо и рыбу, которые приготовлены по такой технологии, разрешается хранить до 36 часов. Если положить их в холодильник, продукты будут сберегаться дольше. Но при этом их гастрономические качества снижаются. В закрытых емкостях горячие деликатесы быстро пропадают (они задыхаются, а потом протухают). Холодная процедура (20–50°) длится от 4–6 часов до 7–10 дней. Это долго. Зато готовый продукт дарит гурманам изысканный букет аромата и вкуса, а хранить его в сухих прохладных условиях (например, в обычном погребе) можно до 1–1,5 лет. За это время он лишь слегка усохнет. Но своих гастрономических характеристик не утратит. Заметим, что для проведения холодного копчения продукты нужно подготавливать по определенной схеме. Полугорячая термическая обработка выполняется при 60–70°. Эта операция придает продуктам легкость и вкус, присущие горячему копчению, и шикарный запах холодной процедуры. Обратите внимание. Полугорячая обработка осуществляется в приспособлениях для холодного копчения. Она рекомендована для свежих продуктов – парного мяса, только что выловленной рыбы и так далее. В магазинах сейчас нереально приобрести правильно закопченные продукты. Производители не заморачиваются с трудоемкой процедурой. Вместо этого они используют специальные смеси (так называемый Жидкий дым), получаемые соединением разнообразных химвеществ либо дистилляцией концентрированного дыма. После обработки полуфабрикатов подобными составами визуально и по запаху продукты становятся похожими на копченые. Но на самом деле таковыми они не становятся. В наши дни полакомиться настоящими деликатесами можно только в случаях, когда используется коптильня, сооруженная своими руками. В таком устройстве вы легко приготовите любые гастрономические изыски в домашних условиях. 2 Коптильня для осуществления холодного копчения может иметь разную конструкцию. Cвоими руками ее изготавливают из бочек, полиэтиленовой пленки, листового железа, кирпича. При этом такое приспособление обязательно имеет достаточно протяженный дымоход. По технологии дымовые газы должны полностью выгореть перед началом копчения. Этому и способствует длинный дымоход. На его стенках остаются все канцерогены, способные нанести вред здоровью, в результате чего обрабатываемые продукты окутываются ароматным легким и полностью безопасным дымком. Рыба, приготовленная в подобных коптилках, хранится до 3 месяцев, мясо – до 2. Среднестатистическая самодельная коптильня Конструктивно коптильня для проведения холодного копчения может быть стационарной либо переносной (мобильной). Такие сооружения обычно состоят из трех частей: Топку в стационарных устройствах всегда устанавливают на некотором отдалении от камеры, где производится термическая обработка. Оптимальный вариант – яма на неиспользуемой части загородного земельного участка. В ней можно сделать своими руками простейший очаг. А затем соединить его с коптильным отделением дымоходом. Топку сваривают из металла, кладут из кирпичей или термоустойчивых блоков. Ее необходимо снабдить зольником, который можно будет часто и без лишних затруднений очищать в процессе приготовления продуктов. Посмотрите на схему ниже. На ней предоставлен чертеж простой и понятной коптилки стационарного типа. Размеры отдельных элементов приспособления указаны рекомендованные. Вы можете найти чертежи с другими параметрами либо самостоятельно создать собственный элементарный эскиз. Здесь главное не ошибиться с протяженностью дымохода. Его минимальная длина должна быть 2–2,5 м. Построить дымоход несложно. Копаем канаву глубиной около 30 см и шириной порядка полуметра. Обкладываем ее стенки кирпичом. Его следует закреплять раствором на основе глины. Вместо кирпичной кладки разрешается использовать печную трубу. Ее нужно будет уложить в траншею. Сооруженный своими руками дымоход накрываем сверху листом шифера либо железа, а потом присыпаем грунтом. В верхней части топки монтируем заслонку. Она позволит настраивать интенсивность процесса горения, приток воздуха в очаг, вывод из него ненужного дыма. Проще всего изготовить заслонку из куска листового металла. Важно! Стык камеры для домашнего копчения и самодельного дымохода следует качественно загерметизировать. Неплохой результат получается при использовании глиняного раствора. Герметизацию допускается выполнять и любыми другими подручными средствами. 3 Самый простой вариант изготовления коптильного отсека предполагает использование старой железной или деревянной бочки, объем которой составляет 100–200 л. Эту емкость мы вымоем и очистим, затем срежем верхнюю ее часть, а в нижней проделаем специальное отверстие. Оно необходимо для подключения дымохода. Подготовленную таким образом бочку нужно установить на блоки либо кирпичи. Также следует сделать поддон для сборки жира, который будут выделять мясные и рыбные полуфабрикаты при копчении. Его изготавливаем из срезанной ранее крышки. Поддон по диаметру берется меньше сечения бочки. Следующий шаг – изготовление решетки. Именно на ней продукты станут коптиться. Вместо решетки можно закрепить в верхней части самодельной емкости куски арматуры. И повесить на них крючки, за которые будут цепляться полуфабрикаты для копчения. Решетку делайте из гибких ивовых прутьев. Они без труда сплетаются в изделие требуемой конфигурации. Некоторые домашние умельцы используют для этих целей тонкую проволоку. Она также позволяет сделать надежную в эксплуатации решетку. Крепление последней к бочке выполняется разными способами. Решетку можно зафиксировать на саморезы, вкрученные в стенки емкости, либо на петли (их придется заранее приварить, используя сварочник). Допускается монтаж нескольких решеток друг над другом. Здесь нужно помнить следующее. Расстояние между ними берется не менее 0,15 м. Для монтажа поддона необходимо приварить к стенам камеры несколько отрезков арматуры. У нас должна получиться конструкция в виде креста. Его центр обязан совпадать с центральной частью бочки. Специалисты советуют снабдить поддон петлей. Тогда при необходимости чистки его будет несложно достать. Коптильная емкость из старой бочки Самодельная коптильная камера нуждается в крышке. Эту часть сооружения делаем из древесины (оптимально – из лиственницы). В крышке просверливаем 5–10 отверстий. Через них лишняя влага станет выходить на воздух. Вместо крышки из древесины разрешается применять джутовый мешок. В процессе термообработки продуктов его следует набрасывать на камеру. Нюанс. Мешок обязательно смачивается в холодной воде. И только после этого набрасывается на бочку. Можно изготовить коптильню стационарного типа из кирпича. Заметим, что это процесс потребует от нас больших трудозатрат. Как правило, кирпичные камеры строятся теми, кто регулярно и в достаточно больших количествах коптит разнообразные полуфабрикаты. Кладку изделий выполняем на песчано-глиняный состав. На дно камеры укладываем лист железа, делаем решетки по уже описанным выше методикам. Стационарная домашняя коптильня иногда сооружается из листа железа. В данном случае потребуется запастись сварочным аппаратом и инструментами для работы с металлом. Нам потребуется разрезать железный лист в соответствии с размерами (запланированными) устройства. Затем согнуть его так, чтобы получился куб, у которого нет верхней части. И сварить все швы конструкции. Добавим, что обработка полуфабрикатов в холодной коптилке выполняется после определенной их подготовки. Мясу и рыбу необходимо за 3–4 дня до копчения засолить. Непосредственно перед процедурой продукты достают из соли, промываем и высушиваем (1,5–2 часа) на свежем воздухе. За это время полуфабрикаты слегка подвялятся, что придаст готовому деликатесу еще более оригинальный вкус. И главное. Холодная самодельная коптильня для дома используется при относительно прохладной погоде на улице. В жаркую пору получить по-настоящему ароматный и вкусный продукт в ней вряд ли получится. 4 Для сооружения коптильни переносного типа для холодного копчения можно использовать и более простую технологию. Допустим, вы отправились с друзьями на пару дней на природу и хотите порадовать себя вкусными копчеными деликатесами. Понятно, что тащить с собой бочку для строительства полноценной коптилки нет смысла. Вместо нее можно использовать небольшую по объему старую скороварку либо металлическое ведро. Принцип строительства мобильного приспособления для термической обработки продуктов с помощью этих предметов будет аналогичным уже описанному: Можно даже обойтись без ведра. Устилаем устье вырытой нами канавы валежинами, предварительно немного расширив его. Решетку делать не нужно. Ее функцию станут выполнять сами валежины. Размещаем на них продукты для копчения. Накрываем их сверху ветками, растапливаем дрова в топке и ждем, когда приготовится роскошный деликатес. Тот самый случай, когда ведра нет, зато нержавеющая емкость под рукой была Обратите внимание! Такая походная мини-коптильня не требует обустройства заслонки. Регулирование дымогенерации осуществляется в ней при помощи практически любых свежих листьев, имеющихся под рукой. Их следует укладывать на костер. Если вы хотите получить копченое мясо (рыбу) с нежным и мягким вкусом, используйте листья липы, с терпким – листочки ракиты, ясеня, дуба, ивы. Мобильный шкаф для копчения часто делают из обычной полиэтиленовой пленки. В этом случае даже не нужно мучиться с рытьем дымохода. Здесь все просто. Приобретаем 2 квадратных метра плотной пленки (рекомендуется использовать материал, предназначенный для сооружения теплиц). Зашиваем изделие с одной стороны. У нас должен получиться своеобразный мешок. Выбираем участок земли площадью около 4 квадрата. Вбиваем по его углам деревянный колья. Над землей они должны возвышаться метра на 2. Скрепляем эти опоры вверху поперечными элементами. А противоположные стойки соединяем друг с другом по диагонали прутками (делаем несколько рядов), на которые и развешиваем полуфабрикаты для обработки. Теперь нам нужно аккуратно натянуть ранее сшитый полиэтиленовый мешок на сооруженную конструкцию. Он обязан закрыть ее примерно наполовину. Высыпаем на площадку между опорами горящие угли, накрываем их сверху зелеными листьями либо травой. После этого натягиваем пленку до поверхности почвы. Осталось качественно закрепить мешок на земле, чтобы получить полностью герметичную конструкцию. Изготовление коптильни завершено. Подобные сооружения идеальны для термообработки свежевыловленной рыбы, недавно собранных грибов. Мелкая и средняя рыбешка будет готова в коптилке из пленки часа за 2–4. При потребности следует добавлять свежую зелень в костер, чтобы получить густой дым. 5 Коптильня горячего копчения сооружается своими руками немного иначе. Ее конструкция имеет важные особенности, что обусловлено быстрым приготовлением продуктов в ней. Поэтому коптильни, предполагающие выполнение горячего копчения, строятся с учетом следующих требований: Отметим еще один момент. Коптильню для самостоятельного горячего копчения желательно оснащать специальным гидрозатвором. Он сооружается своими руками без особых проблем. Нужно сделать по периметру коптильной камеры небольшое углубление в форме литеры П и заполнить его обыкновенной водой. Крышка накрывает гидрозатвор, за счет чего создается естественное препятствие для выхода дыма изнутри и попадания воздуха снаружи. Столь простой механизм качественно герметизирует камеру. Он, кроме того, значительно снижает объем канцерогенов, имеющихся в дыме. Коптильня горячего копчения без гидрозатвора тоже имеет право на существование Дрова и щепа для растопки очага обязательно просушиваются. В домашние коптильные приспособления их желательно укладывать в одну кучку. Тогда костер станет выделять мало тепла, а дыма от него будет много. Самая популярная щепа делается из дуба (подходит для готовки красного мяса и дичи), яблони и вишни (копчение ягод, овощей, сыров, орехов). Березовый и ивовый материал используется при обработке болотной и речной рыбы, медвежатины, лосятины. А щепа из ольхи является универсальной для горячего копчения любых продуктов. 6 Сделать коптильню для качественного горячего копчения полуфабрикатов можно по-разному. Посмотрите на схемы ниже. На них несложно подобрать чертеж подходящей вам коптильни. Делать такие приспособления лучше всего из нержавеющей стали. Но большинство домашних умельцев обустраивают простейший коптильный шкаф любого из указанных на чертеже видов своими руками, используя ненужную бочку или обычное ведро. Что нам нужно сделать? Берем бочку и оборудуем в ней топочное отделение. Для этого в днище емкости вырезаем 3–5 отверстий. Они понадобятся для удаления золы от дров. Отверстия также станут выполнять функцию поддувала. Вырезаем часть стенки в нижней части бочки. Сооружаем из отрезанного куска простую дверцу. Ее размеры берем в пределах 20х30 см. Привариваем задвижку-ручку и петли к дверце. Далее разделяем бочку (соотношение нижней и верхней части – 1 к 3) металлическим 4-миллиметровым по толщине листом. Его следует прочно приварить к стенкам емкости. Нижняя часть бочки будет играть роль топки, верхняя – коптильной камеры. Затем делаем отверстие под трубу для отвода дыма в днище самодельного шкафа. Такой дымоход нужно также приварить к стеновой поверхности бочи. Важно! Трубу не нужно делать слишком протяженной. В горячем шкафу необходимости в сильной тяге нет. Нам осталось сделать своими руками крышку с отверстием, гидрозатвор (при желании), крючки либо решетки для размещения продуктов и поддон. Не будем повторяться. Процесс их изготовления аналогичен действиям, которые мы описывали для холодных приспособлений. Если коптилка-бочка для дома будет использоваться достаточно активно, например, вы планируете часто обрабатывать большое количество полуфабрикатов, топку конструкции лучше вынести за пределы емкости. Тогда появляется возможность использовать весь ее объем. Разделять бочку на две части при этом не нужно. Топку сооружаем на свободном участке: При таком подходе к делу за один раз получится закоптить ощутимо больше продуктов. Миниатюрную коптильню для обработки полуфабрикатов при высокой температуре можно соорудить и с меньшими трудовыми затратами. Берем простое ведро из металла. Засыпаем его дно стружкой и опилками, накрываем их решеткой. В верху ведра проделываем пару отверстий. Вставляем в них прутки, монтируем крючки. Теперь устанавливаем ведро-коптилку на огонь. Когда щепа начинает тлеть, подвешиваем продукты на крючки и накрываем устройство, сделанное своими руками, плотной крышкой. Через 30–60 минут деликатесы будут готовы! obustroen.ru Содержание Изготовить классическую коптильню своими руками достаточно просто в домашних условиях. Безусловно, купить изделие гораздо проще, но если вы часто бываете на природе и данный агрегат используете часто, то выгоднее, конечно, найти схемы и чертежи и выполнить работу самостоятельно. Оптимальный вариант для отдыха и использования в квартире — это классическая коптильня 500х300х300. Фото различных конструкций можно легко найти в интернете. Для придания неповторимого аромата и изысканного вкуса рыбному улову или мясу, необходима качественная коптильня. Чтобы окончательно определиться с выбором, нужно знать некоторые особенности копчения. Копчение бывает двух видов – горячее и холодное. Оба вида подходят для копчения рыбы, мяса, сала и других продуктов. Вариант для квартиры и выездов на природу предусматривает только коптильни горячего копчения, так как они довольно быстро готовят и удобны из-за небольших размеров. Разницу в размерах коптильни горячего и холодного копчения можно увидеть на фото, на которых изображены чертежи коптилок. Коптилки для рыбы и мяса обоих видов копчения можно изготовить своими руками, их принцип — в тлении щепы, дым от которой и коптит продукты. Для коптилки подходит почти любой материал, даже вышедшая из строя бытовая техника. Но для изготовления своими руками классической коптильни потребуется нержавейка. Итак, при изготовлении своими руками, после определения с размерами коптилки и видом копчения, нужно подумать о ее внешнем виде. Классический вариант коптилки с размерами 50х30х30 см подойдет для средних порций рыбы и мяса, компактен и легок в изготовлении своими руками. Перед выполнением работы лучше ознакомится с чертежами на фото или посмотреть видео уроки. Для работы потребуется: Это минимальный набор для выполнения своими руками небольшой коптилки для рыбы или мяса. Перед работой лучше всего сделать чертеж на бумаге, а если сомневаетесь, то изготовить схему-лекала на плотном картоне, так будет легче вырезать ровные детали. Из листа стали необходимо вырезать поперечные стенки 30х30 см и продольные 30х50 см, таким образом, получится прямоугольная конструкция. Далее необходимо вырезать дно. Его можно сделать чуть больше, чтобы приварить «внахлест». Детали необходимо сварить между собой под углом в девяносто градусов. Конструкция должна быть максимально герметична, иначе едкий дым будет проникать наружу, а тепло уходить. Для более качественной сварки можно дополнительно сварить швы внутри шкафа. Более подробную схему можно посмотреть на фото. Коптилка обязательно должна иметь крышку. Ее можно сделать «домиком», такая конструкция позволит закрепить крючки для небольших кусков рыбы или других продуктов. Для более герметичного закрывания, например, чтобы пользоваться коптилкой в квартире или дома, крышку оснащают гидрозатвором. Для этого необходимо предусмотреть небольшой канал для воды. Вода заливается в последний момент и исключает попадание дыма в помещение. Самый простой вариант – это, конечно, обычная плоская крышка, ее делают чуть больше, чтобы коптильный шкаф легко закрывался. На крышку приваривают ручку и вставляют небольшую металлическую трубку для выхода дыма. Трубка удобнее отверстия, так как имеет небольшое сечение, она прочнее, и на нее легко надеть шланг, чтобы в условиях домашнего использования вывести его в форточку. Чертежи различных моделей крышек можно посмотреть на фото, а также воспользоваться видео-инструкцией, чтобы не ошибиться в размерах. Далее переходим к внутреннему оформлению шкафа, обязательно в нем должны присутствовать следующие элементы: Решетку и крючки можно изготовить из арматуры, сварив ее между собой. Крючки можно сделать, просто изогнув проволоку. Для них подойдет конструкция из арматуры крест-накрест. Фото поможет сделать правильную решетку. Поддон можно также установить на решетку из арматуры. Лучше делать поддон съемным, чтобы его было легко мыть после использования, и он не мешал загрузке щепы. По бокам коптилки можно установить дополнительные ручки, для удобства переноса и установки на огонь. Такую коптилку можно использовать как на открытом огне – костре или газу, так и разогреть ее с помощью простой бытовой электроплитки. В последнем случае время готовки может быть увеличено, в зависимости от мощности электроприбора. Не рекомендуется использование коптилок на дорогих электрических плитах, так как дно в процессе нагрева может деформироваться и повредить плиту.Со временем, если объемы заготавливаемых продуктов увеличатся, можно изменить размеры изделия, для этого к уже имеющимся чертежам нужно пропорционально добавить несколько сантиметров. Чертежи помогут не только сделать ровную красивую конструкцию, но и помогут определиться с расчётом материалов. Для создания чертежа своими руками можно воспользоваться фото- или видео-материалами. Хоть на первый взгляд конструкция коптилки очень проста, она еще оставляет место для фантазии. Если коптильня изготовлена своими руками, то заменить или улучшить ее конструкцию не составит труда. Ценители отдыха на природе и любители вкусно покушать точно оценят удобство съемных деталей. Для установки решеток под поддон или продукты можно использовать уголки, которые необходимо приварить с внутренней стороны стенок, чтобы удобно было снимать и мыть. Еще вариант: сделать решетки на ножках, они будут удобнее для установки. Чертежи решетки на ножках можно посмотреть на фото. Чтобы аромат рыбы или мяса был чуть изысканнее, вместо обычной щепы можно использовать щепу фруктовых деревьев и кустов (вишня, черная смородина). Ни в коем случае нельзя использовать хвойные деревья или кору березы, осины, иначе вкус рыбы и мяса будет горчить. Также при работе своими руками важно придерживаться всех размеров и использовать измерительные приборы. Коптилку в последствие можно усовершенствовать термометром, это позволит отслеживать температуру копчения рыбы или других продуктов. presstile.ruКоптильня своими руками – приспособление для готовки шикарных деликатесов. Коптильня горячего копчения своими руками чертежи и размеры
Коптильня горячего копчения своими руками с чертежами

Процедура монтажа коптильни







Технологический процесс горячего копчения

Домашние продукты питания — залог хорошего настроения и крепкого здоровья
Как самому сделать коптильню горячего копчения – пошаговое руководство. Жми!
Виды копчения
Что необходимо знать о горячем копчении
Устройство коптильни
Принцип работы коптильни
Выбор дров для коптильни
Материалы для изготовления
Изготовление коптильни из металлических уголков
Для того чтобы готовить продукты на открытом воздухе, нужно задуматься о дополнительных приспособлениях для их приготовления и благоустройстве самого участка. Из этой статьи Вы узнаете как сделать мангал из газового баллона. Подготовка продуктов к копчению
Коптильня горячего копчения своими руками


Коптильня горячего копчения своими руками: чертежи


Нестандартные коптильни: варианты


Коптильня горячего копчения своими руками
Требования к коптильне

Особенности конструкции коптильни
Конструктивные элементы

Емкость (11)

Поддон (5)
Решетка (4)

Типы «дымогенераторов»



Домашняя коптильня горячего копчения: инструкция по изготовлению
Содержание
Особенности различных видов копчения: изучаем процесс копчения



Общее устройство простейшей коптильни горячего копчения. Суть процесса копчения



Коптильня горячего копчения фото



Коптильня горячего копчения: пошаговая инструкция




Как еще изготовить коптильню? Запасной вариант для ленивых




Различные варианты коптилен горячего копчения и их преимущества




Как выбрать дрова для коптильни? Советы новичку


Проверенные советы мастеров

Коптильня горячего копчения видео
Как сделать коптильню своими руками (горячего, холодного копчения): чертежи, размеры


Классическая коптильня, фото и чертежи : как сделать самому
Как определиться с выбором


Классическая коптильня


Схема коптилки изнутри

Вариации внутреннего оформления коптилки, чертежи
