Вы собираетесь делать ремонт, но типовые внутренние интерьеры кажутся вам скучными и недостаточно интересными? В этом случае можно составить индивидуальный дизайн-проект для любого помещения, будь то гостиничный номер, комната в коттедже или частном доме, интерьер кафе, ресторана, бутика, офиса. При желании подобный проект можно разработать самостоятельно при помощи специальных компьютерных программ, в изобилии представленных в интернете. Однако большинство предпочитает воспользоваться услугами профессионального дизайнера, который подберет наиболее подходящую форму для выражения ваших творческих идей и замыслов. Процесс разработки дизайн-проекта интерьера можно разделить на три этапа: Сложность и качество выполнения во многом зависят от размера планируемого бюджета. Дизайн-студия позволяет получить новый дизайн при минимальных затратах. Одновременно предоставляются профессиональные услуги по контролю за выполнением ремонтно-отделочных работ. Разработка дизайн проекта – это сложный комплексный процесс, главную роль в котором на разных этапах играет тот или иной исполнитель. Интерьер любого помещения – офиса, загороднего дома, коттеджа, отдельной жилой комнаты – должен быть удобен, практичен, функционален, эстетичен. Порой самостоятельно разработать дизайн-проект и в дальнейшем успешно реализовать его на практике сложно даже человеку с хорошим художественным вкусом. Поэтому лучше доверить эту работу специалистам, обладающим необходимыми знаниями, навыками и практическим опытом. Оптимальным решением будет обращение в специализированную студию, занимающуюся составлением и реализацией различных интерьерных решений. Одна из таких студий – ARSTELLE DESIGN http://www.arstelle.ru, обладающая большим опытом в области дизайна интерьеров. В разработку принимаются любые дизайнерские идеи, независимо от степени сложности их реализации. Среди сотрудников студии есть инженеры, визуализаторы, архитекторы, работающие слаженно и продуктивно. Такой комплексный подход позволяет решать задачи нестандартно, быстро и эффектно. Все работы по устройству внутреннего интерьера можно разделить наследующие три этапа: Оригинальное и практичное оформление внутреннего пространства состоит из трех основных этапов. 1. Разработка дизайн-проекта 2. Ремонт и отделка 3. Комплектация объекта мебелью, светильниками, декорами Первоначальный этап архитектурно-дизайнерской деятельности по планированию внутреннего пространства также проходит в несколько этапов: Вышеперечисленные пункты обязательны для включения в идеальный план рабочего процесса. Заказ мебели проводится только после того, как все строительно-отделочные работы завершены. Для проведения ремонта жилого помещения площадью 50 м2 ориентировочно требуется 3-4 месяца. Проработка интерьерного плана в условиях ограничения по времени также возможна, однако при таком варианте развития событий весьма вероятно появление непредвиденных рисков и финансовых издержек. Обычно изначально проводится разработка графических чертежей, то есть перенос на бумагу схем устройства канализации и прокладки электрических систем. Связано это с тем, что обустройство этих систем должно производиться в первую очередь. Составление грамотного дизайн-проекта и его согласование с заказчиком – основа успешного завершения строительно-отделочных процессов. Любые изменения и корректировки следует вносить на стадии подготовки эскиза. В противном случае возможно появление дополнительных материальных расходов. Если решили заказать дизайн проект у профессионалов, студия ARSTELLE DESIGN проведет детальную консультацию, разработает четкую схему по реализации архитектурного или художественного оформления. Работы проводятся на высоком профессиональном уровне и в строго оговоренный срок. Кроме того мы составим индивидуальный чертеж вентиляции и электроснабжения; согласуем с вами стили; проведем авторский надзор. Мы работаем с 2006 года. Впечатляющий стаж и накопленный опыт позволяют нам проводить самостоятельные работы по планированию помещений различного типа и по применению различных строительных технологий. Мы гарантируем создание эксклюзивного внутреннего интерьера, доступного с точки зрения материальных затрат и без потери качества материалов. Творческий подход и нестандартный взгляд на привычные вещи, использование новейших перспективных технологий, следование трендовым тенденциям в области дизайна и проектирования, неподдельный интерес к собственной работе – всё это создает предпосылки для успеха любого реализуемого нами проекта. Наши клиенты неизменно довольны полученными результатами! Чтобы заказать дизайн проект в студии ARSTELLE DESIGN, достаточно обратиться к представителю компании на сайте http://www.arstelle.ru. Отправьте заявку на указанный электронный адрес, воспользуетесь окном обратной связи или позвоните по указанному телефону. Первоначальная консультация со специалистом поможет определить основные текущие проблемы, выбрать пути их решения и определиться с общей стратегией. В случае, если заказчика устраивают все условия, производится выезд на объект для осуществления необходимых замеров. На основании полученных данных составляется предварительный расчет. После этого разрабатывается план дальнейшего сотрудничества и проходит подписание Договора на разработку дизайн-проекта. openfile.ru Многие начинающие специалисты и любители дизайна неизбежно задаются одним и тем же важным вопросом: как сделать дизайн проект квартиры, который бы отвечал не только эстетическим требованиям, но и был функционально и композиционно грамотным. Уж прости за такие высокопарные банальности, но, согласись, без теоретических знаний и понимания законов пространства просто невозможно создать качественный проект квартиры. Не путать с банальной расстановкой мебели, рисунками в карандаше своими руками и выбором штор! Фото проекта интерьера: Jake Curtis Итак, с чего же все-таки начать. Помним, что дизайнерский проект квартиры всегда делается на основе реального помещения — и, само собой, до начала ремонта. Поэтому и начинаем все с обмерочного плана комнат, и сделать его лучше самому, так как размеры интерьера имеют решающее значение. Необходимо нарисовать дизайн квартиры самостоятельно, план всех помещений и хорошенько подумать над его дальнейшим улучшением. Речь идет о планировке, ведь план проекта квартиры является половиной успеха будущего интерьера. Как же разобраться с планом квартиры? Здесь нужно принимать во внимание все нюансы: от количества проживающих в квартире до их привычек, хобби и образа жизни. Но помни — какими бы замысловатыми не были причуды хозяев квартиры, неизменным остается то, что планировка всегда делится на две зоны: дневную и ночную (зону сна). Они не должны пересекаться, а лишь грамотно объединяться и быть взаимосвязанными. Как сделать грамотный план проекта квартиры? Необходимо создать эскиз интерьера комнат, в котором ты сможешь "набросать" возможные варианты расстановки мебели, линии транзитов между зонами (проще говоря то, как люди чаще всего будут ходить по квартире) — все это концептуально, без деталей. Можно сделать это самому вручную. Кстати, нет ничего лучше на начальном этапе проектирования интерьера, чем скетчи, созданные своими руками. Фото проекта кухни: Stefan Wolf Lucks После этого нужно перевести план интерьера в специальные дизайнерские программы, вычертить проект квартиры и начинать работу над более точным чертежом. Очень важно при проектировании следовать размерам, разработанным тобой ранее. Определились с окончательным вариантом планировки — делаем эскиз дизайн проекта квартиры. Как? Для начала ты должен разобраться с общей концепцией интерьера. Определись со стилем, который появится в пространстве после ремонта. В идеале, хорошенько изучить особенности выбранного тобой дизайнерского направления, чтобы проект дизайна интерьера был гармоничным. Определился? Отлично. Теперь нужно, используя дизайнерские программы, к примеру 3d max, разработать более подробную концепцию по каждому из помещений и сделать макет комнаты. Создай объемно-пространственную модель интерьера, который существует сейчас, еще до ремонта, и начинай наполнять его твоими самостоятельными дизайнерскими решениями. Вот мы постепенно и начали разрабатывать непосредственно сам дизайн проект квартиры. Разрабатывая дизайн интерьера помещения, действуй самостоятельно от общего к частному. Как создать дизайн интерьера комнаты, который был бы гармоничным? Все очень просто — нужно определиться с общей концепцией. Идеей, которая была бы нитью всего проекта, пронизывающего интерьер насквозь. Этот общий концепт должен ощущаться в каждом помещении квартиры, в выбранной цветовой гамме, в каждом элементе мебели. В общем-то, для того, чтобы создать дизайн интерьера теперь тебе нужно самому придумать наполнение каждого помещения, нуждающегося в ремонте, подобрать соответствующую по стилю мебель, поработать с освещением, текстурами и цветом. Необходимо разработать каждый уголок квартиры и наполнить его еще и декором. Тебе необходимо создать дизайн интерьера, в котором будет уютно и комфортно, и для лучшего понимания объема для тебя же самого, здорово пригодятся макеты помещений, созданные в компьютере (а когда-то мы делали это из бумаги или пластилина своими руками. Ох уж эта ностальгия). Отрендерилось? Здорово! Двигаемся дальше. Читай также: Дизайн однокомнатной квартиры И пусть прорабы утверждают, что могут повторить ремонт по картинке с легкостью фокусника, без грамотных чертежей, более вероятно, дизайн не будет таким, как нужно. Пришло время важнейшей части, которая пригодится при самом ремонте, разработки чертежей. Что нужно? В первую очередь, для ремонта необходимы образмеренные планы интерьера, планы освещения, электрики, сантехники, напольного покрытия, потолков, отопления и так далее. Список можно продолжать и дальше, ведь объем чертежей для хорошего дизайнерского ремонта не так уж и мал! Фото проекта гостиной: Dwell Не стоит пренебрегать этой частью проекта комнаты, ведь без него твой красивый дизайн превратится в некую "пародию", созданную своими руками. Что дальше? А настало-то время для самого захватывающего и творческого процесса, а по совместительству еще и завершающего этапа проекта — подбора дизайнерских элементов, мебели, освещения и аксессуаров твоего интерьера. Здесь тебе нужно подобрать составляющие дизайна, и созданные ранее визуализации будут здесь в помощь. К слову о творчестве, здесь ты можешь выбирать не только промышленные объекты, но и создать собственную индивидуальную мебель. Для этого можно воспользоваться эскизами и скетчами, созданными своими руками, для дальнейшей их реализации. После того, как все составляющие проекта завершены, у тебя получится полноценный альбом, показывающий все составляющие дизайна: от обмеров до подбора мебели и аксессуаров. А это и есть полноценный грамотный дизайн интерьера! thearchitect.pro Для разработки дизайн-проекта требуется при осуществлении более-менее серьезных работ по ремонту квартиры или офиса, так как именно он позволяет учесть все функциональные детали и особенности конкретного помещения и создать по-настоящему красивый и, что немаловажно, практичный и удобный интерьер. Дизайн-проект особенно необходим при планировании сложных ремонтных работ, сопровождающихся переоборудованием квартир и офисов, их перепланировкой и так далее. Обойтись без такого проекта можно лишь в тех случаях, когда проводится небольшой косметический ремонт в типовом помещении с имеющимися перегородками между комнатами, в остальных же ситуациях о грамотном ремонте или отделке квартиры и офиса без составления авторского дизайн-проекта говорить просто-напросто не приходится. В процессе создания дизайн-проекта дизайнер учитывает все пожелания заказчика, принимает во внимание технологические и стилистические особенности помещения, а также социальные, психологические и физиологические тонкости жизнедеятельности конкретной семьи, если речь идет о дизайне жилого помещения, или рабочего коллектива, если планируется ремонт офиса. Активное взаимодействие архитектора и дизайнера с заказчиком – вот главное условие, выполнение которого гарантирует создание действительно функционального, уютного и комфортного интерьера в помещении. Именно поэтому так важна совместимость заказчика и дизайнера с точки зрения психологического контакта между ними. Если подобного контакта не возникнет, создать дизайн-проект, отвечающий всем замыслам клиента, не получится. Необходимо понимать, что хороший дизайнер является творческой личностью, которая всегда старается создать эффектный и оригинальный интерьер, отличающийся индивидуальностью и своеобразностью. А воплощение в жизнь такого проекта иногда требует «лишних» финансовых затрат, что не соответствует пожеланиям и возможностям заказчика. В этом случае неоценимую помощь оказывают современные компьютерные технологии, позволяющие уже на первых стадиях разработки дизайн-проекта увидеть на экране монитора, каким в результате будет финальный интерьер помещения. Компьютерная визуализация настолько точна, что заказчик может сам вносить желаемые изменения в проект, «расставлять» предметы меблировки, «развешивать» люстры, бра, светильники и т.д. 3Д моделирование интерьера Важность дизайн-проекта не только в том, что он дает точное представление об интерьере помещения после ремонтных и отделочных работ, но и в том, что проект позволяет буквально до копейки просчитать общую стоимость ремонта с учетом цены на строительные материалы, предметы меблировки и пр. Зная точную смету планируемых работ, заказчик может подкорректировать какие-либо нюансы, к примеру, заменить дорогостоящую отделку на более «экономную», либо подобрать менее дорогую мебель, еще перед началом работ. Добавим, что строительная бригада выполняет все ремонтные работы, основываясь на схемах и чертежах дизайн-проекта, что и обеспечивает создание идеального интерьера, отвечающего всем чаяниям заказчика. Создание дизайн-проекта можно условно разделить на несколько этапов: План квартиры Мировой строительный опыт показывает, что созданием дизайн-проекта и всеми ремонтными и отделочными работами должен заниматься один подрядчик, так как в этом случае гарантируется грамотный авторский надзор за всеми мероприятиями по ремонту. Авторское сопровождение подразумевает контроль за правильностью всех осуществляемых работ, разметку всех элементов (потолков, плитки, сантехники, системы освещения, инженерных сетей, проемов, перегородок и пр.) совместно с исполнителями отделочных и ремонтных работ, внесение, в случае необходимости, каких-либо изменений в проект. Авторский надзор за строительными мероприятиями заканчивается только тогда, когда заказчик примет все выполненные работы. (Просмотрено 574 раз, 1 просмотров сегодня) remontset.ru Любой из нас может столкнуться с необходимостью создания дизайн-проекта интерьера при покупке нового жилья или капитальном ремонта старого. Сегодня подобные услуги можно заказать в специализированных агентствах, но всегда приятно сэкономить, тем более в таком дорогостоящем деле как это. В данной статье мы подробно рассмотрим разработку дизайн-проекта интерьера, опишем максимум нюансов и особенностей этой работы, а также расскажем, как собрать нужный пакет документов для строительства. Дизайн интерьера занимает много времени и сил. Чтобы сделать наиболее полный и подробный дизайн-проект, необходимо обладать хотя бы инженерными навыками, не говоря уже о технической и художественной стороне процесса. По этой причине к работе привлекают не одного, а нескольких специалистов разных профилей. Этапы создания проекта на начальной стадии: Если вам нужно будет согласовывать планировку и проект в соответствующих инстанциях, рекомендуется сделать специальных единый чертеж с будущими изменениями и их размерами. После согласования можно приступать к следующей стадии процесса – разработке отделки потолка и пола. Начинать разработку покрытий для пола и оформления потолка можно только после утверждения дизайн-проекта интерьера квартиры или дома. На данном этапе необходимо продумать до мелочей композиционные вопросы, решить конструктивные и пространственные задачи. Пол и потолок – это не просто плоские горизонтальные бесполезные плоскости в жилье. В умелых руках дизайнера они становятся функциональными и декоративными элементами интерьера. Для начала нужно создать схему функциональных зон, иными словами, продумать зонирование площади. Так, если это большая студия, обозначьте место для кухни, спальни, рабочее пространство, прихожую. При помощи различных напольных покрытий можно эффектно визуально разделить комнату на несколько функциональных зон, не жертвуя свободным пространством. Напротив, можно объединить площадь при помощи одного фактурного покрытия, создав ощущение воздушности и задав интерьеру определенный стиль. Выполнять планы полов для каждого помещения нужно схематично, главное на этом этапе – обозначить границы и типы напольных покрытий. Одновременно можно создавать дизайн будущих потолков – придумать, где будут расположены ниши, лепнина или другие архитектурные изыски. На «потолочных планах» надо обозначить границы облицовочных материалов, подробную разметку высот, отметить расположение потолочных осветительных приборов (сценарий освещения), подсчитать площадь и сделать раскладку покрытий, если это необходимо. После проработки плана полов и потолков можно приступать к работе с электричеством и проводкой. План-чертеж потолка и схема расположения потолочного и настенного освещения напрямую связаны с расположением выключателей. На данном этапе следует продумать способы подключения всех осветительных приборов и их групп. Советы по созданию плана электрики: Иногда хочется отступить от общепринятой классики и превратить свое жидище в произведение архитектурного искусства. Сделать это можно при помощи разнообразных декоративных элементов и инженерных решений. Так, уже много лет не теряют популярности потолочные ниши из гипсокартона, в которые вмонтирована подсветка. Так можно создать мягкое освещение, которое не утомляет глаза. К услугам любителей разнообразия также всевозможные архитектурные элементы: полуколонны, колонны, арки, барельефы, лепнина и т.д. Какой бы способ украсить свой дом вы ни выбрали, все это требует самых подробных разъяснений в чертеже. Схематично укажите конструктивные особенности детали интерьера, ее размеры и расположение в пространстве (высота, расстояние от потолка, пола, радиус и т.д.). Если выделаете сложный многоуровневый потолок, нужно создать отдельный его план с привязками, радиусами и сеткой для сооружения. Если раньше можно было ограничиться схематичным обозначением границ напольных покрытий, то сейчас нужно описать все более подробно. Например, если вы собрались делать облицовку керамической плиткой, нужно сделать подробный план раскладки. Выберите в магазине нужную модель плитки, укажите точные размеры, не забыв принять в расчет швы и направление раскладки. Только так можно максимально точно подсчитать нужное количество материала, чтобы не переплачивать лишние деньги. Также рекомендуется выполнить раскладку кафеля в цвете, чтобы можно было начинать создавать гармоничную цветовую гамму помещения. Развертки стен всех комнат играют роль своеобразной навигации для создания дизайн-проекта интерьера дома в целом. Чтобы сделать развертку стен, выполните следующие действия: После создания разверток вы сможете точно подсчитать необходимое количество материалов для каждой стены, потолка и пола в квадратных метрах. Квадратные метры, в свою очередь, можно легко перевести в нужное количество упаковок плитки, банок краски, рулонов обоев и т.д. Подсчитайте, сколько погонных метров карнизов, плинтусов и молдингов вам понадобится. На этом этапе можно создать цветной дизайн-проект интерьера комнаты с конкретной раскладкой плитки. Не забудьте указать в смете стоимость дверей, оконных рам, светильников, сантехники, мебели т т.д. Смета поможет вам ориентироваться на строительном рынке и не потратить больше, чем необходимо. Дизайн-проект интерьера дома можно завершить реалистичной компьютерной 3D-визуализацией всех помещений. Делается это при помощи современных компьютерных программ, которые позволяют увидеть, как будет выглядеть ваш будущий дом и исправить возможные недочеты до непосредственного строительства. При помощи разнообразных текстур, фактур и цвета можно придать проекту максимальную реалистичность. Это облегчит выбор отделочных материалов, мебели и элементов декора. recn.ru Автор: Алла Бабай, дизайнер интерьера Бывает так, что в жизни появляется необходимость изменить пространство вокруг себя. Расширение семьи, переезд в новое жилье, смена обстановки, ребрендинг компании – у всех разные причины, но одна цель. Не всегда получается достигнуть эту цель самостоятельно, так как требуется много ресурсов: временных, материальных и эмоциональных, - да и зачастую не хватает опыта и знаний. Но в современном мире есть возможность найти помощников в этом деле - дизайнера и строителей. Им вместе с заказчиком предстоит достигнуть очень сложную и интересную цель: создать максимально комфортную обстановку для всех заинтересованных лиц и их гостей. Задача дизайнера - выполнить дизайн-проект, основываясь на пожеланиях заказчика. Это пакет чертежей и эскизов, по которым производятся строительно-ремонтные работы. Стилевое решение интерьера. Это первое, что спрашивает дизайнер. Стиль влияет на выбор конструктивных решений и на декор. Личностные особенности.Каждый из нас чем-то занят в жизни, имеет свои увлечения, черты характера, которые влияют на образ жизни. Профессия и интересы, рабочий процесс отражаются на зонах в помещении. Так, например, человеку, работающему дома, предоставляется отдельный кабинет или индивидуальное рабочее место. Эстетика и психологический комфорт для каждого, кто находится в помещении. Выбор цветовой гаммы, выверенные композиции в декоре, выделение главного и расстановка акцентов, оформление личными вещами или внедрение фирменного стиля компании - без всего этого нет «души», а значит, и индивидуальности Психологический комфорт связан с физиологическим. Должна быть возможность подстроить его под нужды разных людей: регулирование освещения, климата, изменение размеров комнаты раздвижными перегородками и т.д. Так создается уют. Решение функциональных задач интерьера. Обязательно продумывается эргономика, удобство в выполнении повседневных дел, передвижении по помещению. Важно обеспечить достаточную освещенность естественным светом, продумать искусственное освещение, вентиляцию, обогрев и кондиционирование. Управление этими системами должно быть удобным и не вызывать замешательств в поисках конкретных выключателей, например. И все это проектируется на основании строительных норм и правил. Безопасность и экологичность интерьера.Здесь имеется ввиду пожаробезопасность, надежность конструкций, правильный выбор материалов, чтобы избежать отрицательного влияния на организм человека. Также надо создать определенный микроклимат в помещении. Отчасти в этом помогут комнатные растения и технологические новинки рынка, которые очищают и увлажняют воздух. Экономические вопросы. Если изначально определиться с примерным (а бывает и абсолютно точным) бюджетом, дизайнер подбирает используемые конструкции, отделку и декор соответствующих категорий. Это проще, чем задумать вавилонскую башню, а в итоге при недостаточном финансировании жить в недостроенном доме или квартире. Грамотно выполненный дизайн-проект позволяет незначительно поменять планировку после завершения ремонта, усовершенствовать некоторые зоны при возникновении новых потребностей, заменить отделку без вреда для идеи по истечении некоторого времени. А уж про налаженный рабочий процесс в недостроенном офисе можно вообще забыть. Также в дизайн-проект входят спецификации материалов и оборудования, они упрощают процесс комплектации объекта. Все вышеупомянутое отражается в проекте, поэтапно согласовываются чертежи и эскизы. На выходе у заказчика будет полный комплект чертежей для реализации замысла. В пакет входят обмерочные чертежи, планы расстановки мебели, осветительного, сантехнического, вентиляционного оборудования, монтажные чертежи, планы и развертки с раскладкой отделочных материалов, сопроводительная документация. Заказчику выдается на руки несколько экземпляров для себя и строителей. Перед строителями стоит задача выполнить полный перечень строительных работ согласно проекту. С дизайн-проектом разговор со строителями принимает более конструктивный характер. Создание дизайн-проекта и его дальнейшая реализация – это сложный, но очень интересный процесс, в котором можно наделать много ошибок, не будучи специалистом в нужной области. В современном мире во всех сферах так. Ведь не может же без соответствующей подготовки лифтер делать операции на сердце, так же, как и врач танцевать в балете. Но стоит пройти весь путь от бетонных стен до готового комплекта чертежей с поддержкой специалиста, чтобы поскорее достичь желанной цели – обновленный интерьер, удобный, эстетически привлекательный, а самое главное – индивидуальный. designbd.ru Обмерочный план помещения – базовый документ, который необходим для последующей разработки проекта.Это чертеж помещений с указанием размеров всех элементов. На обмерном плане указывают точные параметры – высоту, ширину, длину каждого из помещений, несущие стены и перегородки, параметры дверных и оконных проемов. Также необходимо отметить расположения всех инженерных коммуникаций, стояков канализации и водоснабжения, вентиляционных шахт, датчиков, извещающих о пожаре, электрощитков, а также отопительных щитов.При выполнении замеров необходимо фиксировать положения объекта на видео и фото, а если нужно делать привязку к сторонам света.Внимательное и тщательное составление этой технической документации станет основой качественного выполнения общего комплекса работ, связанных с разработкой дизайна помещения. Планировочное решение – ключевая часть дизайн-проекта. На нем строится будущий интерьер. От него зависит функциональность помещений, расположение электрических розеток, элементов освещения и оборудования. Такой план включает в себя перепланировку (в случае необходимости), расстановку мебели и сантехники. На базе техзадания, планов БТИ и обмерочного плана помещений создаются несколько вариантов планировочных решений, которые отличаются друг от друга и в совокупности позволяют заказчику оценить потенциал его квартиры или дома. Дизайнеры в работе над проектом учитывают как ваши пожелания, так и собственные знания эргономики, функционального зонирования помещений, требования СНИПов и творческую фантазию.Дизайнер предоставляет до 3 возможных вариантов планировки, на основе которых вы приходите к оптимальному варианту.Каждый такой концепт привязан не только к правилам и нормам, но и, конечно, к расположению коммуникаций и несущих стен, поэтому все предлагаемые идеи перепланировок, если таковые вообще возможны, впоследствии можно воплотить в жизнь, а также согласовать в соответствующих инстанциях. После рассмотрения планировочных решений на базе одного из них или из элементов сразу всех собирается итоговый план. Зачастую его разрабатывают в двух вариантах: первый – строго в соответствии с комментариями заказчика и второй – с дополнениями и видением от дизайнера. Работа над итоговой планировкой означает в первую очередь работу над деталями: окончательное проставление размеров, расстановка мебели, кухонного оборудования конкретных габаритов и так далее.Завершенный и согласованный итоговый план станет основополагающим при реализации всего проекта. Объемно-планировочное решение – это объемные изображения помещений, которые дают возможность наглядно продемонстрировать заказчику конкретное планировочное решение. То, что на плане выглядело как прямоугольники, круги и овалы, превращается здесь в комоды, столы, стулья, диваны и шкафы. Объемно-планировочное решение предоставляется в нескольких ракурсах в виде черно-белых эскизов. На данном этапе дизайн-проекта проработана архитектура, планировка, обозначена форма, объем, уровни потолков и полов, расположение мебели, декора и источники освещения. Одновременно работа над эскизами и их обсуждение с заказчиком позволяют ответить на возникающие вопросы и учесть все пожелания. Визуализация — это 3D-изображение дома, квартиры или офиса с учетом всех, даже самых мельчайших деталей интерьера. Она позволяет наглядно и полно увидеть интерьер с учетом всех аспектов дизайнерского проекта после завершения ремонтных и отделочных работ.При создании визуализаций учитываются все ранее обговоренные с заказчиком условия и параметры: цветовое и световое решения интерьера, расположение мебели и декоративных элементов, установка бытовой техники и кухонного оборудования, материалы отделки, способы укладки напольных покрытий и плитки, и так далее.Благодаря трехмерному изображению, можно увидеть максимально точные виды помещения, которые ничем не отличаются от реальной картины. Интерьер представлен достаточно детально и в различных ракурсах, за счет чего можно внимательно осмотреть помещение со всех сторон и углов. На этом плане показаны все перегородки, которые будут сноситься. Благодаря плану демонтажа строители получают полное представление о предстоящем фронте работ и количестве мусора, который впоследствии потребуется вывезти с объекта. Чертеж включает всю информацию о возводимых стенах – их расположение, материалы, привязка к внешним стенам помещений и друг к другу – а также данные о высоте дверных проемов и декоративных перегородок, вертикальные развертки с размерами для подиумов и создаваемых ниш. При необходимости в чертеж вносятся напоминания о замене оконных и дверных блоков, радиаторов отопления. Красным цветом выделяются примечания по специфике и решениям для конкретного объекта, на которые строителям необходимо обратить особое внимание. Данный чертеж дает представление о том, как будут выглядеть квартира или дом после перепланировки: высота, длина и ширина всех помещений, дверные и оконные блоки, наличие опусканий потолков. В соответствии с размерным планом подбирается подходящая по габаритам мебель и рассчитывается точное количество отделочных материалов. Это план этажа/дома/квартиры, с прилагаемой к нему таблицей, в которой указано назначение помещений и их площадь. Этот чертеж включает данные по расположению в квартире или доме всех дверных проемов, с указанием размеров для каждого из них, а также содержит уточнения и примечания, которые необходимы для оформления заказа и последующей правильной установки дверных блоков. Кроме того, на плане даются схемы открывания дверей и, при необходимости, приводится их устройство – например, для устанавливаемых откатных конструкций. Здесь же указывается рекомендация по модели двери, цвету фасада дверного полотна и используемой дверной фурнитуре. На выбранном плане после реконструкции помещения указываются: уровни пола в квартире или доме, в каких помещениях, какое напольное покрытие (ламинат, штучный или художественный паркет, паркетная доска, массивная доска, керамическая плитка, керамогранит, линолеум, ковровое покрытие; например: в коридоре - керамическая плитка, в спальне - паркет и т.п.), начало раскладки, направления укладки материалов, высота подиумов (если они есть), линии стыковок различных видов напольных покрытий (например: керамогранита и паркета). Одним из способов добиться что бы жилье было наиболее уютным, комфортным и теплым является установка теплого пола.План укладки теплых полов является важной частью проектирования помещения, так как от расположения нагревательных элементов в теплом полу зависит, насколько правильным будет температурный режим. Данный план поможет определиться потребуется ли утеплять помещение дополнительно или хватит теплого пола для его обогрева.План теплых полов разрабатывается на основе плана полов и зависит от выбранных отделочных материалов для пола.На плане теплых полов указываются места расположения и конфигурация полов с подогревом. С указанием их площади и размещения регуляторов. План потолков показывает какие конструкции будут построены на потолке и их размеры - световые карнизы, многоуровневые элементы, ниши для штор их конфигурация и т.п.На данном чертеже указаны уровни и основные материалы, из которых изготавливается потолок в квартире и площади монтажа.При разработке плана потолков учтена схема расположения осветительных приборов. План потолков тесно связан с планом освещения и разрабатывается параллельно. План электрики предусматривает размещение светильников и осветительных приборов, размещение выключателей, схемы подключения существующих устройств. В плане указывается тип выключателя, количество клавиш, привязку его к стене или проему. Номерами обозначаются выбранный осветительный прибор и соответствующий ему выключатель.План размещения электрооборудования позволяет точно определить количество и расположение розеток, а так же точек подключения ТВ, телефонов, места вывода кабелей под Интернет и т.п. Данный план тесно связан с планом расстановки мебели, так как розетки должны быть установлены в доступных местах и соответствовать набору техники используемой в квартире.На данном плане указываются все виды используемых розеток (влагозащищенные, с заземлением, для стиральной машины, для электроплиты, для телевизора, телефона, интернета или др.) и их привязки с размерами. Развертки стен помещений представляют собой фронтальную проекцию всех стен помещения, которые развернуты в одну линию. Представлена она в виде чертежа, на котором можно увидеть типы покрытий, отделки, размеры и расположение окон, дверей, мебели, всех декоративных элементов, таких как ниши, панно, бра, зеркала, выступы, т.е. все элементы примыкающие к стене. Развертка стен необходима при расчете количества выбранных отделочных материалов, что поможет составить смету на осуществление ремонтных работ.Развертки стен в интерьере – это точнейший план, благодаря которому облегчается процесс ремонтных работ и исключается возможность, что будут допущены какие-либо ошибки.Проектная документация выполняется в полной цветовой гамме, что позволяет сделать чертеж более информативным. Этот план необходим сантехникам, которые будут выполнять подводку всех коммуникаций водоснабжения и водоотведения как в ванных комнатах и санузлах, так и на кухне, в том числе и для соответствующих бытовых приборов. На данном чертеже указываются модели подобранного для проекта сантехнического оборудования, делается точная привязка его расположения по стенам, а также отмечается размещение прочих элементов – смесителей, полотенцесушителей, и тому подобного. Для упрощения монтажа и избавления от возможных погрешностей, ошибок и переделок, в план расстановки вносятся технические карты от производителя выбранной сантехники. После завершения всех обсуждений с заказчиком, внесения необходимых корректировок и окончательного утверждения представленных визуализаций, чертежей и разверток, дизайнер начинает подготовку проекта к сдаче и подсчет необходимых для его реализации отделочных материалов. В данной спецификации, выполненной в формате таблицы на нескольких листах, приводится название конкретного материала, дается его изображение, точное количество и указывается помещение, в котором будет использован данный материал. Необходимо учитывать, что все цифры вносятся в таблицу без запаса, так как количество последнего будут зависеть сугубо от пожеланий заказчика. romanova-design.ru Первым этапом выполнения дизайн-проекта интерьера являются- предпроектные предложения. От Заказчика дизайн-студия получает текущий план квартиры или фотографии текущего состояния объекта и пожелания дизайнеру на уровне идей. Наиболее эффективным, с точки зрения результата, является обсуждение прототипов отделки интерьера, которые можно отобрать из опубликованных в журналах интерьерных решений. Остальное – дело дизайнера. Предварительная идея будет оформлена в виде одного или двух эскизов. Это так называемое предпроектное предложение.Делается это для того, чтобы оценить насколько Заказчик и дизайнер понимают друг друга. После обсуждения предпроектного предложения, Заказчик выбирает вариант, который удовлетворяет его эстетические и функциональные требования. Вторым этапом начинается разработка дизайн-проекта. Здесь закладывается фундамент всего дальнейшего хода работ: разрабатывается и утверждается планировка и строительные чертежи, прорисовываются перспективы, составляется компьютерное моделирование будущего интерьера, еще до начало ремонта Вы сможете увидеть обстановку будущей квартиры (коттеджа), «походить» в виртуальном помещении и наглядно представить, как будут выглядеть те или иные детали интерьера, возможно ли сочетание тех или иных цветовых решений. Описание и состав дизайн-проекта интерьера. Обмерный чертеж – это план до реконструкции. Дизайнер выезжает на объект и делает замеры, по которым вычерчивает план с фактическими размерами. Необходимость этого чертежа обусловлена тем, что фактические размеры помещения отличаются от строительных планов, по которым возводилось здание. Предварительные эскизы (проектные предложения) - еще до начала ремонта или строительства Заказчик получает информацию о внешнем виде помещений. План после реконструкции – это план перепланировки, утвержденный Заказчиком. При работе над дизайн-проектом архитектор предлагает различные варианты перепланировок, обсуждает их с заказчиком, вносит необходимые изменения и корректировки, и в результате получается окончательный вариант «плана после реконструкции» на основе которого выполняются все последующие чертежи. План демонтажа – все сносимые стены и перегородки. План монтажа Все вновь возводимые стены и перегородки. План с расстановкой мебели На плане после реконструкции указываются места расположения мебели. Отдельно делается спецификация мебели. План пола с учетом напольного покрытия На плане после реконструкции показано в каких помещениях какое напольное покрытие (например: в кухне - керамическая плитка, в гостиной – массивная доска и т.п.), начало раскладки, высота подиумов (если они есть), линии стыковок различных видов напольных покрытий (например: керамогранита и паркета). План потолка. На этом плане показано: где используются подвесные или натяжные конструкции, их конфигурация, высота потолка. Обязательно даются разрезы потолка. План освещения На плане потолка указываются осветительные приборы с точными привязками и перечнем типов используемых светильников. Также указываются настенные светильники. План выключателей На плане освещения указывается какой выключатель что включает. Особенно важно для помещений с многоуровневым освещением. План установки электротехнических изделий и электроарматуры Это места расположения розеток, электровыводов и выключателей, с указанием высот и предназначения. (Например: на кухне электровывод для вытяжки, розетка для духового шкафа и т.п.) Виды и развертки внутренней поверхности стен На этих чертежах показываются декоративные перегородки, ниши, подсветки, расположение мебели вдоль стен, т.е. то, что невозможно увидеть на планах сверху. Разработка декоративных элементов интерьера- декоративные перегородки, барные стойки, авторская мебель. Ведомость отделки Это сводная таблица по объемам ремонтно-строительных работ по всему помещению. На основе ведомости отделки быстро и легко считается смета. Визуализация 3D изображение будущего интерьера. Делается по всем основным помещениям по желанию Заказчика. Дизайнер, исходя из общей концепции интерьера, предлагает Заказчику несколько вариантов отделки, мебели (подробный перечень подборов см. ниже). Работа ведется сначала по каталогам, потом архитектор выезжает с заказчиком в салоны, фирмы-поставщики. В спецификации указывается: модель, фирма-производитель, количество, цена, адрес и телефон фирмы-поставщика. Дополнительные услуги (выполняются смежными организациями) Электропроект – расчет потребляемой мощности, принципиальная схема электрощитка, трассировки розеточных групп, электроосвещения, слаботочных сетей. Проект вентиляции и кондиционирования – расчет объема кондиционируемых помещений, определение количества наружных и внутренних блоков сплит-систем Проект водоснабжения и канализации – аксонометрическая схема разводки канализации и водоснабжения. Аксонометрическая схема водоснабжения и канализации dom-cottag.ruВ чем состоит содержание проекта интерьера? Разработка дизайн проекта интерьера
Разработка дизайн проекта. С чего начать?
С чего начать?
Какие сроки?
Как выбрать профессионала?
Как сделать ДИЗАЙН ПРОЕКТ квартиры самому в 2017, разработка дизайн-проектов интерьера
Этапы разработки дизайн-интерьера квартиры:

План проекта квартиры

Эскиз дизайн проекта квартиры
Важно, чтобы уже на стадии проектирования, ты понимал общие дизайнерские приемы и стилистику будущего интерьера. Создание дизайна интерьера квартиры
Секрет успешного проектирования заключается именно в целостности, а этого можно добиться только при условии грамотного проекта в общем, а детали уже потом. Чертеж дизайна интерьера
Проект дизайна интерьера не был бы полным, если бы не сопутствующие ему чертежи, без которых макет бы был просто картинкой в журнале. 
Мебель и освещение
Разработка дизайн проекта интерьера | Ремонт квартир своими руками


Дизайн проект интерьера — как составить. Составление дизайн-проекта интерьера. Как самостоятельно сделать дизайн-проект интерьера квартиры и дома
Составление и утверждение чертежа

План-чертеж полов и потолка

Электрика: планы и схемы
Дополнительные элементы интерьера

Развертки стен

Смета

Компьютерная визуализация помещений

состав, цель и задачи решаемые при проектировании дизайна интерьера
Задачи, которые решаются при проектировании дизайна интерьера
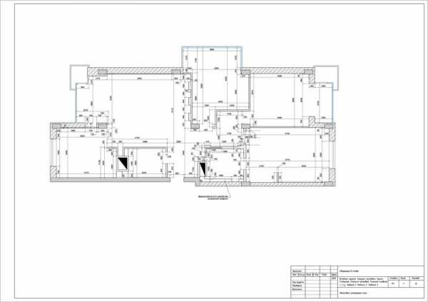
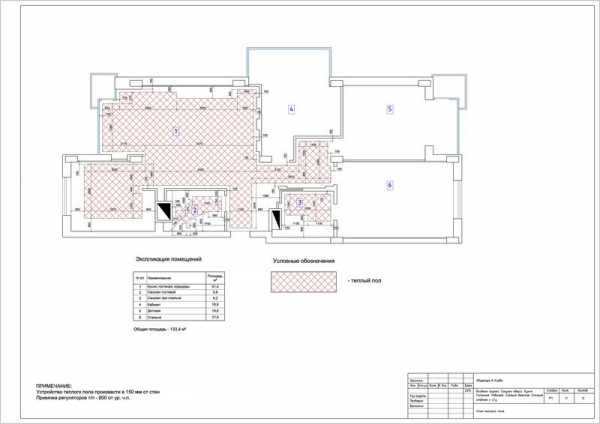
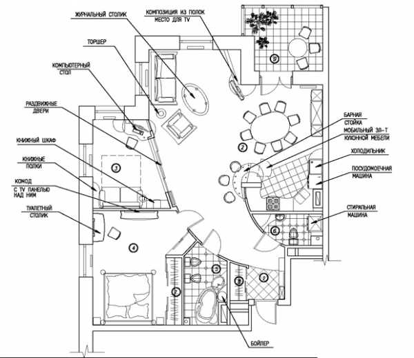
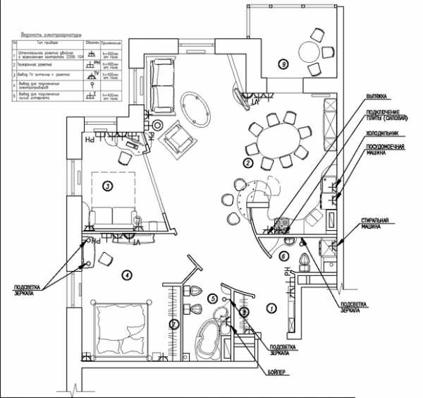
Что входит в состав дизайн-проекта?
Дизайн проект интерьера – состав проекта











В чем состоит содержание проекта интерьера?
В чем состоит содержание проекта интерьера?











