В современных условиях колодец не может обеспечить столь высокое качество воды, как скважина. Тем, кто готов в качестве возражения указать на традиционность колодцев и их успешную эксплуатацию на протяжении многих лет, стоить вспомнить, что много лет назад в почве не было токсичных веществ (даже если вы лично не используете на участке химикаты, они могут попасть в грунт во время дождя вместе с осадками или с потоком воды от соседей), а в воздухе отсутствовали выхлопные газы и пыль, содержащая тяжелые металлы. Водоснабжение частного дома своими руками из скважины предполагает добычу воды из водоносного слоя в грунте. Ее чистота обеспечивается прохождением через естественный почвенный фильтр. Таким образом, даже неглубокое бурение («на песок») дает намного более чистую воду. В колодце загрязнения из верхних слоев грунта могут попадать в воду через водопроницаемые стенки. Более глубокие артезианские источники воды максимально защищены слоем почвы от негативного воздействия окружающей среды в них вода самая чистая. Еще одно преимущество скважин – наружная защищенность. Открытого «зеркала», то есть поверхности воды, на которую может оседать пыль или мусор, в таких источниках нет, в то время как крышка колодца не может обеспечить герметичности, предохраняя воду только от попадания опавших листьев и другого крупного мусора. Кроме прочего, колодцы со временем заиливаются, а их чистка является довольно трудоемким занятием, в то время как прокачка технически оснащенной скважины легче и эффективнее. Условно скважины можно разделить на два типа в зависимости от их глубины и используемого водоносного слоя. Исходя из особенностей эксплуатации различных типов источников, можно сказать, что система водоснабжения частного дома из скважины «на песок» оптимальна для дачи и периодического проживания, а артезианский источник подходит для водообеспечения дома, в котором живут постоянно. Схема водоснабжения, проведенного в дом из скважины, включает в себя следующие узлы и элементы: Для того, чтобы получить бесперебойное и отвечающее требованиям водоснабжение частного дома из скважины, схема водопровода должна включать подходящий для определенных целей насос для воды. В продаже имеются комплексные насосные станции, уже укомплектованные гидроаккумуляторами и реле давления. На первый взгляд может показаться, что такое оборудование лучше использовать для оснащения скважины, чем комплектовать ее отдельными элементами. В то же время у насосной станции перекачивающий агрегат находится на поверхности, поэтому он не может поднимать жидкость с большой глубины. Важно: Насосная станция подойдет лишь для неглубоких скважин (порядка 10 метров). Артезианские скважины и даже менее глубокие источники «на песок» оснащаются специальными скважинными насосами – погружными моделями, рабочие параметры которых выбираются в соответствии с эксплуатационными характеристиками источника, объемом водопотребления в доме в пиковом режиме, а также особенностями, которыми обладают системы водоснабжения загородного дома из скважины в каждом конкретном случае (протяженность трубопровода, необходимость подъема воды на 2 или 3 этаж, в мансарду и пр.). Основными данными для расчета являются: Кроме напорной характеристики критерием оценки насоса при выборе является его производительность. При проведении водопровода в дом вам, скорее всего, может понадобится фильтр для обезжелезивания воды из скважины. О его разновидностях читайте на нашем сайте. Об особенностях насосов для полива и их выборе читайте тут. Про обсадные скважинные трубы из ПВХ вы можете узнать, прочитав этот материал http://okanalizacii.ru/vodosnabzhenie/skvazhina/truby-obsadnye-pvh-s-rezboj-dlya-skvazhin.html Эффективность и безотказность работы системы водопровода во многом зависят от того, насколько правильно будет смонтировано оборудование для водоснабжения в загородном доме из скважины. Первым и одним из наиболее важных этапов является установка насоса. Она выполняется в такой последовательности: Проверить работу перекачивающего агрегата можно спустя несколько минут после установки, после того, как он заполнится водой. Сборка автоматики производится по прилагаемой на фото схеме. Трубы для водопровода используются диаметром 32 мм из металлопластика, сшитого полиэтилена или ПНД. Устройство автономного водоснабжения в частном доме подразумевает, что подведение трубопровода к дому может осуществляться по подземной траншее или по поверхности земли, однако, в любом из этих случаев необходимо исключить вероятность его промерзания. В зависимости от глубины траншеи подземные коммуникации в некоторых случаях достаточно снабдить слоем теплоизоляционного материала и при необходимости защитить от коррозии. Для этих целей водопроводную трубу с теплозащитой часто укладывают внутрь канализационной или гофрированной трубы. Практичным решением станет одновременная прокладка по траншее питающего насосного кабеля. Важно: По возможности рекомендуется укладывать трубы ниже уровня промерзания грунта. При поверхностной прокладке коммуникаций теплоизоляционный слой дополняется греющим кабелем. Правильно выбранный тип скважины для дома и грамотное оснащение источника обеспечат непрерывное автономное водоснабжение с высоким качеством воды. okanalizacii.ru Как провести воду в дом из колодца или скважины Водоснабжение частного дома чаще всего делают из колодца и скважины. Для автоматической подачи применяют насосы. Их тип и производительность выбираются в зависимости от расхода воды и того, на какую высоту ее нужно поднимать. Систем частного водоснабжения существует два вида: Для бесперебойного водоснабжение частного дома со стабильным давлением и запасом воды можно поставить и накопительный бак, и гидроаккумулятор. Это — вариант для тех, кто ценит комфорт. Основа такой системы — емкость для воды, которая устанавливается на значительной высоте. Если есть место, резервуар ставят на чердаке, если нет — можно построить специальную вышку или установить ее на крыше соседнего сооружения. От емкости по дому расходятся трубы, разводящие воду по точкам потребления. Система водоснабжения частного дома с накопительным баком (из колодца или скважины — неважно) Работает эта система так: Система водоснабжения частного дома или дачи с накопительным резервуаром проста и недорога. Но есть целый ряд серьезных недостатков: Если на даче никакой техники не предвидеться, использовать можно и такую схему снабжения водой. Но в доме мало кого такой вариант устроит. Нужно будет рассмотреть следующий вариант. Эта система водоснабжение частного дома из колодца и скважины обеспечивает стабильное давление, потому можно подключать любую технику. В ее основе тоже лежит насос, но подает воду он в гидроаккумулятор, а управляется системой автоматики. Если все эти компоненты объединены в одно устройство — оно называется насосной станцией. Схема водоснабжения частного дома с гидроаккумулятором Гидроаккумулятор для водопровода — железный бак, разделенный эластичной мембраной (резиновой) на две части. В одной части закачан под определенным давлением газ, во вторую поступает вода. Заполняя бак вода, растягивает мембрану, сжимая газ еще больше, из-за чего в системе и создается давление. Принцип работы системы водоснабжения с гидроаккумулятором такой: Такая система автономного водоснабжения дает более высокий уровень комфорта. Но для ее организации требуется больше средств: насосная станция и гидроаккумулятор достаточно дорогие устройства. Кроме того, это оборудование более требовательно к качеству воды (минимум примесей) для чего должен стоять хороший фильтр. Есть требования и к трубопроводу (гладкие внутренние стенки) и к производительности насоса: вода должна подаваться постоянно, без перебоев. При использовании в качестве источника воды колодца, он должен иметь хороший дебет (вода должна поступать быстро), что не всегда возможно. Потому такие схемы чаще реализуются со скважинами. Про то, как собирать скважинный насос, смотрите . Любая из описанных схем водоснабжения частного дома реализуется при помощи насоса, подающего воду к дому. При этом должен быть сооружен трубопровод, соединяющий колодец или скважину с насосной станцией или накопительным баком. Существуют два варианта укладки труб — только для летнего использования или для всесезонного (зимнего). Участок горизонтальной трубы может находится или ниже глубины промерзания грунта или его нужно утеплять При устройстве летнего водопровода (для дачи) трубы можно укладывать поверху или в неглубокие канавы. При этом нужно не забыть в самой нижней точке сделать кран — сливать воду перед зимой, чтобы в мороз замерзшая вода не разорвала систему. Или сделать систему разборной — из труб, которые можно скатывать на резьбовых фитингах — а это — трубы ПНД. Тогда осенью все можно разобрать, скрутить и уложить на хранения. Весной все вернуть. Прокладка труб водоснабжения по участку для зимнего использования требует больших затрат времени, сил и денег. Даже в самые сильные морозы они не должны замерзать. И решений два: Глубоко закапывать водопроводные трубы имеет смысл, если он промерзает не более чем на 1,8 м. Копать придется еще на 20 см глубже, а потом на дно насыпать песок, в который укладывать трубы в защитной оболочке: они будут подвергаться солидной нагрузке, ведь сверху почти двухметровый слой грунта. Раньше в качестве защитной оболочки использовали асбестовые трубы. Сегодня есть еще пластиковый гофорорукав. Он дешевле и легче, проще укладывать в него трубы и придавать нужную форму. При укладке трубопровода ниже глубины промерзания приходится копать глубокую траншею длинной на всю трассу. Зато водоснабжение частного дома из колодца и скважины не будет замеразть зимой Хоть подобный метод требует больших затрат труда, его используют, потому что он надежен. Во всяком случае, участок водопровода между колодцем или скважиной и домом стараются уложить именно ниже глубины промерзания. Трубу выводят через стенку колодца ниже глубины промерзания грунта и в траншее ведут под дом, там поднимают выше. Самое проблемное место — выход из земли в дом, можно дополнительно подогревать электрическим греющим кабелем. Он работает в автоматическом режиме поддерживая заданную температуру нагрева — работает только в том случае, если температура ниже заданной. При использовании в качестве источника воды скважины и насосной станции, устанавливают кессон. Его закапывают ниже глубины промерзания грунта, в нем же ставят оборудование — насосную станцию. Обсадную трубу обрезают так, чтобы она была выше дна кессона, и трубопровод выводят через стенку кессона, тоже ниже глубины промерзания. Прокладка труб водоснабжения в частном доме из скважины при устройстве кессона Закопанный в земле водопровод сложно ремонтировать: придется окапывать. Потому постарайтесь заложить цельную трубу без стыков и сварных швов: именно они дают больше всего проблем. При неглубоком заложении земляных работ меньше, но в этом случае имеет смысл сделать полноценную трассу: траншею выложить кирпичом, тонкими бетонными плитами и т.п. На этапе строительства затраты значительные, но эксплуатация удобная, ремонт и модернизация — без проблем. В этом случае трубы водоснабжения частного дома из колодца и скважины поднимаются до уровня траншеи и там выводятся. Укладываются они в теплоизоляции, предотвращающей их замерзание. Для страховки их можно еще и греть — использовать греющие кабели. Один практический совет: если от погружного или скважинного насоса к дому идет кабель электропитания, его можно упрятать в защитную оболочку из ПВХ или др. материала, а потом прикрепить к трубе. Крепят через каждый метр куском скотча. Так вы будете уверены, что электрическая часть у вас в безопасности, кабель не перетрется и не порвется: при подвижках грунта нагрузка будет на трубе, а не на кабеле. При организации водоснабжение частного дома из колодца своими руками, обратите внимание на заделку места выхода водопроводной трубы из шахты. Именно отсюда чаще всего грязная верховодка попадает внутрь. Важно выход водопроводной трубы их шахты колодца хорошо загерметизировать Если отверстие в стенке шахты ненамного больше диаметра трубы, щель можно заделать герметиком. Если зазор большой, его замазывают раствором, а после высыхания промазывают гидроизолирующим составом (битумной пропиткой, например или составом на основе цемента). Промазать желательно и снаружи и изнутри. Источник воды и ввод его в дом — далеко не вся система водоснабжения. Нужны еще фильтры. Первая, грубая фильтрация происходит еще в точке всасывания. В таком виде ее можно использовать для технических целей, например, завести в туалет. Но даже для полива неочищенную воду можно подавать далеко не в каждом случае, а в душ или на кухню — тем более. Потому водоснабжение частного дома из колодца и скважины включает в себя еще и систему фильтров. План водоснабжения частного дома из колодца Обратите внимание: на рисунке есть три ступени фильтрации: На каждой из ступеней фильтр (или фильтры) подбирается в зависимости от воды. Ее качество определяется в лаборатории. На основании химического состава и подбирается оборудование для очистки. Всем хороши системы с насосными станциями, кроме того момента, что для их работы требуется электричество. Запас воды есть, но он равен объему гидроаккумулятора, а он не больше 100 литров. Такого количества надолго не хватит. Если вам нужен резервный запас хотя-бы на день или больше, лучше всего закачивать воду сначала в накопительный бак, а из него подавать на вход насосной станции. Такая же система хорошо работает и в случае, если ваш дом подключен к централизованному водопроводу, но в нем давление очень низкое или вода подается по часам. Как собрать автономное водоснабжение частного дома своими руками В представленной на фото схеме нет только аварийного перелива. Это трубопровод, выходящий из накопительного бака чуть выше максимального уровня воды. Он выводится в канализацию. По нему стекают излишки воды в случае неполадок с поплавковым механизмом. Если его не установить, можно залить дом. Если вам необходимо резервное водоснабжение частного дома на случай отключения электроэнергии, накопитель нужно устанавливать наверху, выше всех точек водоразбора. Тогда при отключении электрики вода будет в трубы подаваться самотеком. Душ вы принять не сможете, но в кранах она будет. Это будет бесперебойное водоснабжение частного дома в любых условиях. http://stroychik.ru legkoe-delo.ru В городских условиях наши квартиры подключены к централизованной системе подачи воды. Это очень удобно, мы привыкли к удобствам, которые дарит нам цивилизация. Хочется иметь возможность пользоваться преимуществом постоянно текущей воды из крана и в условиях дачи или частного загородного дома. И это можно организовать, устроив автономное водоснабжение, то есть только свое, обслуживающее индивидуальный дом. Автономное и предусматривает полную независимость, что делает его более выигрышным даже по сравнению с централизованным вариантом. Схема устройства системы водообеспечения частного дома. На фото показан вариант устройства автономной системы организации водопровода на даче от колодца. Автономное водоснабжение дачи или загородного дома можно организовать с помощью бурения скважины или строительства колодца. Важно. В любом случае, прежде, чем пользоваться водой и строить на базе источников систему водообеспечения, воду обязательно проверяют на пригодность к употреблению.Только в случае, когда у вас все данные анализов источников на руках, можно подобрать адекватный способ очистки воды при помощи системы фильтров. Водоснабжение, которое организовано на базе колодца,на деле получается менее затратное по финансам. В этом случае возникает больше возможности для осуществления постройки своими руками. Минус его состоит в том, что подходит оно только для дачи с сезонным проживанием. Водоснабжение коттеджа, частного дома со всеми удобствами и большой дачи требует обустройства скважины, чтобы подавать в систему качественную воду из более глубоких подземных водоносных слоев. Варианты забора воды из разных водоносных горизонтов. Скважину для обеспечения водой загородных домов бурят обычно до водоносной песчаной линзы, либо проходят до водоносных слоев, которые расположены в известняковых породах. Основными этапами при устройстве системы автономного водоснабжения загородного дома на основе добычи воды из скважины являются: Важно. По существующему законодательству каждая скважина обязательно должна иметь индивидуальный паспорт.Он выдается той организацией, которая осуществляла бурение.Учтите, что паспорт понадобится для предоставления в органы регистрации. Обустройство скважины в колодце, иначе называемом кессоном, позволяет в качестве утеплителя использовать естественные теплоизоляционные качества земли. Водоснабжение коттеджа или водоснабжение дачи из скважины предусматривает ряд работ, которые необходимо проводить в соответствии с проектом, который желательно заказать в специализированной организации. В системе должны быть предусмотрена система фильтров, должен быть устроен колодец для обслуживания оборудования по подъему воды. Водоснабжение из скважины на даче при нерегулярном ее использовании также возможно, но возникает вероятность быстрого заиливания. Во избежание этого, желательно периодически прокачивать скважину. Кроме того, желательно на зимний период проводить консервацию системы, то есть полный слив воды. Основные узлы и устройства для организации автономного снабжения водой индивидуального дома от скважины. Водоснабжение коттеджа от скважины происходит по следующей принципиальной схеме, которая включает в себя определенные узлы и устройства: Кессон в составе системы является камерой для обслуживания скважины. Фильтры необходимы для качественной очистки воды скважины, закачиваемой в систему.Гидропневмоаккумулирующий бак и реле к нему являются главным узлом по поддержанию нормального давления. Водоснабжение частного дома из скважины с гидроаккумулятором позволяет поддерживать в системе постоянное давление, компенсирует возможные гидроудары и поддерживает постоянный запас воды. Реле, как только давление достигнет определенных значений, выключает насос. Когда вы включаете кран, то давление уменьшается и реле включает насос. Глубина траншеи под прокладку водопроводной трубы должна быть не меньше глубины промерзания грунта в данном регионе. Налаживая водоснабжение на даче из скважины своими руками, следует помнить, что прокладку трубопровода к дому необходимо вести ниже уровня промерзания грунта. В местах подъема трубу необходимо утеплить теплоизолирующими материалами. Последнее время стали применять мелкозаглубленный трубопровод, прокладывая его вместе с греющим кабелем и изолируя все энергофлексом или подобным утеплителем. Но в случае перебоя с электроэнергией, вода в таком трубопроводе может замерзнуть. Так что ничего надежнее земли, как естественного утеплителя, пока нет. Центробежный погружной насос. Организовывая автономное водоснабжение частного дома из скважины, необходимо позаботиться о надежном механизме подъема воды. Сегодня в продаже можно найти разнообразные насосы от разных производителей. Как понять, какой из них подойдет для вашей системы? Для правильного выбора необходимо понимать принципы работы различных типов насосов и параметры водозабора, из которого ему предстоит качать воду. От того, насколько верен будет ваш выбор, зависит бесперебойное водоснабжение дома от скважины. При подборе насоса необходимо учитывать следующие параметры: Совет. Для того, чтобы рассчитать напор, к глубине вашей скважины прибавьте еще 30, а получившуюся сумму увеличьте на 10 %.Например, при глубине в 45 м. рассчитанная таким образом величина напора получится 83 м.Соответственно, что при выборе модели, желательно будет остановиться на варианте с напором 90 м. Перед тем, как покупать насос, необходимо также определиться с его типом. Все устройства для подъема воды делятся на два класса: Важно. Стоит учитывать, что поверхностные виды насосов могут перекачивать воду с глубины не более 8 метров, что ограничивает их применение в скважинах. Поверхностные насосы работают только на глубинах до 8 метров, они не предназначены для подъема воды из скважин. Погружные насосы разделяются по принципу своего устройства на следующие группы: Совет. При выборе насоса, обратите внимание на модели, у которых в конструкции предусмотрено наличие термовыключателя для защиты двигателя от перегрева. Вибрационный погружной насос. Важно. Не думайте, что чем больше мощность у насоса, тем скорее он вам подойдет.Избыточная мощность может привести к определенным неполадкам во всей системе.Выбирая насос, посоветуйтесь со специалистом и покупайте насос именно такой мощности, которая заложена в проекте. Правильно организованное водоснабжение из скважины в частном доме даст возможность вам ощутить все прелести жизни в комфортных условиях загородного дома. Имея постоянно холодную воду, вы сможете, установив необходимое оборудование, получить ее и в горячем виде. В представленном видео в этой статье вы найдете дополнительную информацию по данной теме. kolodec.guru Первые представляются наилучшим выбором в ситуации, когда объем потребления воды в среднем не превышает 1,5 кубометров в час. Обычно это потребности, характерные для небольшого дома. В то же время, если речь идет о загородном коттедже, используемом для проживания в течение всего года, то песчаная скважина не сможет удовлетворить все потребности в воде владельца. Чаще всего подобные скважины берут воду из водоносных слоев, расположенных на глубине не более 50 метров. Отсюда следует, что подаваемая из таких источников вода не будет отличаться кристальной чистотой. Конечно, транспортируемая из песчаной скважины вода по водопроводу будет содержать куда меньше примесей, нежели вода, добываемая из колодца. Однако при этом в ее составе все равно будут присутствовать инородные вещества и агрессивные соединения. Это происходит из-за того, что рядом с песчаным водоносным слоем проходят поверхностные воды. Также нужно учитывать такой момент, что подобная скважина способна обеспечить незначительный объем воды, который не превышает 500 литров. Вдобавок к этому эксплуатировать подобный источник можно не более 10 лет. Лучше всего сразу подумать об устройстве артезианской скважины. Подобный источник сооружают на глубине 100 метров и более. Среди достоинств, которыми обладает подобные источники, главным следует назвать возможность пользоваться водой высокого качества в любых количествах. Производительность подобной скважины держится на уровне до 10 кубометров в час. Подобного количества хватает на удовлетворение потребностей в воде большого участка с домом. К числу преимуществ следует отнести и долговечность подобных скважин: даже в условиях активной эксплуатации она может исправно выполнять свою задачу на протяжении как минимум 50 лет. Чем отличается песочная скважина, так это тем, что любой владелец может пробурить ее и оснастить всем необходимым своими силами. В этом плане артезианская скважина заметно отличается, поскольку построить ее могут только квалифицированные специалисты. Это в свою очередь определяет высокие затраты на бурение артезианского источника. Чтобы подобная скважина была сооружена по всем правилам, привлекать к ее устройству следует профессиональных бурильщиков. Эти специалисты проведут исследование состава пород, которые находится под участком, проанализируют водоносный горизонт и оснастят скважину так, как того требует технология бурения. Согласившись на профессиональный вариант устройства скважины, вы можете быть уверены в том, что в процессе эксплуатации вы не столкнетесь с какими-либо сложностями, которые повлияют на водоснабжение вашего дома. В процессе создания скважины своими руками для обеспечения водой частного дома необходимо учитывать глубину залегания источника, а также другие важные параметры. В большинстве случаев работы по подведению водопровода из скважины в дом проводят с применением труб, достигающих в диаметре 25-32 мм. Причем желательно использовать для этого конструкции из металлопластика. Дело в том, что этот материал отличается высокой гибкостью и мало подвержен коррозионным процессам. Даже если труба была размещена ниже уровня промерзания грунта, все равно риск ее перемерзания остается. В первую очередь это может случиться с теми участками трубы, которые располагаются в местах подъема системы. Для решения этой проблемы рекомендуется выполнить утепление фундамента частного дома, в чем могут помочь теплоизолирующие материалы, которыми следует обернуть трубу. Для большей защиты от заморозков нелишним будет разместить параллельно трубе саморегулирующий греющий кабель. В некоторых случаях определенные условия не позволяют выполнить земляные работы на участке своими руками. При таком варианте можно поступить иначе, проведя трубопровод поверху, после чего его можно немного заглубить в землю. При подобной схеме монтажа трубы размещают, дополняя ее саморегулирующимся греющим кабелем. В качестве утепляющего материала для трубы можно применять Энергофлекс или иные изоляторы. Чтобы используемые материалы успешно справлялись со своей функцией, устраиваемый пирог следует уложить в канализационную или специальную гофрированную трубу большего диаметра. Также необходимо к системе подключить накопительный резервуар, наличие которого обеспечит возможность для полива растений теплой водой, что положительным образом скажется на росте выращиваемых культур. Владелец загородного дома при решении проблемы водоснабжения может выбрать одну из следующих схем устройства системы. В конструкции водонакопительной емкости присутствуют следующие элементы: Задача последнего заключается в выборе необходимого давления воды в баке. Когда бак наполнен водой, насос бездействует. В те моменты, когда владелец начинает потреблять воду для своих нужд, подается сигнал на насос, который включается в работу и откачивает воду. Таким образом, при подобном варианте водоснабжения насос может непосредственно подавать воду в дом, работая в непрерывном режиме, или же бездействовать до того момента, пока в системе давление не упадет до установленного уровня. Тогда он начинает закачивать воду, пока гидропневматический бак снова не станет заполненным. Непосредственно для гидробака можно выбрать любое место дома, которое посчитает наиболее подходящим сам владелец. Обычно это устройство размещают в подсобном помещении. Между кессоном и местом, где труба будет вводиться в дом, необходимо вырыть траншею, а на дно уложить трубу водопровода вместе с электрическим кабелем, который обеспечит работу насосной установки. При наличии достаточных финансовых возможностей владелец может дополнить эту систему и нагревательным электрическим кабелем. Выполняя свою основную задачу, он вдобавок ко всему обеспечит защиту трубы водопровода от замерзания. Подобный вариант установки бака позволяет добиться эффекта водонапорной башни, в результате обеспечивается перепад высот между гидробаком и точками подключения, что позволяет поддерживать давление, когда один миллиметр водяного столба соответствует 0,1 атмосферы. В качестве материала для подобного резервуара может использоваться нержавеющая сталь или пищевой пластик. Что касается вместимости бака, то она может достигать 500-1500 литров. Желательно, чтобы емкость бака была максимальной: это положительно скажется на запасе воды. Тогда при возникновении перебоев в подаче электроэнергии вода будет естественным путем течь в кран. Нелишним в системе будет и концевой поплавковый выключатель. Благодаря этому приспособлению можно создать условия, при которых насосная установка сможет в автоматическом режиме включаться в ситуации, когда в баке будет падать уровень воды. Принимая решение о подборе подходящего варианта насоса, необходимо обращать внимание на такой параметр, как производительность скважины. Хотя мощность используемой установки будет сказываться лишь на времени, которое будет требоваться для наполнения водой накопительной емкости, все же принимать решение о покупке насосного оборудования желательно с учетом максимальной нормы потребления воды в доме. При погружении в скважину глубинного насоса и трубы водопровода за ними необходимо опустить электрокабель. Причем насосное оборудование фиксируют при помощи оцинкованного троса посредством лебедки, которая должна быть размещена внутри кессона. Чтобы обеспечить оптимальный уровень давления в системе и не допустить откачивания воды обратно в скважину, необходимо позаботиться об установке обратного клапана, для которого выбирается место выше насоса. Когда все составляющие системы окажутся на своем месте, все, что останется сделать владельцу – убедиться в правильности размещения внутренней разводки к точкам подключения и подвести от щитка управления к оборудованию питающий кабель. Без наличия системы водоснабжения в загородном частном доме, владельцу будет сложно обеспечить комфортные условия проживания. Поэтому в первую очередь необходимо задуматься о строительстве на участке скважины и решить вопрос с подачей из нее воды в дом. Очень важно правильно подойти к выбору схемы устройства системы водоснабжения дома, предусмотрев все критические ситуации, которые могут повлиять на эффективность ее работы. Учитывая всю сложность этих работ, лучше всего обратиться к квалифицированным специалистам, которые решат эту проблему, как того требует технология обустройства скважины. stoki.guru Закладка важных коммуникаций для домашнего обустройства должна быть правильно скорректирована и проведена. Несмотря на то, что водопровод в частном доме и его монтаж требует ответственности и тщательной подготовки, высока вероятность самостоятельной установки и подвода к строению. Перед началом работ потребуется предполагаемая схема водоснабжения частного дома и проект с важными заключениями о состоянии почвы и непосредственно конструкции, которая будет укомплектовываться трубопроводом. Системы водообеспечения в частном секторе должны выполняться по всем правилам, но прежде чем внедрить подобную конструкцию в планировку строения, следует определиться с вариантом подачи воды, обязательно чтобы все соединения имели подходящий диаметр. Большинство хозяев предпочитают сделать врезку трубопроводов в обустройство центрального водообеспечения своими руками. Такой вариант является упрощенным, так как не требует больших растрат на оборудование и материал, и не часто требуется ремонт. Обычно все приобретают, когда уже определен диаметр водопровода. Нужно заранее продумать будет только подача холодной воды или еще и горячей. Для первого случая обязательно учтите в проекте установку водонагревательной аппаратуры. Не обойтись и без недостатков в подобном монтаже: Выполнение водопровода своими руками Говоря об автономном варианте водоснабжения, хозяин может использовать личный источник, сделанный своими руками, а также выполнить его ремонт. В таком случае вы можете даже обзавестись колонкой. Потреблять воду можно из колодца или скважины. Если есть возможность установить колодец, придется определиться с местом его размещения, глубиной, уточнить диаметр бурения. Устройство колодца лучше выполнять на большую глубину. Также какие бывают виды водоснабжения можно узнать из видео в сети. Внимание! Обустраивая колодец, чтобы завести водопровод в частном доме, нужно учесть и элементы защиты, которые будут препятствовать проникновению мусора и почвенных пород в чистую воду, в противном случае вам понадобиться регулярная водоочистка. Прежде всего, вам необходимо определиться с оборудованием, которое понадобиться для того, чтобы сделать водопровод в частном доме. Не забывайте, что основное место в начальном этапе также должна занимать схема водопровода в частном доме, на которой все должно быть указано вплоть до электрических установок, размеров конструкции, а также диаметр каждой трубы. Даже в случае бесперебойного водоснабжения, вам нужно пользоваться гидроаккумулятором (емкость, предназначенная для хранения некоторого запаса воды), его целесообразно приобрести в специализированном магазине. Пригодятся системы водоочистки, которые крепятся к трубе, она осуществляет подачу воды от источника. Для организации работы водяного трубопровода нужны мощные насосы: часто используют погружные и поверхностные. Теперь разделяем работу своими руками на несколько основных этапов. Схема водоснабжения частного дома от скважины Внимание! Если ваша скважина располагается в подвальном помещении, значит обустройство кессона не потребуется, как следствие упрощается процесс монтажа трубопровода. Видео ролик к этому разделу подскажет, какая будет правильная разводка водопровода в частном доме. Внимание! Все соединения, встречающиеся на пути выполнения трубопровода от скважины до строения должны быть надежно закреплены и загерметизированы. Разводка труб водоснабжения после заведения в здание производится с отверстия в фундаменте. Для этого определяются возможные потребители, проводится трубопровод к нужным комнатам, основными из которых выделяют кухню и ванную, а оттуда выполняют ввод в каждое конкретное устройство. Кроме того, от скважины, вы можете оборудовать свой придомовой участок колонкой, которая подойдет для забора воды на улице, например, для полива. Как завести водопровод с улицы в дом Рассмотрим порядок работ по подключению водоснабжения непосредственно в доме: На данном этапе обустройства водоснабжения в доме считается законченным, для подробного изучения посмотрите видео ниже, и не забудьте проверить, как работает насосное устройство. Монтаж водопровода в частном доме идеально проводить наиболее подходящими материалами, для того чтобы это определить достаточно проанализировать состав грунта и его уровень промерзания. Во многих регионах нашей страны допустимо использовать металлопластиковые трубы, имеющие стандартный диаметр 32 мм, они экономичны и практически не требовательны к окружающей среде. Благодаря своей поверхности, на таких трубах не возникает ржавчины и накопления солей с минералами. Внутренняя часть трубки надежно защищает конструкцию от ультрафиолетового излучения и появления конденсата. Эта конструкция удобна для забора воды из колодца. Выбор труб для водопровода Применение медных трубопроводов характеризуется дороговизной, но это весьма надежный вариант, которому каждые 5-7 лет не требуется ремонт и обслуживание. Медная конструкция отличается хорошей теплоотдачей. Если практикуется коллекторная система, можно использовать комбинированные трубопроводы. Стальные трубы отлично себя зарекомендовали в изготовлении водопровода своими руками, кроме того главным их недостатком считается быстрое развитие коррозии и ржавчины с внутренней стороны. Поэтому нужно обязательно найти соответствие конструкции в зависимости от типа грунта и его особенностей. В интернете вы можете найти подробное видео о выборе вариантов трубопровода. Системы, которые обустроены для квартиры или частного дома, направленные на подачу воды в помещение, именуются как схема водообеспечения. Для дома и квартиры необходима коллекторная система, она предусматривает разводку ветвей труб, имеющих нужный диаметр к каждому сантехническому потребителю отдельно, при этом не завися от других подключений. Таким образом облегчается ремонт каждого узла. Обычно в квартире присутствует два вида водопровода холодный и горячий, а источником подобного водоснабжения называют коллектор. Для подобной жилой площади потребуется два устройства. Коллекторная система водоснабжения характерна несколькими достоинствами и недостатками: Внимание! Обязательно при обустройстве системы в квартире, необходимо придерживаться схемы. Ознакомиться с ней вы можете ниже. Схема коллекторного водоснабжения Вас могут заинтересовать: prokommunikacii.ruСхема водоснабжения частного дома с гидроаккумулятором: внутренний и наружный монтаж. Водоснабжение частного дома из скважины с гидроаккумулятором схема
схема системы, оборудование, монтаж своими руками
Схема водоснабжения частного дома из скважины позволяет обеспечить проживающих чистой водой, пригодной для приготовления пищи и питья. Глубина скважины и ее оснащение выбираются, исходя из индивидуальных условий, включая способ использования дома (в качестве дачи или для постоянного проживания), количество проживающих и объем водопотребления, который в самом оптимальном случае включает не только бытовые нужды, но и полив растений на участке. Если обстоятельства не позволяют установить на участке скважину для воды со столь высокой производительностью, можно использовать колодец для полива, а скважину для питья, купания, приготовления пищи.Преимущества скважинного водоснабжения
Виды скважин
Различные виды скважин — на песок и артезианская на известнякСистема водоснабжения и ее элементы
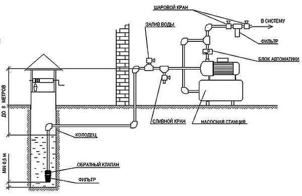
На фото представлены основные элементы системы водоснабжения дома от скважиныВыбор насоса
Глубинный насос для скважиныОсобенности монтажа
Схема монтажа системы водоснабжения из скважины с погружным насосомВодоснабжение частного дома из колодца и скважины, с накопительным баком, гидроаккумулятором, автономное, резервное, схемы
Система с накопительным баком

Схема с гидроаккумулятором и насосной станцией

Водоснабжение частного дома из колодца и скважины: прокладка труб

Глубокое заложение


Близко к поверхности
Герметизация входа в колодец

Из чего состоит

Автономное водоснабжение

видео-инструкция по монтажу своими руками, особенности устройства системы с гидроаккумулятором, коттеджа, дачи, фото

Выбор способа


Обустройство системы

Схема автономного водоснабжения
Прокладка водопровода

Выбор насоса



Резюме
виды скважин, оборудование своими руками
Чтобы создать наиболее комфортные условия проживания в загородном доме, необходимо обеспечить себя всеми необходимыми благами цивилизации, включая и водоснабжение. Необходимо помнить о том, что не всегда у владельца имеется возможность подключить свой дом к центральной магистрали водоснабжения. В этой связи он вынужден своими силами заниматься обустройством системы автономной водоподачи. И среди доступных сегодня вариантов чаще всего владельцы загородных домов прибегают к устройству скважины.Виды скважин: преимущества и недостатки
Чтобы решить проблему обеспечения загородного дом водой, можно рассмотреть два типа скважин:Оборудование для системы водоснабжения
Как протянуть водопровод до дома от скважины?
Выполняя работы по прокладке труб водопровода к частному дому своими руками, особое внимание необходимо обратить на то, чтобы он был заглублен ниже уровня промерзания грунта в регионе проживания. Чтобы соблюсти это условие, необходимо вырыть траншею требуемой глубины, после чего туда размещается труба на основе металлопластика или сшитого полиэтилена, имеющая диаметр 32 мм. Иногда допускается использовать трубы ПНД. Однако все же такое решение является наилучшим вариантом, поскольку воздействие на нее отрицательных температур может привести к разрушению.Варианты автономного водообеспечения
Первый способ. Автоматизированные насосные станции
Если на участке устроена скважина незначительной глубины и уровень воды в источнике является достаточным, то можно подключить насосную станцию или ручной насос. При выборе для водоснабжения частного дома схемы этого типа система автономной подачи воды будет работать следующим образом: погружной насос заставляет жидкость течь в гидропневматический бак, имеющий объем порядка 100-500 литров.Второй способ с установкой глубинного насоса
Если выбрана подобная схема водоснабжения, то в этом случае основная роль будет отводиться глубинной насосной установке, функция которой будет заключаться в откачивании воды из скважины в накопительный бак. Для размещения последнего отводится место на возвышенной точке дома.Заключение
Выполняем водопровод в частном доме: внутренний и наружный
Виды водоснабжения для частного дома. Плюсы и минусы

Как провести воду в дом из скважины? Инструкция по подробному монтажу

Ввод трубопровода в дом: как сделать внутренний монтаж своими руками?

Какой водопровод лучше выбрать?

Коллекторная схема водоснабжения в квартире
