Однокомнатная квартира – неважно, малогабаритная или же квартира-студия – такая же жилплощадь, и вполне естественно, что жильцы «однушки» хотят приходить в комфортный дом. Пусть говорят, что обустройство однокомнатки – дело нескольких часов, однако и тут придется поломать голову над дизайном и обстановкой плюс оборудовать жилище необходимыми предметами быта. Однокомнатная квартира сразу после ремонта А ведь еще хочется расставить свои безделушки и фотографии, красивые растения, книги, поставить в уголочке лоток для кота и аквариум для рыбок… Список можно продолжать до бесконечности. Как быть несчастным владельцам однокомнаток? «Бюджетный» вариант разграничения зон отдыха и столовой Тут нет ни перегородок, ни полноценных стен. Разделением пространства служат два варианта напольных покрытий и диван. Второй вариант разделения на зоны Любой дизайнер скажет, что «однушки» и минималистический стиль интерьера просто созданы друг для друга. Минимализм квартиры проявляется буквально во всем – и в мебели, и в цветовом решении, и даже в количестве интерьерных аксессуаров. Минимализм в малогабаритной однокомнатной квартире «Минимум мебели, максимум комфорта!» – под таким лозунгом можно подбирать обстановку для квартиры-малосемейки. В ней не будет ничего лишнего, все только самое необходимое: обеденный стол со стульями, диван-кровать для спальной зоны. Ну, еще может быть книжная полка или стеллаж. А вот телевизор современного дизайна вполне можно повесить и на стену – так сэкономится пространство под ним. Отделение кухни-столовой от гостиной с помощью мини-стойки и арочного проема из гипсокартона В этом случае акцент ставится именно на стойку с проемом: несмотря на одинаковое напольное покрытие, стойка с перегородкой из ГКЛ является одновременно и разделителем пространства, и соединителем двух разных функциональных зон в квартире. Кстати, кухню с барной стойкой также можно вынести на подиум – очень интересно смотрится! Устройство невысокой (до 1,2 м в высоту) перегородки из гипсокартона для четкого обозначения функциональных зон (небольшая перепланировка помещения) Несмотря на то, что отделка по всей квартире (комнате) одна и та же – светлые обои на стенах, светлое напольное покрытие, а мебель подобрана в тон отделке, налицо разграничение пространства: перегородка служит «отделителем» для гостиной, островок в виде обеденного стола и стульев принадлежит обеденной зоне, а кухонный гарнитур, размещенный вдоль стены, обозначает рабочую зону (место для приготовления пищи). Перегородка для разграничения зон «выросла», но для того, чтобы не перегружать пространство, на этом месте можно установить аквариум На самом деле решение с установкой аквариума – хороший выход для тех, кто не хочет останавливаться на минималистическом стиле , а разбавить его «живой природой». К тому же решение оставить перегородку, при этом используя стекло для поддержания «воздушности» пространства, создает иллюзию двух разных комнат. Перегородка для зоны спальни Как видно, невысокими перегородками можно отгородить не только кухню со столовой, но и свою кровать. Перегородка-стеллаж из ГКЛ Следующий вариант – разделение на спальную и рабочую зоны в квартире-малогабаритке. Несмотря на загромождение в виде стеллажа, создается ощущение легкости и «воздушности» интерьера – а все благодаря прорезям-окошкам в перегородке. Стеклянные перегородки в интерьере однокомнатной квартиры Еще одно блестящее решение – использование стекла. Для стиля хай-тек или модерн цельностеклянные перегородки окажутся как нельзя кстати. Раздвижные двери, металлическая фурнитура и отличная отделка, удачно гармонирующая с цветом мебели – вот такой может быть и объединение кухни со столовой с одновременным отделением зоны гостиной. Еще один вариант зонирования стеклянной перегородкой Объединение зала с кухней В этом случае объединяются две таких функциональных зоны, как столовая и гостиная, причем совмещение происходит практически идеально. А обои в качестве отделки зала, так же, как и отделка потолка, только подчеркивают выделение зоны отдыха. Зона отдыха и зона гостиной отделяются друг от друга с помощью книжной полки-стеллажа Кстати, стеллажные «островки» можно использовать и как передвижные (просто полки с выставленными на них полками), и как стационарные. Современные дизайны планировок малогабаритных квартир (в том числе и бывших «хрущевок») предлагают на выбор различные идеи зонирования маленьких площадей, например, такие: Отделение спальни от зала Стеллаж-островок передвижной Совет: если вы планируете дизайн однокомнатной квартиры, то мебель в нее лучше заказывать индивидуально, согласно размеров вашей комнаты. Стеллаж для книг Стеллаж-островок стационарный А вот тем, кто очень любит читать, можно посоветовать оформить книжную полку таким образом, что не «пострадает» ни лишнее пространство, ни стилевое решение. Главное, гармонично сочетать тип книжных полок с общим интерьером комнаты. Варианты устройства домашней «книжной библиотеки»: Книжная полка «дерево» «Книжная» лестница Место в квартире для книг – в кровати-трансформере Совет. Для того, чтобы интерьер с книгами или мебелью-трансформером не смотрелся скучно, можно использовать визуальное увеличение пространства с помощью зеркал и светильников. И чем больше светильников будет подключено, тем светлее станет квартира. Пожалуй, этот вид квартир следует считать самым лучшим, поскольку из него с легкостью можно «вылепить» все, что душе угодно. Квартиры-студии изначально не имеют межкомнатных перегородок и косметического ремонта, создающих определенные трудности при проектировании жилища, а потому и подбор отделки, и расстановка мебели находятся полностью в руках хозяина или специалиста-дизайнера. Иногда дизайнеры предлагают свои идеи из существующих в их портфолио фотогалерей, а выбрать тот или иной вариант – дело хозяйское. При этом стоит отметить, что возведение перегородок необязательно – достаточно грамотно расставить мебель и подобрать «правильные» оттенки для красивой отделки. Если квартира-студия совсем небольшая, а разделения помещения все равно хочется, можно рассмотреть несколько идей, объединяет которые один результат: совмещенные кухня и столовая, санузел, рабочий кабинет, место отдыха и гостиная (зал). Обустроить интерьер квартиры-студии не сложнее, чем обычной однокомнатной квартиры, но и тут следует учитывать некоторые нюансы. Мебель расставляется вдоль стен, в центре небольшой комнаты – свободное место Спальное место оборудуется на «втором» этаже, а под ним устраивается полноценное рабочее место 40м2: вместительная «малогабаритка» Такая квартира хороша для молодой семейной пары с одним ребенком. Дизайн ее предусматривает действительно все необходимое: раздвижной шкаф-купе, кровать-трансформер, зона столовой и зал. Вместо стандартных дверей тут можно использовать раздвижные или дверь-гармошку, а вместо огороженной зоны отдыха (спальни) – выделение места либо подиумом, либо балдахином. Кровать с «балдахином»: экономное дизайнерское решение планировки Кровать с раздвижными шторками. Материал «шторок» — поликарбонат, поэтому они легки в эксплуатации, а полупрозрачность материала придает интерьеру невесомость и в то же время – четкое представление о разграничении пространства. 15б. Кровать-подиум Другое решение зонирования проекта – кровать-подиум. Занимает минимум места, смотрится достаточно интересно, подходит для детских спальных мест. Если же позволяют «метры», то можно устроить у одной из стен нишу, обыграв ее в виде спальной зоны. Кровать в нише Ошибка №1. «Нагромождение» аксессуаров и цветовых сочетаний Самое первое правило стиля минимализм – не загромождать интерьер малогабаритной квартиры. Разумеется, это не значит, что в комнате вообще должно быть пусто – просто мебель должна иметь минимум дополняющих деталей. Ну, или «уметь» быстро трансформироваться в несколько движений. Ошибка №2. Разноуровневый потолок в квартире-студии Как известно, разноуровневые потолки отнимают 20-30 см полезного объема, а уж в квартирах со стандартными потолками так и вообще будут смотреться не очень уместно. Особенно, если пытаться «соорудить» такой потолок в центре комнаты и крепить к нему огромную люстру. Согласитесь, что это нагромождение оказывает давящее воздействие. Ошибка №3. Комнатные растения в оконных проемах И это тоже является распространенной ошибкой: разведение цветов – дело хорошее и благодарное, цветущие растения всегда будут радовать глаз хозяина жилища, но только не в однокомнатной квартире! Потому что горшки, выставленные на окна, загородят весь дневной свет. Ошибка №3а. Цветы на окнах И, разумеется, не стоит забывать про санузел. Как правило, санузлы в квартирах-студиях и однокомнатных квартирах совмещенные. Если же санузел раздельный, но вспомогательные помещения настолько малы, то непременно возникнет мысль об их объединении. И это неплохо: в объединенном помещении лучше всего поставить душевую кабинку вместо ванны. Соблюдая несложные правила планировки однокомнатных квартир и квартир-студий, грамотно подбирая мебель и отделку, сочетая различные цвета и оттенки, каждый сможет устроить в своей квартире настоящий райский уголок. Видео по теме: Facebook Twitter Мой мир Вконтакте Одноклассники Google+ Pinterest designkvartir-ok.ru Нынешние цены на жилплощадь не балуют доступностью, виду чего не все люди являются счастливыми хозяевами комфортабельных и роскошных апартаментов. Многим семьям всю жизнь приходится ютиться в крошечных квартирах, где каждый сантиметр ценится на вес золота. Поэтому владельцы малогабаритных жилищ часто недоумевают, как обставить однокомнатную квартиру. Фото помещений, интерьер для которых разрабатывали маэстро дизайнерского искусства, помогут создать обстановку, балующую красотой, комфортом, уютом и практичностью. Как же разместить необходимые предметы, и не перегрузить интерьер? Ведь хочется, чтобы было и просторно, и уютно, и красиво, и эргономично. Неужели это желание невозможно воплотить в реальность? Если следовать рекомендациям специалистов, однокомнатная квартира превратится в шикарные апартаменты! Таким образом, квартира порадует эргономичностью и эстетичностью с гармоничными нотками уюта и комфорта. Однокомнатная квартира площадью 29,7 кв. м очаровывает простором, уютом и невесомостью. Казалось бы, столь прекрасного результата удалось достичь благодаря сносу стен, что значительно освободило пространство, но и грамотная расстановка мебели сыграла не последнюю роль. Ведь, глядя на фото квартиры, становится понятно, что в помещении нет ничего лишнего. В кухне, ванной, гостиной, спальне расположены исключительно необходимые предметы, отличающиеся светлой гаммой, компактностью, практичностью, лаконичностью, но и в то же время грациозностью. Кроме того, предметы интерьера расставлены вдоль стен, что позволило освободить центральные участки в каждой зоне, а этот трюк увеличил желанное пространство. Также в квартире можно без каких-либо вложений сменить обстановку, благодаря трансформируемой мебели. Антон Зайцев, г. Санкт – Петербург. Однокомнатная квартира площадью всего лишь 20 кв. м балует теплом, домашним уютом и функциональностью. Несмотря на скромные размеры, удалось выделить кухню, спальню, гостиную и ряд дополнительных мест для хранения. Потрясающий результат подарили трансформируемая мебель и невидимые ниши. Например, обеденный стол прячется в щель под рабочей поверхностью (столешницей), стулья и кресла имеют складной механизм, а подиум скрывает современную бытовую технику. Кроме того, светлая гамма мебели прекрасно корректирует квартиру, сметая границы, а ее компактные размеры не перегружают интерьер. Ольга Ульянова, г. Москва. Бытует мнение: неоклассике не место в миниатюрных квартирах. На радость почитателям исторических стилей, дизайнеры доказывают обратное, что видно на фото. Квартира овита благородными и элегантными нотками, кроме того, дышит желанным простором, поскольку использованы предметы обстановки компактных размеров в светлой палитре с наличием множества мест для хранения. Также задействованы подоконники, которые исполняют роль дополнительных посадочных мест, где можно не только расслабиться с чашечкой ароматного чаю, но и поработать. Диана Валеева. Глядя на проект, просто не верится, что миниатюрная квартира вместила всю необходимую мебель, при этом выглядит воздушной. Предметы мебели расставлены у стен, что позволило освободить центральную часть комнаты, наполнив ее простором. Компактный диван, тумба под телевизором, стол на высоких ножках светлых тонов не загромождают пространство, кроме того, выглядят очень гармонично. Спальня представлена кроватью, под которой имеются дополнительные места для хранения. Если же захочется скрыть ее, достаточно опустить ширму. Внимания заслуживает кухня. Белый угловой гарнитур, миниатюрная барная стойка в паре со стульями на высоких ножках составляют отличную композицию. Студия MioDesign. Небольшое помещение после манипуляций дизайнера захватывает дух свежестью и изысканностью. Центральное место занимает спальня, которая представлена огромной кроватью. Позади зоны сна расположен белоснежный кухонный гарнитур. Такое размещение позволило увеличить объем жилища. Гостиная утопает в просторе, поскольку предметы интерьера поставлены у стен. Пастельная палитра, компактные размеры и оригинальная планировка сделали свое дело, подарив квартире невесомое убранство. Андрей и Алена Тимонины. Глядя на потрясающие фотоработы, в душу вселяется надежда и вера в то, что однокомнатная квартира это шаг навстречу бурным экспериментам. Все еще интересует вопрос, как обставить однокомнатную квартиру? Фото без слов докажут, что сделать это нетрудно! harthaus.ru Проблема в тесноте совершенно не зависит от количества метров, главное – умение организовать пространство. Выполняя дизайн небольшой однокомнатной квартиры, для того чтобы сделать более просторным ваше жилье, нужно соблюдать некоторые правила. Дизайн интерьера однокомнатной квартиры 40 фото идей смотрите далее. Когда вы самостоятельно создаете дизайн интерьера однокомнатной квартиры с нишей, необходимо предпочесть мягкие светлые краски, которые зрительно увеличивают пространство, а не «давят на голову». Это нужно обязательно учитывать, если вы выбирайте обои и думаете, каким цветом их покрасить. Яркие и огромные орнаменты или рисунки не подойдут для маленькой квартирки. Когда вы будете клеить обои, не забывайте об этом. Также совершенно не подойдут обои с контрастными или темными совмещениями цветов.Можно и потолки зрительно «приподнять», если вы выберите обои с вертикальным рисуночкам, а комнатное пространство могут увеличить обои с диагональным рисуночком. Однокомнатная квартира студия интерьер дизайн фото: Если все же вы решились на фотообои, то тогда учтите, что для того, чтобы целиком воспринимать рисунок на фотообоях, необходимо достаточное пространство.Стили дизайна в интерьере однокомнатной квартиры — с их помощью зрительно увеличить комнату можно, если вы будете в смежных помещениях использовать одни и те же материалы. В последнее время становится актуальной тема дизайн интерьера однокомнатной квартиры студия. Многие в таких ситуациях свое предпочтение отдают профессиональным работникам, а другие предпочитают этим заниматься сами. Однокомнатная квартира студия интерьер дизайн фото. Прежде чем заниматься ремонтом, у вас должно быть представление о том, каким вы хотите видеть свою будущую квартиру, это является самым главным. Если у вас нет таких предпочтений, то вам нужно обязательно обратиться к профессионалам, которые прислушаются полностью к вашим требованиям и постараются сделать дизайн интерьера однокомнатной квартиры с нишей, о которой вы мечтали. Так же очень сложной задачей является и выбор отделочных материалов, так как многие просто напросто в этом не разбираются. Так же стили дизайна в интерьере однокомнатной квартиры, проект квартиры может осуществляться в разных видах, например, это может быть такой дизайн, в котором будет всё подобрано до мелочей для вашего комфортного ощущения. Работа профессионала заключается в том, что он ваш интерьер сделает не только привлекательным и комфортном, но и вложится в ту сумму, которую вы ему поставите, и полностью подстроится под вас и ваши желания. Однокомнатная квартира студия интерьер дизайн фото: Также появился такой прием, как визуализация помещения в 3D графике. До начала работы вы увидите ваш ремонт от и до в специальных разработках. В случае, если вам не понравятся стили дизайна в интерьере однокомнатной квартиры, то вы сможете всё исправить. Всем удачных ремонтов. Для европейского интерьера характерны натуральные и теплые нейтральные оттенки. Из материалов также следует обратиться к матушке природе, хорошо подойдет дерево, камень, мрамор. Европейский дизайн интерьера однокомнатной квартиры всегда отличается одновременной изысканностью и теплотой, что делает его современным и классическим одновременно. Европейский стиль можно разделить на два цветовых сочетанияГреческий (белый, розовый, бирюзовый). Стены и пол обычно нейтральные и однотонные, а вот мебель можно сделать ярким акцентом. Также такой интерьер называют средиземноморским. Итальянский (теплые яркие оттенки с использованием желтого цвета). Италия теплая страна, в таком интерьере все должно быть пропитано солнцем. Разрешается использовать на стенах узоры, а мебель Дарлино лучше всего выбрать классическую. Особенно актуален такой интерьер для холодного климата, чтобы приходя домой, хотелось расслабиться и согреться. Однокомнатная квартира студия интерьер дизайн фото: Как известно, европейцы люди практичные, поэтому мебель следует выбирать простую и функциональную. Также важно избегать больших нагромождений мебели, а вот в аксессуарах можете себе не отказывать, различные вазочки, кашпо, цветы, и статуэтки придадут вашему интерьеру жизнь. При отделке пола рекомендуется использовать плитку или ламинат, также не возбраняются натуральные ковровые покрытия, главное использовать не более двух материалов, тогда дизайн интерьера однокомнатной квартиры с нишей будет смотреться визуально слаженно и целостно. Чтобы визуально расширить пространство хорошо поставить белые двери и одновременно с ними высокий светлый плинтус от 10 см. Такой плинтус поможет вам также защитить стены от грязи. В европейском стиле дизайна интерьера однокомнатной квартиры можно сделать не только спальню и гостиную. Но и кухню и санузел. Шикарно в таком стиле смотрятся квартиры студии, разделенные на зоны. Ведь именно от европейцев пошел такой тип жилья. Европейская молодежь жила в таких квартирах, так как они были недорогие и уютные. А сейчас многие платят большие деньги за перепланировку стандартной квартиры в студию. Вообще европейский интерьер характерен минимумом перегородок. Даже если у вас стандартная квартира, можно сделать плавные переходы интерьера из одной комнаты в другую, что сэкономит время и бюджет семьи. Однокомнатная квартира студия интерьер дизайн фото: www.mirlandshaft.ru Для многих людей злободневным вопросом является дизайн однокомнатной квартиры. На сегодняшний день однушки пользуются особой популярностью, поэтому не удивительно, что данная тема настолько актуальна. Каждый человек мечтает о своем собственном уютном уголке и, следуя известному принципу «лучше синица в руках, чем журавль в небе», многие останавливают свой выбор именно на небольшом жилье. Создать стильный и многофункциональный интерьер целой квартиры в рамках одной комнаты довольно сложно, но вполне реально. Метраж однокомнатных квартир, конечно, уступает преимуществам многокомнатных, однако, составив подробный план реализации дизайна и грамотно организовав пространство, из любого помещения можно сделать «конфетку». Думая о современном дизайне квартиры, следует помнить, что в одной комнате спят, встречают гостей, отдыхают, работают и читают. В общем, необходимо учесть множество факторов. Зачастую одна комната является одновременно спальней, гостиной, а иногда еще и кухней, поэтому она должна быть обустроена максимально функционально и разделена на зоны. Также важно учитывать количество проживающих человек при выборе дизайна однокомнатной квартиры. Начинать дизайн проект однокомнатной квартиры необходимо с создания четкого плана. Он должен учитывать все будущие функции квартиры, а основной его задачей станет визуальное расширение пространства. Чаще всего ремонт однокомнатной квартиры предполагает снесение перегородок между основным и дополнительным помещением, например, между гостиной и кухней. Также при планировке однокомнатной квартиры-студии люди задаются вопросом объединения ванной и санузла. Мода диктует свои правила, но не стоит забывать о личных удобствах, ведь бывают ситуации, когда одновременно одному из членов семьи захочется в туалет, а другому – в душ. Итак, собираясь делить квартиру на зоны, учитывайте следующее: Выше приведены примеры основных зон, создание которых подразумевает ремонт однушки. Особое оформление пола и потолка позволит создать четкое визуальное деление на зоны. Часто используют дополнительные конструкции различных форм или выделяют цветом. Сконструировав для кухни небольшой подиум, можно добиться необычного и стильного интерьера. Эргономично расставленная мебель позволит выделить зону кухни, примером будет использование барной стойки, как на фото. Говоря о спальной зоне, следует понимать, что современный дизайн однокомнатной квартиры предлагает множество вариантов и самые невероятные идеи интерьера. Кровать можно разместить в углублении стены, создав ощущение уединения, а также над рабочим местом. Да-да, появилось немало интересных конструкций, соединяющих в себе письменный стол с кроватью, пристроенной вторым ярусом. Зонирование не всегда подразумевает собой возведение перегородок. Они могут и вовсе отсутствовать, в свою очередь кровать, как элемент спальни, может гармонично смотреться, объединяясь с гостиной. Зону сна можно спрятать от посторонних глаз, если использовать выдвижную кровать (при этом экономится и драгоценное пространство). Бывает довольно трудно вписать детскую в общий колорит помещения, но это зачастую очень важно, ведь ребенку нужно иметь свой уголок, в котором он сможет чувствовать себя полноправным хозяином. Мебель в однокомнатной квартире должна быть функциональной. Нести в квартиру все, что плохо лежит, будет признаком дурного тона, только загромоздит обстановку и испортит весь дизайн интерьера. Не стоит приобретать громадные шкафы, а если работать за ноутбуком человеку привычнее на мягком диване, то для чего ему компьютерный стол? Особое внимание заслуживает не только вопрос, как обставить однокомнатную квартиру, но и какие цвета стоит использовать. Светлые и легкие оттенки любому помещению придадут свежесть, а небольшую комнату визуально расширят. Насыщенные и темные в свою очередь сожмут пространство, но это говорит не о том, что их использовать нельзя, а о том, что делать яркие акценты следует грамотно. К примеру, если основой дизайна являются стены темных оттенков, то их обязательно уравновешивают белыми предметами мебели. Освещение должно быть ярким и иметь много источников. Не следует ограничиваться одной лампой. Идеально подойдет освещение по периметру всей однокомнатной квартиры-студии. Растения не советуют ставить на подоконники, так как они забирают много естественного освещения. Уместно будет разместить цветы на хорошо освещенной части стены, используя полочки. Посмотреть примеры удачного дизайна однокомнатной квартиры на фото можно чуть ниже. Идеи ремонта могут быть самыми разнообразными, все упирается в фантазию человека и его финансовые возможности. Уютный уголок, сделанный в современном стиле, всегда будет радовать глаз, и дарить уют его владельцам. Подведя итоги, следует отметить, что основными задачами проекта однокомнатной квартиры является минимальное загромождение пространства и деление помещения на зоны, выполненные в одном стиле. Рекомендуем к просмотру еще 44 фото-идеи дизайна однокомнатной квартиры. doma.life На сегодняшний день немногие владельцы собственного жилья могут похвастаться просторными апартаментами. А те немногие счастливчики, которым повезло стать обладателями больших и просторных комнат, зачастую используют имеющуюся площадь нерационально. Ведь им кажется, что если места достаточно, то экономить его совершенно ни к чему. Однако, подобное утверждение ошибочно. Оно может превратить ваши шикарные и просторные апартаменты в комнату, загроможденную различными предметами интерьера. Владельцы же однокомнатных квартир, напротив, привыкли тщательно продумывать расположение мебели, чтобы рационально использовать каждый сантиметр пространства. Даже дизайн однокомнатной квартиры подбирается исходя из ее особенностей, чтобы скрыть имеющиеся недостатки планировки. Рассмотрим наиболее подходящие и популярные идеи для оформления дизайна небольшой квартиры. Далеко не каждый человек способен самостоятельно создать интерьер квартиры и особенно, если ее площадь достаточно мала. Ведь появляется ряд ограничений, которые обойти неискушенному владельцу жилплощади или неопытному дизайнеру крайне сложно. В самых запущенных случаях даже возникает острая необходимость в посторонней помощи. Поэтому хозяева обращаются за консультацией в профессиональные студии, занимающиеся созданием дизайна интерьера. К тому же стоит помнить о том, что если вы хотите получить качественный дизайн проект однокомнатной квартиры, вам не обойтись без совмещения множества функций в ограниченном пространстве. А составить подобный проект довольно проблематично. Несмотря на то, что квартира небольшая, все же в ней необходимо расположить зону отдыха, рабочую зону, детскую зону, а также место для приема пищи. И при этом расположить зоны так, чтобы в комнате осталось свободное пространство. Немудрено, что дизайнеры считают это довольно непростой задачей, для решения которой необходимо обладать опытом и соответствующими навыками. Однако, используя советы профессионалов, можно без особого труда сделать ремонт в маленькой квартирке, который будет восхищать гостей. Если вы являетесь обладателем скромной жилплощади, вам следует обратить внимание на фото дизайна однокомнатной квартиры, которое представлено ниже. На нем запечатлен известный стиль под названием минимализм. Именно с его помощью вы сможете создать элегантный и многофункциональный дизайн. При этом не стоит беспокоиться о том, что из мебели вам будет позволено оставить лишь диванчик и стол. Небольшое количество мебельного гарнитура полностью компенсируется его многофункциональностью. Выбирая мебель для своей квартиры, обращайте внимание на модели-трансформеры. Они не занимают много места и могут выполнять сразу несколько функций. К примеру, диван может быть оснащен маленькой столешницей, которая избавит вас от необходимости приобретать журнальный столик. Таким образом, у вас будет вся необходимая мебель, но при этом она не займет много свободного пространства. Используйте как можно больше зеркальных поверхностей, которые придадут интерьеру легкости. Особенно это касается дизайна однокомнатной квартиры студии, ведь зеркала добавляют больше элегантности, завершают общий интерьер. А так же с их помощью вы произведете зонирование. Но всегда помните о том, что малогабаритные помещения необходимо грамотно зонировать. Не используйте слишком много перегородок, ведь разграничить комнату можно и с помощью обычных отделочных материалов. К примеру, пол на кухне и в прихожей должен быть выполнен из разных отделочных материалов. Никогда не применяйте повсеместно темные и довольно яркие оттенки в небольшой квартире. Допустимо лишь сделать несколько ненавязчивых акцентов и не более. В современном дизайне однокомнатной квартиры очень хорошо будут смотреться потолок, окрашенный в темный оттенок, и стены, покрашенные в белый цвет. Если же подобное решение вам кажется слишком смелым, обратитесь к классическому варианту. Он предполагает окрашивание пола в контрастный цвет, а потолок и стены оформляются в более спокойных тонах. Чаще всего используют пастельные тона, которые подчеркивают мягкость и невесомость дизайна. Хрущевки в большинстве случаев оборудованы небольшой кладовкой, которую многие используют для хранения разных ненужных вещей. Однако, поскольку дизайн однокомнатной квартиры 40 кв.м. предполагает рациональное использование всего пространства, ее следует переделать в шкаф-купе. Таким образом, вы избавите себя от необходимости приобретать громоздкий шкаф в комнату. Наверняка вы, изучив эти советы, поймете, что даже небольшое помещение можно сделать современным и многофункциональным. И при этом вам не нужно будет отказываться от тумбочек, столиков и других мелких предметов интерьера. Необходимо лишь правильно подобрать модели-трансформеры.Готовимся к ремонту однокомнатной квартиры: оригинальные идеи перепланировки и оформления. Обстановка однокомнатной квартиры фото
Дизайн однокомнатной квартиры - фото интерьера. Идеи для планировки

Какие проблемы могут возникнуть при подборе дизайна интерьера однокомнатной квартиры?


Стилевые решения

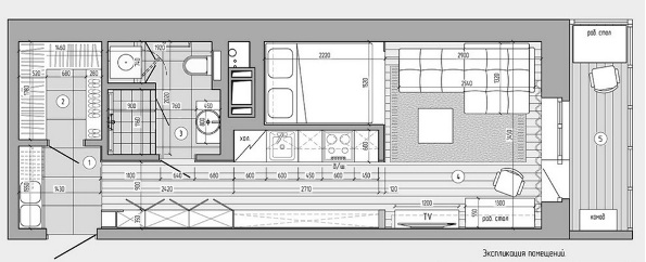
Варианты дизайна однокомнатных квартир (с фото-пояснениями)
Вариант 1. Выделение зон с помощью «барных» стоек

Вариант 2. Установка перегородки






Вариант 3. Выделение зон с помощью отделки

Вариант 4. Отделение зон друг от друга с помощью стеллажей-островков








Обустройство интерьера квартиры-студии


Дизайн квартиры площадью 40 кв м





Самые распространенные ошибки при подборе дизайна для однокомнатных квартир






Сообщество Вконтакте
Tell us how can we improve this post?
Как обставить однокомнатную квартиру фото
Рекомендации талантливых дизайнеров
Фото-проекты для вдохновения
Фото - проект №1. Однокомнатная квартира с интригующей обстановкой








Фото - проект №2. Однокомнатная квартира с секретами






Фото - проект №3. Комфортабельная и фешенебельная однокомнатная квартира







Фото - проект №4. Жизнерадостная однокомнатная квартира









Фото - проект №5. Невесомая однокомнатная квартира






Загрузка...Дизайн интерьера однокомнатной квартиры 40 фото идей




Смотрите видео: Стили дизайна в интерьере однокомнатной квартиры




Дизайн интерьера однокомнатной квартиры с нишей






Европейский стиль дизайна интерьера однокомнатной квартиры






Смотрите видео: Однокомнатная квартира студия интерьер



















фото идеи интерьера и ремонта однушки

Интерьер однокомнатной квартиры

Семь раз отмерь – один раз отрежь






Использование цвета и систем освещения


Фотогалерея
Дизайн однокомнатной квартиры - 95 фото оригинального оформления




Как оформить интерьер?






Советы дизайнеров













Фото дизайна однокомнатной квартиры





































Также посмотрите здесь, статьи по теме:
alldesigngroup.ru
Владельцы однокомнатных квартир в большинстве случаев испытывают нехватку пространства. Но если к ремонту однокомнатной квартиры подойти творчески, то можно создать уютный и модный интерьер. Правильно подобранные цвета и фактуры позволят визуально расширить помещение, сделать квартиру более просторной.Кроме того, ремонт однокомнатной квартиры обойдется намного дешевле, чем обустройство больших апартаментов. Интерьер многих однокомнатных квартир смотрится даже лучше, чем дизайн просторного жилья. Так, что проживание в однокомнатной квартире имеет свои плюсы.
Существует множество дизайнерских идей и приемов, позволяющих при ремонте однокомнатной квартиры сделать обстановку не только оригинальной, но и удобной.
В принципе, разработка дизайн-проекта однокомнатной квартиры идентична оформлению жилья, в котором несколько комнат. Определяется, какой будет отделка стен, потолка и пола, подбирается меблировка.
Следует уделить внимание таким моментам, как освещение и аксессуары. Но основная цель заключается в зрительном расширении комнаты, небольшую площадь помещения нужно использовать рационально.
Главное требование к оформлению интерьера однокомнатных квартир заключается в легкости и функциональности обстановки.
Идеи для ремонта однокомнатной квартиры, фотоОдин из самых распространённых вариантов расширения жилого пространства в квартире, имеющей только одну комнату, – объединение гостиной и кухни. Перегородки сносятся, и получается студийная планировка.
Хороший прием, позволяющий увеличить пространство, – деление комнаты на функциональные зоны.
Обеденную зону можно выделить, установив в комнате барную стойку. Барная стойка, которую можно использовать в качестве стола – это отличное решение для молодой пары. Если в гости придут несколько человек, они вполне смогут разместиться за стойкой.
Еще одно хорошее решение – потолки и полы, расположенные на разном уровне: они позволяют сделать условное зонирование.
Стал популярен и еще один способ увеличения жилой площади – присоединение лоджии. Чтобы это сделать, убирают часть стены и, конечно же, это возможно только при условии теплого балкона. За счет этого комната станет немного больше.
Чтобы придать интерьеру функциональности, необязательно сносить стены. Можно выделить зоны для отдыха и работы и другим способом. Зону для сна выделяют при помощи тканевых драпировок или легких перегородок с витражными вставками.
Идеи для однокомнатной квартиры, фотоИнтересный дизайнерский прием зонирования – установка перегородок, которые напоминают жалюзи; такие перегородки хорошо пропускают свет.
Зрительно расширить комнату поможет следующий прием: для отделки поверхностей стен и потолка выбирают одинаковое покрытие, за счет этого переход между ними становится незаметен.
Поделить комнату на зоны помогут предметы мебели. Поставьте кровать в одной части помещения (спальное место можно оборудовать в нише), а рабочий стол в другой.
Деление комнаты на функциональные зоны выполняется и при помощи освещения. В зоне для отдыха, свет сделайте приглушенным, а в рабочей установите яркие лампы.
С целью зонирования используют напольное покрытие разных видов. Часто сочетают ламинат и ковролин.
Зонирование дает возможность создать гармоничное пространство, комната делится на части пропорционально.
Объединению пространства способствуют и широкие дверные проемы.

Выбору мебели для однокомнатной квартиры следует уделить особое внимание. Предпочтение рекомендуется отдавать предметам мебели, обладающим способностью к трансформации. Такая мебель многофункциональна и практична.
Купите в квартиру диван, который удобно складывать. Раскладная кровать – это идеальное спальное место, в дневное время ее можно убирать на хранение в шкаф. Компактная мебель — то, что нужно для однокомнатной квартиры.
Массивной мебели стоит избегать. Учтите, что в обстановке используется только сама необходимая мебель, не загромождайте квартиру лишними предметами.
Обстановку необходимо продумать досконально, чтобы осталось максимум свободного пространства.
Эргономично использовать пространство позволят встроенные шкафы, занимающие минимум места. Встроенный в стену шкаф можно установить и в комнате, и в прихожей.
Современную жизнь сложно представить без техники, поэтому если Вы пользуетесь обычным компьютером, а не ноутбуком, выбирайте небольшой компьютерный стол: его лучше разместить возле окна, чтобы было естественное освещение.
Большой плазменный телевизор, размещенный в нише, оборудованной в стене, прекрасно подходит для футуристического декора.

Что касается цветового оформления, то лучше выбирать светлые оттенки, обладающие свойством визуально расширять пространство.
В светлых тонах отделывают стены, декорируют потолок. Это касается и предметов мебели – подойдет меблировка со светлыми поверхностями.
Модный вариант декорирования стен в однокомнатных квартирах – грифельная краска. На таком покрытии можно рисовать, а еще это прекрасная возможность для творческого самовыражения.

Источником света послужит небольшая люстра или светильник с оригинальным дизайном. Можно сделать подсветку потолка.
Дополнительным источником света могут служить вставки, испускающие свечение, сделанные в углах по всему периметру комнаты. Они зрительно расширят помещение и создадут удивительный эффект – словно яркие лучи пробиваются в закрытую комнату извне.
Чтобы комната казалась просторнее, используйте большое количество зеркал (например, зеркальный шкаф-купе). Поверхности из стекла также приветствуются.
В интерьере маленькой квартиры декоративные элементы должны гармонично сочетаться между собой. Создать естественную воздушную атмосферу в однокомнатной квартире можно за счет использования в отделке материалов природного происхождения.
Деревянная мебель и стены, облицованные камнем, смотрятся очень эстетично. Благодаря деревянным фактурам пространство кажется уютнее.
В обеденной зоне эффектно смотрятся глянцевые поверхности. Бытовую технику желательно располагать скрыто.
Шторы лучше выбирать светлые из тонких струящихся тканей или декорировать оконные проемы при помощи жалюзи.

Мы представили свои идеи для ремонта однокомнатной квартиры. Согласитесь, сделать ремонт в однокомнатной квартире и создать интерьер, в котором будет комфортно жить, не так уж сложно.
Не забывайте об основных правилах декорирования жилья, в котором всего одна комната и у Вас получится сделать красивый декор с удобной обстановкой. Создайте в своей однокомнатной квартире современный стильный дизайн, а идеи, реализованные на фото ниже, помогут вам в этом.
prostilno.ru

Однокомнатная квартира – это небольшое жилое пространство, которое должно быть наделено всеми необходимыми удобствами, для уютного и комфортного проживания. В ней надо правильно и грамотно разместить всю необходимую мебель и бытовую технику. Иногда такая задача может показаться неразрешимой. На самом деле малогабаритное жильё вполне можно сделать полноценным жилым пространством, в котором создан комфортный для проживания интерьер, имеющий необходимую функциональность.

При правильной организации всего интерьера квартиры, включая мебель и планировку, количество квадратных метров не повлияет на функциональность пространства и позволит создать комфортабельное жилье.Фото показывает правильно организованный дизайн однокомнатной квартиры, имеющей 30 кв. метров:

Создать грамотный дизайн малогабаритной квартиры это ответственное и достаточно сложное занятие, к которому надо отнестись серьёзно, продумывая каждую мелочь. Начинать обустройство однокомнатной квартиры надо с составления перечня всех необходимых предметов мебели и техники, которые должны быть в наличии. Такой список будет иметь отличия в зависимости от того, на какое количество домочадцев рассчитано помещение. Ведь для проживания студента или одинокого человека нужны совсем иные условия, чем для семьи, состоящей из двух, а тем более из трёх человек.На фото удачный дизайн однокомнатной квартиры для одинокого человека:

Дизайн однокомнатной квартиры для семейной пары представлен на фото:

Не стоит вносить в список второстепенные, не основные предметы обихода, такие как журнальный столик или полки. Ими можно будет дополнить интерьер впоследствии, когда станет понятно, сколько свободного места и в каких местах квартиры осталось не занятым.
Основным способом расширения жилища является удаление внутриквартирных перегородок и дверей, которые значительно уменьшают физические размеры квартиры и зрительно утяжеляют пространство. Для реализации этого необходимо произвести грамотную и рациональную перепланировку квартиры.Двери, разделяющие комнаты следует убрать, оставляя только те применение, которых необходимо, например, для санузла. Хорошо если они будут изготовлены из светлых материалов или с применением большого количества матового стекла. Благодаря такому приёму можно визуально облегчить пространство.

На плане квартиры следует рассмотреть, какие из стен можно убрать, объединяя различные комнаты в единое целое. Нельзя затрагивать несущие конструкции стен, нарушение которых недопустимо.Создавая проект дизайна обновленной однокомнатной квартиры надо рассмотреть варианты объединения различных зон. Обычно совмещают кухню с комнатой, путем удаления стены между ними. Такое объединение создает некоторые неудобства. Запахи кухни будут распространяться на всю квартиру, но этот негативный аспект отойдет на второй план по сравнению с преимуществом освободившегося пространства.

Вторым объединением можно сделать совместный санузел, совмещая в одном помещении ванну и туалет. Благодаря таким изменениям можно освободить дополнительную площадь для прихожей или любого другого примыкающего помещения. Если оставить размеры совмещенного санузла такими, как и в исходном варианте, то в большем по размерам помещении, можно расположить дополнительную бытовую технику или мебель, которые ранее не помещались. Это может быть стиральная машинка или специальный шкаф, для хранения пылесоса и бытовых принадлежностей, на которые всегда не хватает места.

Создавая новый дизайн маленькой однокомнатной квартиры эффективно увеличить её размеры, можно присоединяя балкон к общему пространству. Для этого его надо хорошо утеплить, и расширив балконный проём, соединить с квартирой или создать отдельную комнату. В этой зоне можно организовать кабинет или комнату для отдыха.


На обычном балконе можно обустроить удобную кладовку, которая послужит вместилищем для огромного количества всяческих мелочей. Для этого предстоит сконструировать специальные шкафы или стеллажи, с максимальной вместимостью.


Создавая дизайн однокомнатной квартиры 35 кв. м, следует учитывать, что в этом маленьком пространстве должны быть совмещены все необходимые, для полноценного проживания, функции. А для этого помещение должно иметь различные зоны: рабочую, для приёма и приготовления пищи, место для отдыха и при необходимости, детский уголок. После демонтажа стен и перегородок образуется единая общая комната, которую для удобства, надо разделить на отдельные зоны.Для зонирования однокомнатной квартиры используются различные способы. Можно разделить квартиру на зоны, используя на отдельных участках, различные по цвету и фактуре покрытия для пола или с помощью установления разноуровневых потолка и пола, в прилегающих зонах.

Очень удобно отделить рабочую зону кухни от зала установкой барной стойки, обеденного стола или дивана. В некоторых случаях уместно организация стационарной или передвижной перегородки. Все эти приемы разделят квартиру на две зоны, каждая из которых выполняет свои функции, а визуально помещение будет выглядеть просторно и уютно.

Для выделения зоны отдыха лучше использовать перегородку или ширму. В их качестве можно применять плетённые, витражные или тканевые перегородки, скрывающие зону сна от посторонних глаз. Установка раздвижных перегородок из тонированного стекла или с зеркальной поверхностью эффектно выделит отделение для спальни. Такая перегородка создает ощущение простора, а в раздвинутом виде открывает доступ к спальному месту. На фото дизайн однокомнатной квартиры 36 кв. м с выделенным для спальни местом, с использованием раздвижного ограждения, имеющего зеркальную поверхность:

Более бюджетный вариант, для выделения зоны сна, создание ширмы из ткани, такая перегородка будет носить чисто символический характер, но в дневное время эффективно скроет спальное место от посторонних.В современных квартирах с улучшенной планировкой, имеющих большую площадь, легче создать комфортную обстановку. В них больше возможностей для применения своей фантазии и больше места для конструирования различных зон. Дизайн однокомнатной квартиры 45 кв. м фото с выделенными зонами:

В дизайне однокомнатных хрущевок надо использовать с максимальной отдачей каждый квадратный метр всего помещения в целом, а также площадь вспомогательных встроенных кладовок. Их можно самостоятельно переделать в удобную и вместительную гардеробную.

Для создания дизайна однокомнатной квартиры лучше подойдет стиль минимализм или хай-тек. Им свойственна простота и лаконичность форм, которая наилучшим образом позволит разместить все необходимое, в небольшом пространстве маленького помещения.

Особенно это касается мебели, имеющей строгие и правильные линии. Мебель классического стиля имеет громоздкие формы, поэтому её установка, в малогабаритной квартире, может отрицательно повлиять на функциональность помещения.Мебель для кухни лучше изготовить на заказ, это даст возможность занять шкафами все свободное пространство, оставляя при этом достаточно свободного места для передвижения. Для размещения всей кухонной утвари, в небольшом по размеру помещении, надо грамотно задействовать как можно больше поверхностей. Для маленькой кухни уместно использование поверхности подоконника, как дополнительного столика. Удобно если навесные шкафчики будут иметь высоту до самого потолка, это увеличит их вместительность и не украдет свободного места.

В малогабаритных квартирах удобно применение многофункциональной мебели, способной трансформироваться. Это может быть диван со встроенной столешницей, которая при необходимости выдвигается или стол способный трансформироваться в кровать. Использование кровати, которая благодаря специальной конструкции днем превращается в шкаф и освобождает в дневное время много свободного места.

Можно выбрать диван с вместительной нищей, удобной для хранения постельного белья или нечасто используемых предметов обихода. Вместо громоздких кресел удобно использовать пуфы, имеющие вместительные ящики внутри или кресло – кровати, которые при необходимости преобразуются в дополнительное спальное место. Лучше выбирать многофункциональную мебель, с выдвижными ящиками внутри и раздвижными дверями, которые при открывании не мешают остальной мебели.Если в квартире будет проживать семья с ребенком, то без применения многоярусной модульной мебели не обойтись. Ребенок должен иметь свое отдельное место для отдыха, игры и работы, поэтому в маленьком помещении трансформирующаяся мебель станет незаменима.В высоких помещениях уместно применение второго яруса, который сооружают во время перепланировки или при приобретении специфической мебели. На фото пример дизайна однокомнатной квартиры 33 кв. м, с конструкцией кровати на втором ярусе:

Использование для дверей и фасадов шкафов тонированного стекла или зеркального покрытия способно значительно расширить пространство и облегчить весь интерьер маленькой однокомнатной квартиры. Желательно чтобы в зеркальной поверхности не отражалась рабочая зона, лучше, если будет видно отражение окна или зоны отдыха.
Для создания легкой и лаконичной атмосферы, в интерьере однокомнатной квартиры, наиглавнейшую роль играет освещение и цветовая палитра всего интерьера. Света в маленьком помещении должно быть много, но разделённую на зоны комнату в различных частях надо освещать по-разному. Место отдыха должно иметь спокойное, возможно локальное освещение. Для рабочей зоны и кухни света должно быть много, поэтому и светильников лучше использовать побольше. В рабочей зоне комнаты уместна большая ярко светящая люстра, а для кухни возможно применение точечных светильников, дающих интенсивное освещение.

Цветовая палитра, применяемая для однокомнатной квартиры, это светлые и теплые оттенки. Если в комнате много естественного дневного освещения, то возможно использование красок холодных тонов, но обязательно в светлой палитре.

Допустимо использование темных и ярких цветов для создания акцентов, выделяющих отдельные части интерьера или мебели. Использование большого количества темных оттенков визуально уменьшит жилое пространство и создаст угнетающую атмосферу.Зрительно расширить помещение позволит использование для отделки панорамных фотообоев, которые наполняют комнату ощущением свободного пространства и в зависимости от изображения, погружают в особую атмосферу.

Создание грамотного и удобного интерьера однокомнатной квартиры может оказаться непростым делом, но, придерживаясь основных постулатов и опираясь на собственный вкус, можно создать уютное и комфортное, для всех домочадцев, жилище.
Присоединяйтесь к обсуждению!
Нам было бы интересно узнать вашу точку зрения, оставьте свое мнение в комментариях 😼koffkindom.ru