Видов печного оборудования довольно много: одни предпочитают кирпичную каменку, сложенную профессиональным мастером, а другим по душе сконструированная собственными руками металлическая печь. Последний вариант является экономичным, так как может быть выполнен из подручных материалов самостоятельно. Можно выделить следующие положительные моменты, которыми наделена металлическая печь для бани: Несмотря на наличие положительных сторон, металлическая печь для бани имеет и свои минусы: Многим покажется такой параметр несущественным. На самом деле конфигурация влияет на производительность оборудования и удобство при его использовании в процессе эксплуатации. Печной агрегат бывает: Форма также влияет на равномерность нагревания как самой конструкции, так и отапливаемого помещения. При максимальном нагревании одного элемента оборудования происходит уменьшение разогрева другого. Это, в свою очередь, обеспечивает равномерность обогрева помещения, постоянный баланс тепловых потоков. Правильный нагрев конструкции влияет на ее механическую устойчивость. Круглая или цилиндрическая печь характеризуется низкой степенью, поэтому для нее делают более плотные стенки. Прямоугольная печь считается устойчивой, так как у нее имеются холодные углы. Металлические банные печи, можно сказать, имеют уже длинную историю, поэтому за такой долгий период умельцами были разработаны и предложены различные виды их изготовления. Самый простой вариант – это металлическая печь-каменка, выполненная из железной бочки. Для этого у бочки срезается дно и крышка, в результате получается цилиндр. Затем его до середины загружают кирпичами, поставленными на ребро. Сверху на них укладывается колосниковая решетка. Оставшуюся половину бочки на 2/3 части заполняют камнями. После этого выводят дымоход и устанавливают крышку. Такой способ изготовления печи очень простой, но неудобный в использовании. Для небольшой по площади бани можно соорудить печь-каменку компактного размера, используя листовую сталь. Внутренняя поверхность такой конструкции выкладывается кирпичом, стенки топки – в полкирпича, дымоход – в одну четверть. Этот вид печи легко изготовить, использовать в работе. Для прогрева помещения потребуется немного топливного сырья. Комфортная температура будет обеспечена спустя короткий промежуток времени. Какой вариант исполнения вы бы ни выбрали, потребуется приобрести следующий материал: Кстати, дверцы для конструктивных элементов можно сделать самостоятельно. Что касается инструментов, то в работе будем использовать болгарку и сварочный аппарат. В таком виде сооружения для того чтобы плеснуть воды для подачи пара, потребуется открыть дверку. Такая конструкция имеет следующие шаги: На этом процесс изготовления печной конструкции завершен. Но все же мастера предлагают усовершенствовать ее, добавив бак под горячую воду. Для этого необходим кусок трубы большого диаметра, который нужно вварить в водный кран. Затем берем крышку подходящего размера и разрезаем ее на 2 равные части. В одной половине вырезаем проем для дымохода, а затем привариваем ее на бак. Вторая будет съемной, поэтому к ней необходимо приделать петли и ручку. Такой агрегат соорудить несложно, имея металлический лист. Его конструкция представляет собой трубу, разделенную на 2 отсека при помощи колосниковой решетки. Верхний – это топка, нижний же выполняет роль зольника-поддувала. Каждое отделение оснащается дверцей, через которую можно закладывать топливо, обеспечивать подачу воздуха, удалять продукты горения. В дальнем заглушенном торце трубы привариваем патрубок дымохода диаметром 100 мм. Сверху цилиндрического корпуса присоединяем с помощью сварки металлический короб, который заполняется камнями. Изогнутое колено дымохода позволяет обеспечить максимальное нагревание камней, так как при этом увеличивается контактирующая поверхность раскаленной трубы с каменкой. Описанный вариант печного сооружения нетрудно выполнить и в виде параллелепипеда. В этом случае понадобятся для заготовок листы металла, а не труба. Как правило, для такой печки предполагается наличие водогрейного бака. В прямоугольной по форме печи способов его размещения множество, вот лишь некоторые из них: Удобный способ получения горячей воды – это установка специального теплообменного бака на трубе дымохода. Такой нагреватель можно сделать как самому, так и купить готовый заводской, у которого имеется труба стандартного размера и диаметра. В последнем случае бак врезается в дымоход, его вертикальную часть над корпусом печи, и подключаются трубы на подачу и забор воды. Такой бак при достаточном объеме может выполнять функцию резервуара либо просто быть теплообменником, подключенным к основной емкости под воду. Этот вид печного оборудования считается сложным в исполнении, но это оправдывается приобретением способности накапливать тепло. Такая конструкция представляет собой металлический корпус с внутренней кирпичной кладкой. При этом требования к толщине стали снижаются: можно взять лист 2 мм. Для кладки потребуется огнеупорный кирпич из шамота и раствор, в качестве которого подойдет специальная готовая сухая смесь для печных работ. Замешивается она с учетом требований инструкции по применению. Металлическая печь для бани имеет следующую технологию изготовления: Вот несколько общих рекомендаций по монтажу печного оборудования: Похожие статьи: pechnoedelo.com Очень много конструкций печи для бани своими руками из металла уже сделано и придумано, но тема до конца не раскрыта и актуальна до сих пор. Своими руками металлические банные печи можно изготовить из подручных металлических материалов, нужно только желание и немного времени. Металлические печи для бани своими руками Просмотрев эту статью и соблюдая технологию, а также добавив фантазии, можно придумать что-то самому. В результате вы не только отлично попаритесь в баньке, но и удивите соседей и друзей уникальными решениями. О некоторых расскажем более подробно. Разберемся, как может быть изготовлена металлическая печь, каковы должны быть ее размеры и устройство, а также расскажем, как подготовить основание (фундамент), чтобы установить собранную конструкцию. Печь с решеткой для камней и нагревом воды Если будет строиться металлическая печь для бани своими руками, то сначала нужно составить проект, определив размеры агрегата, а также подготовить все необходимое. Если изготавливается самодельная печь для бани из трубы, потребуется: Обратите внимание: тяга создаётся путём разряжения, т.е разряженный холодный воздух вытягивает тёплый. Тёплый воздух, в свою очередь, стремится вверх под действием Архимедовой силы. Тяга зависит от погоды: летом воздух тёплый и влажный — тяга, естественно, меньше, зимой всё наоборот. Тяга также зависит от диаметра трубы. Чертёж печи каменки Если труба тонкая, то газы и тёплый воздух путём трения о стены трубы будут тормозиться и не успевать покинуть дымоход. В результате создаётся дымовая пробка и дым идёт путём наименьшего сопротивления, т.е. в помещение. Поэтому при изготовлении металлической банной печи своими руками, всегда руководствуйтесь принципами давления, тяги, правильно выбирая размеры дымохода и топки. Если труба широкая — дым и газы будут медленно подниматься вверх, тяга будет плохая и очень большая засоренность трубы, её очень часто придётся чистить. Так как всё будет оседать на стенах трубы, нормальная скорость при выходе из трубы 5-8 м/с. Впервые дымоходами стали пользоваться римляне (3-8 век до н.э.) — знаменитые римские термы. Итак, приступим к постройке металлической банной печи своими руками. Прежде всего, нужно подготовить фундамент, то есть, основание, на которое планируется установить конструкцию. Несмотря на то, что железная печь для бани из трубы весит немного, фундамент под нее стоит подготовить обязательно. Очень важно, чтобы железная печь была установлена на ровный фундамент. Собирается железная печь так: Моменты сборки печи для бани Сборка деталей 2-го этапа печи Здесь сделаем небольшое отступление. Если у вас уже есть предбанник, то прежде чем установить новую печь, придётся вырубить в стене квадратное отверстие, т.к печь будет начинаться оттуда — это двери поддувала и топки, всё остальное находится в бане. Чертёж внутренности печи Если у вас не было предбанника, то мы его будем строить вместе с печкой для бани. Угол, в котором стоит железная печь, должен быть обложен кирпичной стеной, это делается в целях пожарной безопасности, ведь внутри баня всегда отделана деревом. Вид сбоку Итак, начинаем делать печь, если нет опыта в печных делах или никогда не клали кирпич, то лучше позвать мастера, который сложит вам печь по всем правилам. Но если хотите попробовать сами, что неплохо, то самое время попробовать, а я расскажу, как это сделать. Вид спереди Шахта зольника, поддувало После кладки печь должна просохнуть минимум 2 недели, если её затопить сразу, то появятся микротрещины, что нарушит целостность печи. Открываем все поддувала и входы-выходы, чтобы печь высыхала. Допускается протопить мелкими щепками на пару часов. Печь считается высохшей, если на дверце топки нет влаги и стены все просохли. Можно прогнать печь по полной для профилактики, и печь готова к использованию. Сама печь в сборе Замечу, что сама конструкция будет достаточно тяжелой, поэтому её можно разделить на детали и собирать внутри помещения. Металлическая банная печь своими руками оригинальной конструкции готова. Если отделка внутри уже есть — прикрыть от сварки хоть рубероидом, хоть листами железа. Внимание. Не забываем, при сварочных работах внутри помещений в целях пожарной безопасности нужно иметь ведро воды и брызгалку. Брызгалку можно сделать из обыкновенной полуторалитровой пластиковой бутылки, пробив в крышке отверстие. После сварки обрызгиваем шов и окалины. Вид в полном объёме: печь металлическая для бани своими руками Печь для бани из металла своими руками с решеткой под камни Печи металлические для бани своими руками бывают разных форм. Рассмотрим печь, собранную из трубы, её составные части и схему сборки. На первый взгляд печь для бани из трубы имеет максимально простое устройство, но здесь есть свои хитрости и технология конструкции. В начале статьи я указал принцип работы печи, тяги и дымохода. Во всех случаях эти принципы должны использоваться, иначе печь не будет работать. Печь для бани своими руками металлическая со встроенной каменкой При самостоятельном воплощении конструкции и каких-то оригинальных решениях, чтобы у вас получилась своими руками металлическая печь для бани, руководствуйтесь ими, и у вас всё получится. Не забывайте, что для нас с вами нет ничего невозможного, поэтому будем дерзать, стремиться и удивлять окружающих, улучшая мастерство. Тогда построенная банная печь своими руками металлическая или просто печь не будет для вас непрочитанной книгой. Печь на фото выше — это простой вариант, так как основание почти готово — кусок трубы диаметром 525 мм, длиной 650 мм. Снизу прорезаем отверстие в длину размером 335 мм, шириной 180 мм, это будет у нас колосник, навариваем прутья или железную полосу, друг от друга около 1 см. Отдельно изготавливаем короб из листового железа 2-3 мм, по размеру: Свариваем короб, зачищаем шлак. Привариваем к нему дверку и пока отложим в сторонку деталь. Займёмся 525 трубой, нам надо вырезать заглушки, боковины с двух сторон. Если вам надо скопировать несколько деталей,то копировать всегда надо с оригинала, а не с их готовых копий, так как теряется точность размеров. Если вы разметили деталь и вырезали её, то лучше сделать замер ещё раз и изготовить другую, чем копировать с готовой. Металлическая печь для бани своими руками с большой каменкой Пока изготовим детали, но сборку будем проводить по порядку. Сначала сделаем внутренности печи и соберём их внутри самой печки, все остальные детали будем поочерёдно накладывать и проваривать. Вверху прорезаем два отверстия. Одно — для дымохода, круглое, диаметром 110 мм, отступив от края 525 трубы до середины (дымохода 110 трубы) 100 мм. Другое — квадратное, для каменки, отступив от края 525 трубы 215 мм, срезаем размер вдоль 525 трубы 300 мм, поперёк 250 мм. Чтобы соблюсти симметричность конструкции, используем уровень (вертикаль, горизонталь) или отвес (вертикаль). Для вырезанного отверстия готовим нишу для камней, вырезаем детали из листа железа 5 мм. Все детали свариваем, делаем квадратный короб, как показано, зачищаем от шлака, промазываем швы обильно керосином и смотрим, нет ли подтёков. Отставляем готовую деталь печи в сторону. Отвес можно изготовить из любого тяжелого груза (болт, гайка, камешек, гвоздь) и любая верёвки, лески, нити. Но вес груза должен держать верёвки, лески, нити натянутыми. Остальное всё сделает сила тяжести, нить с висящим на ней грузом всегда показывает вертикаль в идеальном виде, так же как и вода показывает линию горизонтали. Металлическая печь для бани своими руками: чертежи Следующий шаг: вырезаем из листа железа 4-5 мм перегородку для шахты печи (отгораживает топку от дымохода, тем самым препятствуя быстрой утечке тепла в дымоход). Перегородка для шахты печи Как показано на рисунке, отмеряем сверху 180 мм и по факту, т.е какой будет размер, узнаем только по ходу работы. Замер можно произвести при помощи рулетки и уровня. Ставим уровень, отмечаем от верха 180 мм до верха уровня. Для заметки расскажу, как обойтись подручными средствами, если нет уровня, и отметить горизонтальную линию. Берём прозрачный стеклянный сосуд, это может быть стакан, пластиковая бутылка или любой прозрачный, но достаточно твёрдый предмет, имеющий основание. От дна отмечаем по бокам одинаковое расстояние и ставим маркером отметки. Наливаем воду по меткам — и вот уровень готов. Ставим на нужную нам поверхность: вода должна находится в уровень с метками, тогда у нас будет уровень горизонта. Итак, банная металлическая печь своими руками — следующий этап сборки. У нас идут заглушки или боковины. На одной делаем разметку для дверцы топки, отступая от низа 50 мм, и вырезаем по размеру дверки, которая у нас приготовлена заранее с одним уточнением: отверстие делаем по всем краям меньше на 1 см. Если у нас размер дверцы 220х320 мм, то вырезаем отверстие 210х310 мм. И вырезаем ещё одно отверстие для чистки дымохода 70х130 мм. Печи для бани из металла своими руками с баком для нагрева воды Если изготовленная металлическая печь в баню своими руками имеет не прямой выход с топки в дымоход, а с шахтами, то всегда надо делать отверстия для чистки дымоходов, если туда нельзя добраться. Если этого не сделать, то осадки золы и мелкие частицы пепла и нагар скоро уменьшат доступ в дымоход и печь начнёт дымить. Придётся или прорезать окошко, или спиливать и заваривать трубу постоянно. Осталось установить печь на предназначенное ей место. При этом установка проводится так, чтобы каменка расположена не в печи, а снаружи, что затрудняет нагрев камней. Камни будут нагреваться намного дольше обычного, но эффект всё же будет. Камни для печи лучше использовать морские, они быстрее нагреваются, дольше держат тепло, при содержании в них соли и йода благоприятно влияют на организм. Очень важная деталь. Если у вас изготовлена своими руками железная печь для бани, то нужно установить ее так, чтобы пол под поддувалом был из жести или плитки, в общем из негорючего материала. sdelaikamin.ru
Содержание:
Сейчас баня стала не только местом, где можно помыться, здесь посетители получают оздоровительные процедуры, исцеляющие тело и душу. Часто любители попариться в собственной банной постройке предпочитают своими руками собрать отопительный агрегат для нее. Для этого им могут понадобиться чертежи печки для бани.
Уже на протяжении многих лет металлические печи составляют конкуренцию традиционным отопительным конструкциям, выложенным из кирпичей. Их устанавливают как в частных домовладениях, так и в банных постройках.
Востребованность агрегатов из металла объясняется наличием у них важных достоинств:
Последнее преимущество является особенно важным для тех, кто планирует такой прибор изготовить самостоятельно. Но для этого нужно уметь читать чертежи банной печи из металла. Также следует знать, что в случае нерационального применения такого агрегата или несоблюдения технологии его изготовления велика вероятность возникновения пожара.
Самым простым примером конструкции банных печей из металла своими руками считается буржуйка. Она состоит из оборудованного трубой и дверцей ящика. Ее главный недостаток – это незначительная теплоотдача при большом расходе топлива. Поэтому сейчас буржуйку используют крайне редко.
Современные агрегаты из металла имеют более высокий класс пожаробезопасности. Их производят из листового материала, толщина которого не превышает 4-5 миллиметров. У них имеется тепловая камера для засыпки камней (прочитайте: "Как уложить камни в банную печь правильно, какие камни лучше использовать"). Часто их конструкционное решение предусматривает возможность обустройства дополнительного водяного бака объемом до 70 литров.
С целью обеспечения равномерного прогревания воздуха в агрегате и снижения его пожароопасности делают облицовку огнеупорным кирпичом. При отсутствии необходимости создавать особо прочный фундамент под печь достаточно будет наличия крупногабаритного основания, которым может стать цементная плита с покрытием из кафельной плитки, либо металлический лист, либо огнеупорный кирпич.
Если внимательно рассмотреть чертежи банных печей из металла с размерами, то их по конструкционному решению можно разделить на несколько разновидностей:
Приборы для бань отличаются по виду топлива, применяемого для их функционирования:
Чтобы разобраться с характеристиками металлических агрегатов, нужно проанализировать их преимущества перед стационарно устанавливаемыми кирпичными конструкциями.
В отличие от печей, выложенных из кирпичей, металлические отопительные агрегаты отличаются своей мобильностью и компактностью и поэтому являются оптимальным решением для небольших по площади банных построек. Изготовление печи для бани из металла осуществлять можно в любом месте и потом переместить ее для монтажа в нужное помещение.
Существует два основных конструкционных решения агрегатов из металла:
Если подвести итог, то к достоинствам агрегатов из металла для бань относятся:
Нельзя не отметить недостатки металлических отопительных конструкций:
Именно от данного параметра зависит производительность агрегата и то, насколько он удобен в эксплуатации. Как показывает практика, повышенным спросом пользуются печи, имеющие цилиндрическую форму и фигурную или горизонтальную конструкцию.
Но самыми удобными в эксплуатации являются прямоугольные агрегаты. Причиной этого является наличие у них угловых зон, которые редко накаляются максимально. В результате бытует мнение, что такой каркас способствует сохранению формы печи. Кроме этого от данного параметра зависит равномерность прогрева агрегата.
Правильный разогрев также влияет на устойчивость отопительной конструкции из металла. Подтверждением этому является то, что стенки печей круглой и цилиндрической формы делают усиленными. И хотя высокая степень устойчивости прямоугольной конструкции объясняется наличием у нее холодных углов, она все равно со временем теряет свою первоначальную форму.
Одним из простых способов создания агрегата считается изготовление печи-каменки, когда используют железную бочку. Для этого у нее убирают днище и снимают крышку, в результате чего получается заготовка цилиндрической формы. Половину имеющегося цилиндра наполняют кирпичами, которые помещают на ребро. На них потом устанавливают колосниковую решетку. Читайте также: "Какую сделать печь для бани своими руками – виды и способы изготовления".
Образовавшееся пустое пространство засыпают на две трети камнями, затем монтируют дымоход. В завершение работы самодельная печь для бани из металла должна накрываться крышкой. Но даже с учетом простоты изготовления подобный вариант агрегата является в использовании одним из самых неудобных.
Если банная постройка имеет небольшую площадь, можно установить в ней печь-каменку компактного размера, применив для ее изготовления листовую сталь. Внутреннюю поверхность прибора выкладывают кирпичами. Размеры такого банного агрегата из металла будут небольшими, и при этом соответствовать отапливаемой площади.
Нужно только выложить стенки топочного отделения в полкирпича, а дымохода - в четверть кирпича. Такой отопительный агрегат отличается простотой и удобной эксплуатацией. Для его функционирования не требуется много топлива, а прогревается он достаточно быстро.
Имеется еще один способ, как можно устроить печь-каменку, но без использования кирпичей. Этот вариант не только прост в реализации, но и является недорогим. При этом печка обладает эстетичным внешним видом. Такая отопительная конструкция без проблем обогреет предбанник, моечную и парилку.
Этап 1. Изготавливаемая конструкция из металла будет иметь закрытую каменку и чтобы использовать воду и получить пар необходимо приоткрывать дверцу. Сначала подготавливают материалы и инструменты. Чтобы упростить процесс изготовления, потребуется схема печки для бани из металла.
Нужно иметь в своем распоряжении:
Из инструментов надо подготовить сварочный аппарат и болгарку.
Этап 2. Для дальнейшей работы потребуется длинный отрезок трубы. Прежде всего, в нем вырезают поддувало, имеющее параметры 50х200 миллиметров. Над отверстием, расположенным с внутренней стороны трубы, нужно приварить крепление, предназначенное для колосника. Для этого требуется взять металлическую пластину, которая снабжена проушинами. Колосники всегда есть в наличии в специализированных магазинах.
Этап 3. Теперь приступают к созданию топки. Сначала делают отверстие с параметрами 250х200 миллиметров. Сверху следует приварить крепления, которые требуются для установки прутов печки-каменки, диаметром не менее 10 миллиметров. Их можно поменять на колосниковые решетки для агрегатов круглой формы. Купить такие изделия можно в том же месте.
Этап 4. С противоположной стороны конструкции создают отверстие. В него наливают воду. Далее в каменку укладывают камни. Используют, к примеру, диабаз, талькохлорит. Нельзя задействовать кремень, гранит и слюдосодержащие камни.
Этап 5. В предназначенной для отопительного агрегата крышке создают отверстие под монтаж дымоходной трубы, которую затем помещают на место. Далее рекомендуется дополнительно установить емкость для воды. Для этого следует на каменку приварить последний кусок трубы и в его нижней части закрепить кран. При эксплуатации агрегата дым начнет продвигаться по трубе и нагревать воду, не доводя ее до точки кипения.
Этап 6. В завершение для нагревательного бака изготавливают крышку. Ее делают в соответствии с сечением трубы и разрезают пополам. В первой части для дымоходной трубы делают отверстие и потом приваривают ее к баку. Вторую половину оснащают петлями и ручкой и поэтому свободную часть крышки можно при необходимости снимать. Читайте также: "Как сделать печь для бани своими руками – подробности от мастера".
Об установке печи в бане следует позаботиться во время возведения здания. В месте ее будущего обустройства нужно заложить фундамент, вид которого зависит от выбора отопительной конструкции. Потом на основание укладывают два ряда кирпичей и только потом устанавливают печь.
С целью повышения пожаробезопасности при обустройстве самодельного металлического агрегата нужно неукоснительно соблюдать правила его монтажа, которые заключаются в следующем:
Когда процесс монтажа агрегата завершен, можно сделать отделку кирпичом, что предотвратит возможность получения ожогов и придаст внешнему виду эстетичность. В данном случае печь разрешается расположить ближе к стене.
Вышеописанная конструкция считается одной из несложных для монтажа и удобных в эксплуатации.
Следует отметить, что изготовление отопительного агрегата из металла нельзя назвать слишком сложным процессом. Чтобы правильно выполнить сборку и последующую установку, до начала работы желательно найти и просмотреть примерные чертежи железных печей для бани своими руками и выбрать наиболее подходящий вариант.
Воспользовавшись одним из них, можно будет избежать проблем при изготовлении агрегата.
banyaspec.com Металлических печей для бани в продаже много, но хорошие стоят немалых денег. Если есть достаточный опыт сварки металла, можно изготовить печь самому, по своим размерам. О том, как сделать печь для бани из металла (листового), чертежи и фото — дальше. Содержание статьи Между режимами парения в бане и сауне есть существенная разница. В сауне температура воздуха очень высокая — от 85C и намного выше. При такой температуре влажность высокой быть просто не может — сразу получите ожог, а веник осыпется за пять минут. И она действительно небольшая, порядка 5-15%. В русской же парной температура держится в пределах 55-65°C, изредка поднимаясь до 70°C. При таких температурах влажность «нагоняют» большую — 50-60%. Один из вариантов сварной печи для сауны Для обеспечения таких разных задач требуются разные подходы для построения печи. В сауну требуется наибольшая площадь соприкосновения корпуса печи с окружающим воздухом и ускорение прохождения воздушных потоков вдоль стенок. Все подчинено задаче как можно скорее нагреть воздух в парилке. Каменка есть, но она небольшая, открытая, находится, как правило, над топкой. Камни в ней прогреваются максимум до 200-250°C, так как много тепла отдают окружающему воздуху. С такой каменки получить можно немного пара. Но в сауне много и не надо — один/два ковшика дадут 15% влажности. Больше просто не вытерпеть. В русской парной задача другая — не перегреть помещение и добиться большого количества пара. Причем пар должен быть определенной кондиции — он должен состоять из очень мелких капелек. Его еще называют «сухим» и имеет он высокую температуру — порядка 130-150°C. При таком условии после парения в теле ощущается легкость и прилив сил. Такой пар получают только с раскаленных камней, температура которых не менее 500°C. Чтобы достичь ее камни «упаковывают» внутрь топки — в ней размещают ящик — закрытую каменку. Тут каменка расположена внутри а сверху приделан бак Как видите, есть солидные конструктивные отличия. Их надо иметь в виду. Что еще надо иметь ввиду при конструировании печи для режима русской парной? То, что имея нагретые металлические стенки удержать температуру в пределах требуемых 60-65°C нереально. Обязательно перетопите. При этом от стенок печи идет жесткое ИК излучение и рядом находится тяжело. Проблема решается двумя способами: Футеровка — обложить топку изнутри жаропрочным кирпичом Снаружи закрыть корпус кирпичным экраном Еще стоит поговорить о швах. В самодельных печах из металла (в заводских, в принципе, тоже) часто прогорание начинается именно со швов. На производстве данную проблему обходят при помощи гнутых конструкций. В верхней части стараются швов вообще избежать. При изготовлении печи для бани своими руками вы вряд ли сможете согнуть лист металла толщиной 6-10 мм, так что остается только одно — делать швы как можно качественнее. Необходимое количество камней зависит от объема парной (при условии, что утеплена баня нормально). В разных источниках есть разные рекомендации с большим или меньшим количеством — от 20 до 40 кг на 1 м3. В принципе, чем больше камней, тем легче получить требуемое количество пара, но при условии, что у печи хватит мощности их нагреть. Проблема в том, что камни разной породы имеют разную плотность, и, следовательно, одна и та же масса занимает разный объем. В принципе, для средней парилки объемом 12-14 м3, размеры каменки примерно такие: 30*40*30 мм. Параметры можно немного изменять, делать шире/уже/выше — смотрите по конструктиву печи. Каменка может быть разной формы и размера Соотношение объема топки к объему каменки — сложный теплотехнический расчет, который даже не всякий теплотехник осилить в состоянии. Намного проще воспользоваться готовыми чертежами или экспериментально определенными пропорциями. Как минимум, объем «свободной» от каменки топки не должен быть меньше. Лучше, если даже больше примерно на 30-50%. Немного о том, в какой части топки лучше всего располагать ящик для камней. Все давно пришли к выводу, что самая высокая температура — в верхней части и у задней стенки. Вот в этом месте и имеет смысл расположить емкость. Во-первых, часть термической нагрузки со свода топки снимется, а во-вторых, камни хорошо нагреются. Не за бывайте об обслуживании каменки и о том, что туда каким-то образом должна попадать вода. Лючок для обслуживания надо располагать таким образом, чтобы вы могли без особых проблем достать рукой до самого дальнего края. А подачу воды вглубь каменки надо организовать так, чтобы не обжечься. Обычно вставляют трубку или систему трубок, которые расходятся по всей плоскости емкости для камней. Со стороны помещения эта трубка заканчивается воронкой. Трубку обкладывают камнями. При подаче в нее воды, она распределяется по поверхности каменки/камней и испаряется. Эта печь разработана для парной 2*3*2,3 м. Варилась из листового металла толщиной 3 мм. Печь из металла для бани с закрытой каменкой Для активизации горения предусмотрено подключение дополнительного воздуховода, проложенного с улицы. Из других решений — ребра жесткости (уголки) приваренные к бокам топки в верхней части топки для того, чтобы при сильном нагреве металл не выгибало. Следующая схема металлической печи для бани сделана с подачей воздуха в верхнюю часть топки. Это так называемые печи с дожиганием газов. На задней стене приварена пластина из металла. В щель между этой пластиной и задней стенкой топки при помощи трубок-воздуховодов подается воздух из-под колосников. Это нехитрое, вроде, устройство решает сразу две задачи. Во-первых, охлаждает заднюю стенку, снижая вероятность ее прогорания. Во-вторых, воздух подается в верхнюю часть разогретым. Там сосредоточены разогретые до высоких температур дымовые газы, большая часть которых горючая (до 80%). Когда эти газы смешиваются с подогретым воздухом, горючие вещества воспламеняются, температура в верхней части топки становится еще выше, камни нагреваются до более высоких температур. При этом (при использовании сухих дров) топлива требуется намного меньше. На этом принципе построены многие печи длительного горения, но в банных печах он стал использоваться недавно. Печь с подачей вторичного воздуха Примерно та же модель, но без дожига, выполнена в другом формате. Тут размеры не указаны, зато проще понять пропорции и расположение различных элементов. Объемная модель самодельной печи-каменки из металла В данном случае объем топки составляет около 130% от объема каменки. Нормальное соотношение. Дымоход смещен назад, что не всегда хорошо — могут возникнуть сложности при устройстве дымохода — он может упереться в потолочную балку — придется дымоход изгибать, что нежелательно. Так что насчет расположения трубы — подумайте. Еще в среде любителей бани постоянно ведутся споры: бак для нагрева воды в парилке — это хорошо или плохо… Одни регулируют влажность открывая/закрывая крышку бака. Их такой вариант устраивает. Другие говорят, что этот пар «тяжелый», и выносят бак в моечное отделение, а воду в нем греют, встроив в топку теплообменник и соединив его с баком трубами. Следующая схема — печь в баню из металла с баком для воды. Чертеж печи для бани с баком для воды Конструкция грамотная — при помощи «искрогасителя» путь прохождения дымовых газов длиннее, дольше он остается в топке, лучше нагревает стенки. Если вы не хотите бак, на его место можно уложить камни. Интересный вариант с баком, который находится в задней части печи. Дымоход сдвинут назад, и проходит через бак. Высота бака большая, теплосъем будет эффективным — температура дымохода на выходе из бака большой не будет точно. Вариант небольшой печи с большим баком Интересно устроена каменка. Она не очень большая, но для небольших и средних парилок ее объема хватит. Закрывается она крышкой, что с одной стороны не очень удобно: закрывать крышку после подачи воды на камни будет проблематично. С другой стороны, это удобно в обслуживании. Разрезы печи и размеры Как уже говорилось, основная задача этого типа отопительных приборов — быстро «нагнать» требуемую температуру и иметь возможность ее поддерживать. Есть простое решение — поставит вентилятор, который будет обдувать стенки печи, ускоряя нагрев. Примерно такую же функцию выполняет кожух-конвектор. Это кожух вокруг корпуса печи. Между ним и стенкой топки остается зазор в 1,5-2 см. В эту щель снизу засасывается воздух. Он проходит вдоль стенок, нагревается, заодно остужая стенки. Далее поднимается вверх, разнося тепло по парилке. Принцип работы конвекционного кожуха Если корпус печи делают из толстого металла, то кожух можно и из тонкого. Он редко нагревается до больших температур, и перегорание ему не угрожает. Если в печи для сауны каменка будет находится вверху, над топкой, как на фото, то в корпусе можно сделать отверстия для вентилирования каменки. Тогда часть воздуха, который поднимается вдоль стенок, будет попадать в каменку, обдувать камни и нагреваться еще сильнее. Такая каменка называется вентилируемой. Она хороша именно для суховоздушных саун. Конструкция печей для сауны проще. Нужна топка нормального размера, в которую помещаются большие поленья. В верхней части, над верхней частью топки привариваются борта каменки, объем которой обычно 20-25 литров. Вариации могут быть по ширине/высоте/глубине, но особых каких-то хитростей нет. Схемы металлических печей для сауны Установка бака для нагрева воды в парилке сауны — идея не самая лучшая. Вы не сможете контролировать влажность, а при высоких температурах легко получить ожог. Тем не менее, несколько вариантов установки баков на фото выше. Другой тип каменки — внутри топки. При желании можно сделать на нее крышку и такую печь можно использовать в двух режимах — с открытой крышкой для сухого парения, с открытой — для получения большего количества пара. Каменка внутри корпуса baniwood.ru Современное возрождение интереса к банному делу связано с ошеломляющим открытием медиков, утверждающим, что секрет русской, а вместе с тем и финской бани раскрыт. Следствием данной популяризации парной стала печь для бани, изготовленная своими руками. Это связано с тем, что современный рынок до сих пор не в состоянии полностью удовлетворить потребительский спрос на банные печи, а также с неоправданно высокой ценой на указанные агрегаты. Кроме того, финская и русская бани являются местом не только для помывки, но и для сложных оздоровительно гигиенических процедур, полностью восстанавливающих энергетический потенциал души и тела. Условия, создаваемые на серийном производстве, не позволяют предусмотреть сочетание конкретных местных факторов, в связи с чем, профессиональные ценители бани зачастую предпочитают сконструировать банный агрегат самостоятельно, а не приобретать заводской, изготовленный по безликим стандартам. С незапамятных времен металлические печи были известными конкурентами традиционным кирпичным агрегатам, что актуально не только для частных домов, но и для бань. Это обусловлено их неоспоримыми достоинствами, такими как быстрый нагрев и относительная простота монтажа, что особо актуально для тех, кто планирует их изготовить самостоятельно. Наряду с высокой теплопроводностью и отменными эстетическими характеристиками, при нерациональном использование металлической печки или несоблюдении всех нюансов при ее самостоятельном изготовлении, нельзя забывать про риск возникновения пожара. В связи с этим, важно следовать всем нюансам и изготавливать банную печь в соответствии с инструкцией, предложенной нашими специалистами. С ней вы можете ознакомиться, прочитав настоящую статью. Наиболее простая модель самодельной металлической печи – так называемая «буржуйка», состоящая из ящика, оснащенного дверцей и трубой. Их недостатком является то, что, несмотря сравнительно небольшую тепловую отдачу, их потребность в топливе чрезвычайно высока. В связи с этим, они давно считаются неактуальным пережитком прошлого. Что касается современных металлических печей, они относятся к более высокому классу безопасности. Их изготовление осуществляется из листового железа, толщина которого не превышает 4-5 мм. Кроме того, они оснащены специализированной тепловой камерой, предназначенной для каменной засыпки. Зачастую возможности их конструкции позволяют обустроить дополнительный бак для воды, объем которого достигает 70 литров. Чтобы обеспечить равномерное прогревание воздуха в печи, а также снизить ее пожароопасность, металлическую печь выкладывают огнеупорным кирпичом. Важно! Отдав предпочтение современным металлическим печам, вы избавите себя от возведения фундамента высокой прочности. В этом случае будет достаточно выполнения крупногабаритного основания, в роли которого может выступать цементная плита, для повышения эффективная отделанная кафельной плиткой, листом металла или огнеупорным кирпичом. Если изучить многочисленные чертежи банных печей из металла, можно прийти к выводу, что с конструктивной точки зрения выделяют несколько разновидностей банных печей: В соответствии с используемым видом топлива также различают несколько видов банных печей: Так как существует две основные разновидности печей для бани: кирпичные и металлические, рассмотрим основные характеристики последних и их преимущества перед стационарными кирпичными печами. Во-первых, как уже было отмечено, в отличие от стационарных кирпичных печей, металлические агрегаты являются более мобильным и компактным вариантом, в связи с чем, они идеально подходят для установки в небольших помещениях. Что касается изготовления самодельных печей, совершенно необязательно осуществлять их монтаж на месте установке, вы можете произвести его в любом удобном для вас месте и впоследствии переместить на место установки. Различают два основных типа конструкций металлических печей: Печь горячего типа – вариант, идеально подходящий для установки в банях эпизодического пользования, например, на даче. Несмотря на то, что она быстро прогревается, ее не рекомендуется использовать в банях постоянного пользования, так как, используя такую печь, очень легко перегреть помещение, что обусловлено невозможностью контроля ее температуры; Печь холодного типа – идеально подходящая для установки в отапливаемых помещениях. Они, как и предыдущий вариант, быстро прогреваются, однако возможность перегрева исключается, так как она оснащена системой контроля температуры. Обжечься о такую печь практически невозможно, так как температура ее стенок редко превышает отметку в 50 градусов. Достоинства банных печей из металла Подводя итог, отметим следующие достоинства: Недостатки банных печей из металла Несмотря на то, что на первый взгляд кажется, что форма печи – несущественный параметр, именно от нее зависит производительность агрегата и удобство его эксплуатации. Наиболее распространенными являются печи цилиндрической формы, горизонтальной и фигурной конструкции, однако наиболее удобны в эксплуатации прямоугольные агрегаты. Это обусловлено наличием в них угловых зон, которые практически никогда не раскаляются «докрасна». В связи с этим, распространено такое мнение, что такой каркас «сохраняет» форму печи. Кроме того, форма печи определяет рационализм и равномерность нагрева печи, так как максимальный разогрев одного элемента способствует уменьшению нагрева стены, расположенной рядом с зоной горения, что способствует равномерности разогрева помещения и балансу тепловых потоков. Кроме того, от правильного разогрева зависит механическая устойчивость конструкции. Это не трудно проследить, например, круглые и цилиндрические печи менее устойчивы к нагреву, в связи с чем, их стенки более плотные, усиленные. Высокая же устойчивость прямоугольной печи обусловлена наличием холодных углов. Однако со временем потери формы не избежать – это доказанный факт. За многие годы использования металлических печей для бани предложено множество вариантов их изготовления своими руками. Одним из простейших вариантов является изготовление металлической печи-каменки из железной бочки, в процессе которого убирают крышку и днище бочки с образованием цилиндра. Половину полученного цилиндра заполняют кирпичами, поставленными на ребро, на которые впоследствии устанавливают колосниковую решетку. Получившееся свободное пространство на две трети заполняют камнями, после чего устанавливают дымоход и накрывают самодельную печь крышкой. Однако, несмотря на простоту изготовления, данный вариант считается одним из самых неудобных в эксплуатации. Если ваша баня характеризуется достаточно небольшой площадью, вы можете изготовить компактную печь-каменку из листовой стали, внутреннюю поверхность которой выкладывают кирпичом. Размеры банной печи из металла достаточно скромны и соответствуют отапливаемой площади. Стенки топки достаточно выложить в половину кирпича, а дымоход – в четверть. Данная печь не только проста в изготовлении, но и крайне удобна в эксплуатации, так как не требует большого количества топлива и прогревается за сравнительно небольшой промежуток времени. Существует еще один вариант изготовления печи-каменки, для которой не требуется использовать кирпич. Данный способ также прост в исполнении и не слишком затратный с финансовой точки зрения. Что касается внешнего вида, то он довольно эстетичный. Данная конструкция легко справится с обогревом предбанника, мойки и собственно парилки. На данном этапе вам потребуется большой отрезок трубы. Важно! Изготавливаемая конструкция предполагает наличие закрытой каменки, и если вам потребуется плеснуть в нее воды – необходимо приоткрыть дверцу. В первую очередь в трубе вырезают поддувало, размеры которого 50 и 200 мм. С внутренней стороны трубы над отверстием приваривают крепления для колосника – для этого потребуется металлическая пластина, снабженная проушинами. Колосник можно приобрести в любом строительном или специализированном магазине. Далее приступаем к изготовлению топки. Для нее необходимо сделать отверстие размером 250 на 200 мм. Сверху приваривают крепления, необходимые для установки прутов каменки, диаметр которых должен быть не меньше одного сантиметра. Также их можно заменить колосниковыми решетками, предназначенными для круглых печей, приобрести которые можно там же. С противоположной стороны каменки проделывают отверстие, в которое льют воду. Далее каменку заполняют камнем, например, талькохлоритом, диабазом. Исключено использование слюдосодержащих камней, кремня и гранита. В крышке, предназначенной для агрегата, проделывают отверстие для дымоходной трубы, после чего устанавливают саму трубу. Несмотря на то, что монтаж банной печи можно считать практически завершенным, специалисты советуют дополнительно установить бак для воды. Для этого на каменку приваривают оставшийся, ранее не востребованный кусок трубы, в нижнюю часть которого вваривают кран для воды. В процессе эксплуатации печи дым, проходя по трубе, будет постепенно ее нагревать, однако ее кипение происходить не будет. В заключение необходимо изготовить крышку, предназначенную для нагревательного бака. В соответствии с диаметром используемой трубы, приготовьте крышку и разрежьте ее пополам. В первой половине необходимо вырезать отверстие под дымоход, после чего ее приваривают к баку. Вторую половину в процессе монтажа необходимо оснастить петлями и ручкой, благодаря чему свободная часть крышки останется съемной. По завершении установки печь можно облицевать кирпичом, что не только добавит эстетичности внешнему виду печки, но и позволит предотвратить возникновение ожогов. Кроме того, в этом случае допускается более близкое расположение печи к стене. Надеемся, что мы смогли вас убедить в том, что изготовление металлической печи для бани – не такое уж сложное мероприятие, и, воспользовавшись данным руководством, вы сможете избежать трудности в процессе ее изготовления. Мы не отрицаем, что данная конструкция – не единственный способ изготовления банной печи, однако она является наиболее простой в монтаже и удобной в эксплуатации. strport.ru
Содержание:
В настоящее время на рынке присутствует множество металлических печек для бани, но все они стоят недешево. Если вы обладаете хорошим опытом по сварке металла, то можно сделать печь из железа в баню своими руками. В этой статье мы подробно опишем, прилагая соответствующие фото, как это сделать, имея свои размеры и чертежи.
Парилки в бане и сауне значительно отличаются между собой. Сауна сопровождается высокой температурой – свыше 85 ºС. Такие показатели делают невозможным сильно увеличивать еще и влажность, так как неминуемо получение ожогов кожи. При этом веник в таких условиях осыпается всего за 5 минут. Поэтому влажность доводят до 5-15 %. Русская баня отличается температурой в районе 55-65 ºС, что дает возможность поднять относительную влажность до 50-60%.
Для создания тех или иных условий в парной используются разные печи, а также применяются разные подходы к их установке. Если обустраивается сауна, то понадобится соблюсти максимальную площадь контакта корпуса печи с воздухом и обеспечить быструю циркуляцию воздушных потоков вдоль стенок.
Все сводится к тому, чтобы нагреть воздух в парилке как можно скорее. Небольшая открытая каменка, располагаясь над топкой, способна прогреть камни до 200-250 ºС. Она дает возможность получить немного пара – как правило, для сауны этого достаточно, потому что нужно добиться всего 15 % влажности.
В русской бане микроклимат создается иной – достигаются небольшие температуры, и вырабатывается много пара. При этом он должен состоять из очень мелких капелек, разогретых до 130-150 ºС – такой пар называют «сухим». Подобный микроклимат придает телу легкости и сил. «Сухой» пар можно получить лишь раскалив камни до значений более 500 ºС . Для достижения таких показателей камни складывают в топку, то есть в закрытую каменку.
Самое главное при изготавливании по чертежам металлических печей для бани своими руками – это учесть, что невозможно при разогретых металлических стенках поддерживать нужную температуру в пределах 60-65 ºС (прочитайте: "Чертежи банной печи из металла – строим печь своими руками"). Обязательно придется перетапливать, что сопровождается излучением сильных ИК волн, при котором довольно тяжело находиться рядом с печью.
Решить эту проблему можно двумя методами:
Отдельно стоит упомянуть швы. Самодельная железная печка в баню довольно часто начинает прогорать именно от некачественных швов. В производственных условиях такую проблему решают, используя гнутую конструкцию. Сверху печи стараются минимизировать количество швов.
При изготовлении печки из металла для бани своими руками, вам будет практически не под силу изогнуть 6-10 миллиметровую сталь, поэтому, как правило, остается делать предельно качественные швы.
Требуемый объем камней определяется размерами парной и качеством утепления. Величина, как правило, варьируется от 20 до 40 кг на 1 кубический метр помещения. Естественно, что, чем их больше, тем легче выработать нужный объем пара.
Ввиду того, что разные камни отличаются по плотности, при одной массе они будут занимать разный объем. Определено, что для парилки, имеющей объем 12-14 м3, потребуется установить каменку 30×40×30 см. Эти размеры в различных ситуациях можно немного корректировать.
Изготавливая банную печь из металла своими руками, нужно будет подобрать индивидуальный объем каменки, исходя из размеров печи. Чтобы не допустить ошибки, лучше оттолкнуться от готовых чертежей. При использовании экспериментального подхода стоит учитывать, что объем топки должен превышать таковой каменки приблизительно на 30-50 %.
Перед тем как построить печку в бане, стоит просчитать наилучшее расположение каменки в топке. Из практики стало ясно, что лучше всего ее разместить сверху, возле задней стенки, где самая большая температура.
Стоит помнить, что каменку нужно будет обслуживать, и ее следует оборудовать так, чтобы туда можно было подавать воду. Люк лучше всего расположить так, чтобы была возможность без особого труда дотянуться рукой до самого удаленного края, и чтобы воду можно было подавать без возможности получить ожог.
Как правило, в каменку добавляют трубки, разведенные внутри емкости, которые доставали бы до всех камней. Со стороны подачи воды трубка оборудуется воронкой. После разведения трубок, они обкладываются камнями. После подачи по трубкам воды, она попадает на камни в каменке и превращается в пар.
Рассмотрим вариант печи, которая будет актуальна для парилки объемом 2×3×2,3 м. Для ее конструкции используются листы стали толщиной 3 мм.
Для запуска процесса горения конструкцией предусмотрен дополнительный воздуховод, который берет свое начало с улицы. Чтобы во время нагрева сталь не изгибалась, вверху топки к бокам приваливают ребра жесткости в виде уголков.
Рассмотрим еще одну схему, по которой можно изготовить металлические банные печи своими руками. Это модели с забором воздуха из верхней части топки. Их еще именуют печами с дожиганием газов. На задней стенке к ней приварена стальная платина. В печь воздух поступает из-под колосников, и подается через воздуховоды, идущие в щель между этой пластиной и задней стенкой топки.
Такая интересная конструкция справляется одновременно с двумя задачами: производит охлаждение задней стенки, не давая ей прогорать, а также подается воздух уже прогретым в верхнюю часть, где сконцентрированы очень горячие газы в виде дыма. 80 % их объема являются горючими.
После смешения с воздухом происходит их воспламенение, что приводит к повышению температуры в топке и прогреву камней до более высоких показателей. Если при этом используются сухие дрова в качестве топлива, то их потребуется значительно меньше. На таком принципе работы построено немало печей продолжительного горения, но для банных печей он стал применяться лишь недавно. Существует и схожая модель без дожига. Изучив ее чертеж можно лучше понять пропорции и размещение разных элементов.
Данная конструкция предполагает построение топки с объемом на 30 % больше, чем каменка. Соотношение можно считать приемлемым. Дымоход располагается со смещением назад, что иногда вызывает сложности при его установке – ему может мешать потолочная балка. При этом может понадобиться произвести изгибание дымохода, что не приветствуется.
Кроме того, перед тем как сделать печь для бани, следует определиться, нужен ли в парной бак для подогрева воды. Некоторые подстраивают уровень влажности, открывая и закрывая крышку бака. Другие специалисты утверждают, что таким образом вырабатывается тяжелый пар, поэтому они советуют устанавливать бак в моечной комнате, а прогрев воды производят посредством вмонтированного в топку теплообменника, соединенного трубами с баком.
Теперь рассмотрим схему металлической печи с баком для воды. Конструкция считается довольно грамотно проработанной. Благодаря искрогасителю дым проходит немного большее расстояние, тем самым лучше прогревая стенки топки. Вместо бака, конечно же, можно уложить камни.
Стоит рассмотреть вариант установки бака сзади печи. Дымоход смещен назад, проходя сквозь бак. Из-за большой высоты бака будет эффективная теплоотдача, следовательно – дымоход не будет перегреваться при выходе из него.
Каменка имеет конструкцию, предполагающую небольшие ее размеры, что вполне достаточно для небольших парилок. У нее есть крышка, но ввиду особенностей расположения, ее бывает сложно закрывать после подачи воды. Но такую конструкцию легче обслуживать.
Основная задача печей – как можно быстрее довести температуру до нужных показателей и удерживать ее на таком уровне. Для ускорения этого процесса применяются вентиляторы, которые, обдувая стенки, ускоряют прогрев.
Для этих целей предназначен и кожух-конвектор. Зазор между ним и стенкой топки должен составлять 1,5-2 см. Через зазор происходит всасывание воздуха, который в процессе движения прогревается, при этом стенки остывают.
Чтобы сделать печку в баню своими руками как можно качественней и практичней, ее корпус изготавливают из толстого металла, а кожух из тонкого, потому что он не подвергается перегреву.
При размещении каменки над топкой, в корпусе можно проделать отверстия для вентиляции. При этом доля воздуха, поднимаемая по стенкам, будет направляться в каменку, обдувая камни и увеличивая их температуру. Такая вентилируемая каменка отлично подходит для саун.
Печи для сауны имеют немного упрощенную конструкцию. Размеры печи из металла для бани, и сама топка, должны быть достаточными для закладки больших поленьев. Сверху топки приваривают борта каменки, объем которой, как правило, составляет от 20 до 25 л. Соотношение в размерах может быть разным, для этого не существует каких-либо конкретных правил.
Чтобы сделать печь из металла для бани как можно правильней, не стоит устанавливать бак для нагрева воды. В противном случае, у вас не получится контролировать уровень влажности в сауне, что при экстремальных температурах может привести к ожогам.
Есть еще вариант – установить каменку внутри топки. Можно предусмотреть крышку, при этом у такой печи может быть два режима работы: с открытой крышкой – чтобы процесс парения был сухим, и с закрытой крышкой – чтобы выработать больший объем пара.
banyaspec.com Хорошая банька в своем доме давно стала проверенным средством сохранять здоровье, снимать напряжение и накопленную усталость. В домашних условиях выгодно и удобно использовать банную печь с электронагревом. В доме на природе или на даче лучшим вариантом признана банная печь из металла, работающая на твердом топливе. Сегодня банные печи из металла легко купить, заказать в слесарной мастерской практически на любой вкус, любое топливо и мощность нагрева. Но при наличии смекалки, инструмента и подходящего материала проще и дешевле изготовить банную печь из металла своими руками. Преимущества такой банной металлической печи неоспоримы: Приступая к изготовлению банной печи, стоит определить ее расположение в парной, основные геометрические параметры, исходя из потребностей в нагреве. Чертежи наиболее удачных банных печей из металла можно скачать в интернете, при необходимости сделать свои поправки. Выбирают печь, прежде всего, исходя из удобства использования печью, мощность нагрева принимаем – 1 кг дров на 1 м3 помещения парилки. Для изготовления банной печи не потребуются специальные марки металла, используются доступные сорта листового металла и трубы. Благодаря продуманности конструкции приведенный вариант банной печи из металла реально собрать своими руками, изучив чертежи. Изготовленная по размерам на приведенном чертеже, печь из металла легко прогревает помещение парилки в 15 кубов. Банная печь разделена на несколько секций, расположенных в одном корпусе – отрезке трубы диаметром 500мм и длиной 1300-1350мм: Кроме основных секций, в конструкции печи использована разделительная камера между каменкой и водяным баком. В этой полости будет интенсивно накапливаться сажа, поэтому через специальное окно, закрытое накладкой, следует периодически ее удалять. Прежде чем начинать постройку печи, убедитесь в прочности трубной заготовки, отсутствии трещин или локальной деформации металла. До начала раскройки трубы под банную печь предварительно удалим слой ржавчины и окислов, присутствующих на поверхности металла, с помощью ручного пескоструйного аппарата или щетки для чистки металла. Использовать химические составы на основе фосфорной кислоты не рекомендуется. Для изготовления банной печки нам будет необходимо: Учитывая тот факт, что максимальную опасность для человека представляет угроза отравления угарными газами, разработчиками данной конструкции банной печки были предприняты меры для уменьшения количества сварных швов в топочной части Размечаем трубу по размерам на чертеже. Из листа металла с помощью газовой сварки или угловой шлифовальной машины вырезаем 6 кругов диаметром 500мм. Из вырезанных круглых заготовок отбираем две, которые входят внутрь трубы с минимальными зазорами между краями плоских блинов и внутренней стенкой трубы. Эти две пойдут на верхнее и нижнее днище топки. Размечаем положение верхней крышки топочной камеры на расстоянии 450мм от среза трубы, с помощью мела делаем риски на внутренней поверхности трубной заготовки. Размечаем месторасположение дверцы топочной камеры, поддувала и каменки. Аккуратно вырезаем окошки с помощью «болгарки» — угловой шлифовальной машинки. Вырезанные прямоугольные фрагменты используем для изготовления дверок. Для этого привариваем с помощью электросварки петли навесов в местах крепления дверок. В круглой заготовке верхней стенки топочной камеры вырезаем четыре круглых отверстия диаметром 60мм и с помощью электросварки ввариваем отрезки жаровых труб, используемых для нагрева каменки. На свободные торцы приваренных труб устанавливаем заготовку верхней стенки каменки и привариваем. В итоге получаем две плоских блина, соединенных между собой четырьмя трубами. Устанавливаем корпус банной печки в вертикальном положении и помещаем полученный узел из четырех жаровых труб и двух круглых днищ внутрь трубной заготовки. С помощью электросварки привариваем круглую верхнюю стенку топочной камеры на свое место, согласно чертежу. 1, 2, 19, 20, 28,29 – дверцы и элементы топки, поддувала; 3 – задвижка; 7, 8, 9, 10 11, 12, 13 – секции топки и каменки — стенки поддувала; 14, 16, 18– днище; 15 – колосниковая решетка; 17 – отверстие для пополнения воды; 21, 24 – люк для загрузки каменки; 23 – трубы разогрева каменки; 25, 26 — основная труба для отвода газов; 27 – кран отбора горячей воды; Внимание! Сварку верхнего днища топки следует производить в несколько проходов с максимальным качеством. Переворачиваем корпус банной печки, устанавливаем вертикально, аналогичным способом привариваем верхнее днище промежуточной камеры. Далее необходимо установить в корпус и приварить круглый блин самодельных колосников, днище печки и днище водяного бака. Для изготовления колосников можно выбрать из двух путей: После установки колосников приваривается днище печки — ее нижняя стенка. В корпусе печки металлическая заготовка устанавливается с отступом от края на 10-15мм. Не менее ответственным этапом является установка днища водяного бака в верхнюю часть банной печи. Конструкцией банной печи из металла предусмотрено, что через центральную часть бака проходит труба отвода продуктов сгорания, и расположена она не соосно с цилиндрическим корпусом печи. Важно! Приварить дымоход к нижнему основанию бака необходимо с дополнительным контролем геометрии взаимного расположения трубы и днища. Сварочный шов проваривается минимум дважды, только после этого нижняя стенка с дымоходом устанавливается в корпус банной печи и приваривается по контуру. Верхняя крышка водяного бака выполняется легкосъемной, для ее крепления на корпусе печки можно использовать пару обычных фиксаторов или же просто придавить сверху тяжелым предметом. На дымоход можно одеть кольцо для уплотнения щели между отверстием в крышке и трубой. На завершающем этапе навешиваются дверки топочной камеры, поддувала и каменки. Окошко для очистки промежуточной камеры между каменкой и водяным баком лучше закрепить с помощью болтов, с использованием уплотнительной прокладки. Современные лакокрасочные материалы позволяют защитить даже сильно нагреваемые части печи из металла. Высокая влажность и горячий воздух неизбежно приведут к интенсивному ржавлению поверхности металла, даже закрытой теплоизоляцией или облицованной кирпичом. Наиболее оптимальным вариантом для обработки поверхности металла будут кремнийорганические краски, выдерживающие нагрев до 250оС. Для стенок топочной секции лучше применить специальные порошковые краски из термореагирующих составов или на основе порошкового алюминия. Испытать стойкость защитного покрытия лучше на отдельных обрезках металла. Поверхность металла банной печи обезжиривается и покрывается в несколько слоев с промежуточным прогревом конструкции. Наиболее предпочтительным вариантом считается установка печи из металла, с выходом загрузочного окна топки и поддувала в помещение предбанника. Для этого к корпусу могут быть добавлены специальные загрузочные короба. Некоторое усложнение конструкции с лихвой компенсируется преимуществами: Для установки банной печи из металла необходимо вблизи от корпуса выполнить облицовку стен несгораемыми материалами, допускается применение легкосъемного кожуха — теплоизолятора, закрывающего стенки топочной секции печи. Такое устройство предохранит от ожогов и поможет регулировать температуру в парилке без вмешательства в работу печки. Аналогично следует поступить с трубой дымохода. Банная печь из металла должна устанавливаться на фундамент, лучше с термостойкой изоляцией и металлической основой. bouw.ruЧертежи банной печи из металла – строим печь своими руками. Печь из металла для бани своими руками
Металлическая печь для бани своими руками: чертежи + фото
Баня – это довольно распространенный атрибут в России, обязательный для частного дома, дачи, загородной усадьбы.Преимущества агрегата
Недостатки
Выбор формы
Последний вид наиболее распространенный и удобный в использовании. При такой конфигурации у печи есть угловые зоны, которые подвержены минимальному накалу. Именно поэтому многие считают, что в прямоугольной конструкции наилучшим образом сохраняется каркас печи.
Варианты печного сооружения, выполненного своими руками


Процесс изготовления
Вариант 1: печная конструкция с закрытым типом каменки

Вариант 2: печь постоянного нагрева с открытым типом каменки


Вариант 3: металлическая печь открытого типа с дополнительными кирпичными стенами

Правила установки
Печь для бани своими руками из металла: сборка


Что нужно для работы?
Инструмент
Материал металлический
Материал строительный

Работы по возведению печи
Возводим фундамент
Подготовка и сборка печи









Варианты сбора печи другой конструкции





железные печи для бани своими руками, размеры конструкции, схема металлической самодельной печки, изготовление

Использование банных печей из металла

Конструкционные особенности современных металлических печей

Устройство печей из металла
Виды топлива и типы печей
Преимущества и недостатки печек из металла


Значение формы банной печи

Разновидности металлических печей

Самостоятельное конструирование металлической печи
Особенности процесса установки банного агрегата

Печь для бани из металла своими руками: чертежи, фото, видео
Печь из металла для бани и сауны — в чем разница


Самодельные печи для русской бани


Каменка: какого размера и где

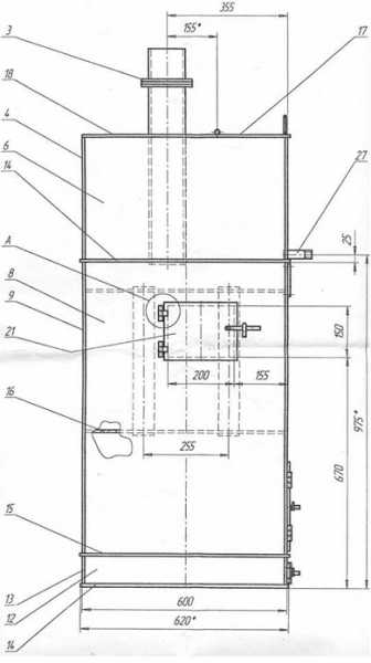
Чертежи самодельных банных печей из металла






Как сделать печь для сауны

Чертежи и схемы


Банная печь из металла: чертежи, инструкция по монтажу
Содержание
Банная печь из металла: актуальность темы
Современные металлические печи: особенности конструкции
Фото банных печей из металла



Разновидности банных печей из металла
Особенности конструкции: 3 типа банных печей

Вид топлива: 3 типа банных печей

Банные печи из металла: преимущества и недостатки



Форма банной печи: на что обратить внимание?


Изготовление металлической печи для бани: поиск возможных вариантов


Изготовление металлической печи своими руками: пошаговая инструкция
Необходимые материалы и инструменты


Руководство по изготовлению печного агрегата



Установка банной печи: на что обратить внимание?


металлическая банная печь своими руками, печка из металла, чертежи, как сделать из железа, как построить, размеры железных банных печей, фото и видео

Отличия печей из металла для бани и сауны

Печи для русской бани, сделанные своими руками

Каких размеров каменку и в каком месте лучше ставить

Чертежи самодельных стальных печей для бани



Изготовление печи для сауны

Схемы и чертежи печей
Банная печь из металла своими руками: чертежи + фото


Один из наиболее удачных вариантов печки

Последовательность изготовления печи для бани





Декоративная отделка

Установка банной печи из металла
